



神奈川県横浜市保土ヶ谷区常盤台
JR京浜東北線/横浜駅 バス17分 (バス停)釜台住宅第2 歩7分
東急東横線/横浜駅 バス21分 (バス停)常盤園前 歩11分
相鉄本線/上星川駅 歩17分
東急東横線/横浜駅 バス21分 (バス停)常盤園前 歩11分
相鉄本線/上星川駅 歩17分
地上6階建 / 2005年02月 / 賃貸マンション
ただいま2人が検討中!
| 賃料 / 管理費 | 敷金 / 礼金 | 間取り / 面積 | 階数 部屋番号 | 方位 | 詳細を見る | |
|---|---|---|---|---|---|---|
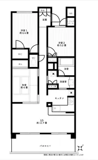
| 13.5万円 / 1.0万円 | 13.5万円 / 13.5万円 | 3LDK / 76.89m² | 3階 ー | 南東 | 詳細を見る |



