



東京都中央区東日本橋2
JR総武線/浅草橋駅 歩6分
都営浅草線/東日本橋駅 歩3分
東京メトロ日比谷線/人形町駅 歩13分
都営浅草線/東日本橋駅 歩3分
東京メトロ日比谷線/人形町駅 歩13分
地上7階建 / 2021年01月 / 賃貸マンション
★★お問合せはREVEへ★★
★中央区の賃貸マンション★不動産会社は″人柄″で選ぶ時代。素敵なお部屋は素敵なスタッフ選びから。あなたにハマるスタッフが必ず見つかります。お問合せはREVE(レーヴ)まで!
ただいま1人が検討中!
| 賃料 / 管理費 | 敷金 / 礼金 | 間取り / 面積 | 階数 部屋番号 | 方位 | 詳細を見る | |
|---|---|---|---|---|---|---|
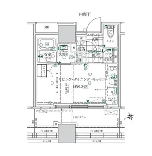
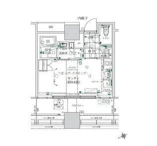
| 14.0万円 / 1.2万円 | 無料 / 14.0万円 | 1K / 28.87m² | 5階 ー | ー | 詳細を見る |




























































