



東京都港区南青山4
東京メトロ銀座線/表参道駅 歩7分
東京メトロ千代田線/表参道駅 歩7分
東京メトロ千代田線/乃木坂駅 歩11分
東京メトロ千代田線/表参道駅 歩7分
東京メトロ千代田線/乃木坂駅 歩11分
地上5階建 / 2004年03月 / 賃貸マンション
《見学予約受付中》礼金0円キャンペーン住戸!初期安にて契約可
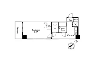
「表参道」駅徒歩7分の好立地!広々10.7帖の洋室スペースです。諸条件等お気軽にお問合せください。
ただいま2人が検討中!
| 賃料 / 管理費 | 敷金 / 礼金 | 間取り / 面積 | 階数 部屋番号 | 方位 | 詳細を見る | |
|---|---|---|---|---|---|---|
| 14.7万円 / 1.0万円 | 14.7万円 / 無料 | 1R / 30.38m² | 3階 ー | 北東 | 詳細を見る |


























































