

30.0万円
管理費ー
敷60.0万円礼無料
JR東海道本線/草津駅 歩55分
JR東海道本線/南草津駅 歩28分
JR東海道本線/瀬田駅 歩37分
JR東海道本線/南草津駅 歩28分
JR東海道本線/瀬田駅 歩37分
滋賀県草津市矢橋町
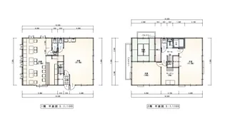
4DK / 250.23m²
地上2階建
築39年
ただいま 5人 が検討中!
| 店舗名 | (株)しげのぶ不動産 |
|---|---|
| 住所 | 滋賀県草津市野村2-3-18 1階 |
| 定休日 | 水曜日 |
| 営業時間 | 9:00~18:00 |
| 交通 | - |
| 免許番号 | 滋賀県知事(2)第3647号 |
| 代表者名 | - |
| 所属団体 | (公社)滋賀県宅地建物取引業協会会員 (公社)近畿地区不動産公正取引協議会加盟 |
| TEL | 0748-71-2755 |

9:00~18:00
水曜日


30.0万円
管理費ー
4DK / 250.23m²
地上2階建
築39年
現在0件保存されています。
あと50件保存することができます。
お気に入りページから保存した物件が確認できます。

削除しました。