



東京都新宿区四谷3
東京メトロ丸ノ内線/四谷三丁目駅 歩1分
都営新宿線/曙橋駅 歩8分
東京メトロ丸ノ内線/新宿御苑前駅 歩11分
都営新宿線/曙橋駅 歩8分
東京メトロ丸ノ内線/新宿御苑前駅 歩11分
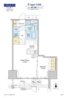
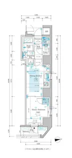
地上13階建 / 新築(2025年09月) / 賃貸マンション
Google口コミ★5継続中!カスタマーファースト第一主義!
●スタッフ全員が宅地建物取引士なので安心安全!不動産取引の専門家がフルサポートで担当致します●取り扱い物件も豊富●お問い合わせはこちら【REALOOM新宿】当日の来店予約OK!
ただいま1人が検討中!
| 賃料 / 管理費 | 敷金 / 礼金 | 間取り / 面積 | 階数 部屋番号 | 方位 | 詳細を見る | |
|---|---|---|---|---|---|---|
| 27.2万円 / 1.7万円 | 27.2万円 / 無料 | 1LDK / 43.39m² | 4階 ー | 南 | 詳細を見る |



























































