



東京都中央区勝どき6
都営大江戸線/勝どき駅 歩6分
都営大江戸線/築地市場駅 歩19分
新交通ゆりかもめ/竹芝駅 歩35分
都営大江戸線/築地市場駅 歩19分
新交通ゆりかもめ/竹芝駅 歩35分
地上58階建 / 2008年01月 / 賃貸マンション
タワーマンション・ペット可・楽器可
オンライン内見・契約実施中!初期費用クレカ決済もご相談ください!お部屋探しはピアホームにお任せください♪
ただいま2人が検討中!
| 賃料 / 管理費 | 敷金 / 礼金 | 間取り / 面積 | 階数 部屋番号 | 方位 | 詳細を見る | |
|---|---|---|---|---|---|---|
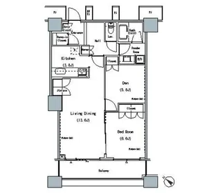
| 21.1万円 / 1.0万円 | 42.2万円 / 21.1万円 | 1DK / 47.57m² | 16階 ー | 南東 | 詳細を見る |













































