



神奈川県横浜市神奈川区金港町
JR京浜東北線/横浜駅 歩6分
みなとみらい線/新高島駅 歩10分
京急本線/神奈川駅 歩8分
みなとみらい線/新高島駅 歩10分
京急本線/神奈川駅 歩8分
地上34階建 / 2008年05月 / 賃貸マンション
ターミナル駅「横浜」の分譲タワーマンションです。
◆「クレジッドカード支払い可」◆「初期費用の分割・相談」◆「内覧希望」◆「急ぎの入居」◆「法人契約」◆「保証人不要」◆「資料の送付」◆等、何でもお気軽にご相談下さい。
ただいま1人が検討中!
| 賃料 / 管理費 | 敷金 / 礼金 | 間取り / 面積 | 階数 部屋番号 | 方位 | 詳細を見る | |
|---|---|---|---|---|---|---|
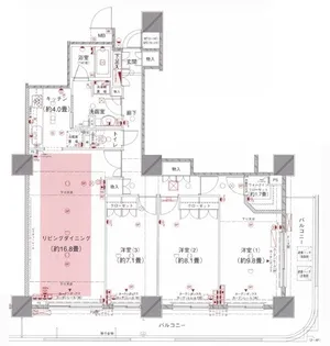
| 67.0万円 / 1.0万円 | 67.0万円 / 67.0万円 | 3LDK / 105.39m² | 25-26階 ー | 南西 | 詳細を見る |



























































