



東京都台東区浅草7
東京メトロ銀座線/浅草駅 歩10分
東武伊勢崎線/浅草駅 歩8分
都営浅草線/浅草駅 歩11分
東武伊勢崎線/浅草駅 歩8分
都営浅草線/浅草駅 歩11分
地上10階建 / 2021年10月 / 賃貸マンション
★好立地物件★ハイグレード設備分譲タイプ★
弊社では内見 契約までリモートでご対応が可能です! LINEでのやり取りも可能ですので、まずはお気軽にご連絡くださいませ。
ただいま4人が検討中!
| 賃料 / 管理費 | 敷金 / 礼金 | 間取り / 面積 | 階数 部屋番号 | 方位 | 詳細を見る | |
|---|---|---|---|---|---|---|
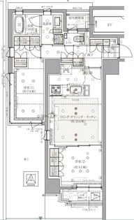
| 19.8万円 / 2.0万円 | 無料 / 無料 | 2SLDK / 48.6m² | 2階 ー | ー | 詳細を見る |
















































