



大阪府大阪市生野区勝山北2丁目
大阪環状線/桃谷 徒歩8分
近鉄難波・奈良線/鶴橋 徒歩18分
大阪市千日前線/今里 徒歩29分
近鉄難波・奈良線/鶴橋 徒歩18分
大阪市千日前線/今里 徒歩29分
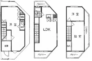
地上2階建 / 1927年01月 / 一戸建
《初期費用減額プラン有・保証人不要物件》
ただいま6人が検討中! 人気上昇中!注目の物件です!
| 賃料 / 管理費 | 敷金 / 礼金 | 間取り / 面積 | 階数 部屋番号 | 方位 | 詳細を見る | |
|---|---|---|---|---|---|---|
| 10.0万円 / ー | 10.0万円 / 10.0万円 | 3DK / 57m² | ー ー | ー | 詳細を見る |
























































