



東京都江東区新大橋2
都営新宿線/森下駅 歩5分
都営大江戸線/森下駅 歩5分
JR総武線/両国駅 歩11分
都営大江戸線/森下駅 歩5分
JR総武線/両国駅 歩11分
地上8階建 / 2022年05月 / 賃貸マンション
★当物件お予約限定★仲介手数料0.55ヶ月★
主要都市へのアクセス良好で、通勤・通学にもとても便利です。近隣には商店街や商業施設もあり、住環境も良好♪ご質問等はマエムキ浜松町店にお早めにお問い合わせ下さい♪(番号:)
ただいま3人が検討中!
| 賃料 / 管理費 | 敷金 / 礼金 | 間取り / 面積 | 階数 部屋番号 | 方位 | 詳細を見る | |
|---|---|---|---|---|---|---|
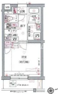
| 10.5万円 / 1.5万円 | 無料 / 10.5万円 | 1K / 25.77m² | 3階 ー | 南西 | 詳細を見る |




























































