



東京都墨田区石原2
都営大江戸線/両国駅 歩7分
JR総武線/両国駅 歩13分
JR総武線/両国駅 歩13分
地上7階建 / 2018年09月 / 賃貸マンション
☆初期費用など、気になることはお気軽にご相談ください☆
口コミ実績☆4.8以上!お問合せはRIUMM株式会社まで! / ネット上で気になるお部屋はまとめてご紹介させていただきます♪ / :5【通話料無料】までおください♪
ただいま1人が検討中!
| 賃料 / 管理費 | 敷金 / 礼金 | 間取り / 面積 | 階数 部屋番号 | 方位 | 詳細を見る | |
|---|---|---|---|---|---|---|
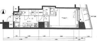
| 9.6万円 / 1.2万円 | 9.6万円 / 9.6万円 | 1K / 25.84m² | 1階 ー | ー | 詳細を見る |




























































