



神奈川県秦野市今川町
小田急小田原線/秦野駅 歩1分
小田急小田原線/渋沢駅 歩51分
小田急小田原線/東海大学前駅 歩67分
小田急小田原線/渋沢駅 歩51分
小田急小田原線/東海大学前駅 歩67分
地上12階建 / 新築(2025年03月) / 賃貸マンション
契約金のカード決済が可能。決済手数料も弊社負担です。
小田急線 秦野駅まで徒歩1分。ぜひ株式会社ユーミーネットまでご連絡ください。防犯カメラ、モニター付きオートロックなどの設備がそろっています。
ただいま1人が検討中!
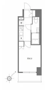
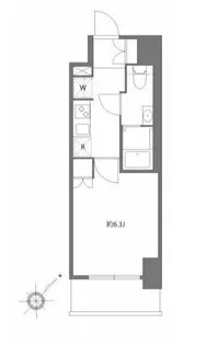
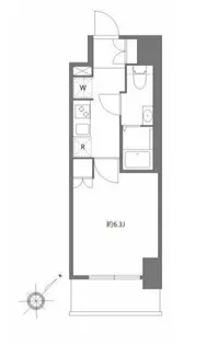
| 賃料 / 管理費 | 敷金 / 礼金 | 間取り / 面積 | 階数 部屋番号 | 方位 | 詳細を見る | |
|---|---|---|---|---|---|---|
| 5.8万円 / 1.8万円 | 無料 / 無料 | 1K / 23.2m² | 10階 ー | 南東 | 詳細を見る |




























































