



東京都文京区本郷3
都営大江戸線/本郷三丁目駅 歩4分
東京メトロ丸ノ内線/本郷三丁目駅 歩6分
東京メトロ千代田線/湯島駅 歩10分
東京メトロ丸ノ内線/本郷三丁目駅 歩6分
東京メトロ千代田線/湯島駅 歩10分
地下1地上14階建 / 新築(2025年11月) / 賃貸マンション
礼金が不要という初期費用節約につながる物件です
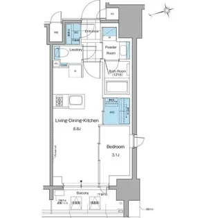
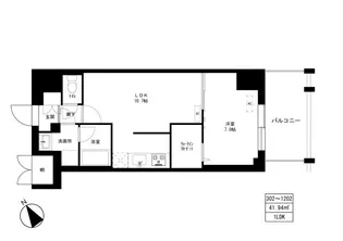
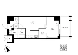
荷物を注文する時に時間を気にせずに済む宅配ボックスを共用部に備えています。収納はクロゼット・シューズWICなど豊富なので、広々と空間を利用することも可能です。
| 賃料 / 管理費 | 敷金 / 礼金 | 間取り / 面積 | 階数 部屋番号 | 方位 | 詳細を見る | |
|---|---|---|---|---|---|---|
| 20.2万円 / 1.2万円 | 20.2万円 / 無料 | 1LDK / 31.37m² | 3階 ー | 西 | 詳細を見る |




























































