



東京都新宿区市谷台町
都営新宿線/曙橋駅 歩3分
東京メトロ丸ノ内線/四谷三丁目駅 歩9分
都営大江戸線/若松河田駅 歩13分
東京メトロ丸ノ内線/四谷三丁目駅 歩9分
都営大江戸線/若松河田駅 歩13分
地上10階建 / 2023年09月 / 賃貸マンション
★ネット無料★ペット相談可能★浴室乾燥★複数路線利用可能★
★お問い合わせ当日内見可能★オンライン内見可能★入居審査のご相談受付中★新宿区のお部屋探しはとらいち不動産にお任せ下さい!★★
ただいま2人が検討中!
| 賃料 / 管理費 | 敷金 / 礼金 | 間取り / 面積 | 階数 部屋番号 | 方位 | 詳細を見る | |
|---|---|---|---|---|---|---|
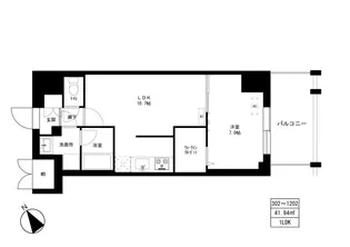
| 12.9万円 / 8,000円 | 12.9万円 / 6.45万円 | 1K / 25.02m² | 4階 ー | 北 | 詳細を見る |




























































