



東京都新宿区荒木町
都営新宿線/曙橋駅 歩4分
東京メトロ丸ノ内線/四谷三丁目駅 歩8分
JR総武線/四ツ谷駅 歩14分
東京メトロ丸ノ内線/四谷三丁目駅 歩8分
JR総武線/四ツ谷駅 歩14分
地下1地上10階建 / 2009年05月 / 賃貸マンション
暑い夏も寒い冬も、このエアコン付き物件なら安心です
セキュリティ面は、TVインターホン・オートロックなどを備え付けているので安心して暮らせます。宅配ボックスはカードキーや暗証番号がなければ開けられないので、荷物の盗難防止にもつながります。
ただいま2人が検討中!
| 賃料 / 管理費 | 敷金 / 礼金 | 間取り / 面積 | 階数 部屋番号 | 方位 | 詳細を見る | |
|---|---|---|---|---|---|---|
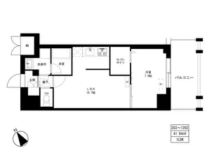
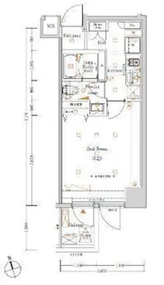
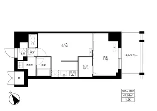
| 12.5万円 / 1.0万円 | 無料 / 無料 | 1K / 23.69m² | 8階 ー | 南 | 詳細を見る |




























































