



東京都渋谷区代々木1
都営大江戸線/代々木駅 歩3分
JR山手線/代々木駅 歩3分
JR山手線/新宿駅 歩12分
JR山手線/代々木駅 歩3分
JR山手線/新宿駅 歩12分
地下1地上16階建 / 2006年04月 / 賃貸マンション
敷地内にごみ置き場があります
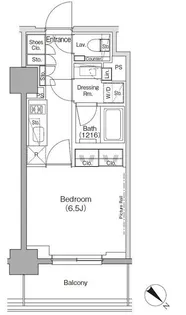
オートロック機能が付いているので、基本的に住民のみという環境に安心感が得られます。忙しい朝でも鏡を見ながらサッと身支度を整えることができる独立洗面台を備えております。
ただいま1人が検討中!
| 賃料 / 管理費 | 敷金 / 礼金 | 間取り / 面積 | 階数 部屋番号 | 方位 | 詳細を見る | |
|---|---|---|---|---|---|---|
| 18.0万円 / 1.0万円 | 18.0万円 / 18.0万円 | 1K / 27.67m² | 7階 ー | 南東 | 詳細を見る |








































