



東京都荒川区西日暮里2
JR山手線/西日暮里駅 歩3分
JR山手線/日暮里駅 歩5分
JR常磐線/日暮里駅 歩5分
JR山手線/日暮里駅 歩5分
JR常磐線/日暮里駅 歩5分
地上11階建 / 1998年01月 / 賃貸マンション
ご契約金のクレジットカード決済・分割払い等も可能な物件です。
業界歴3年以上のベテランスタッフが多く在籍しており「経験」を生かした接客が自慢です!他社では取扱いのない「弊社専任物件」も多数有!お客様のご条件をしっかりとヒアリングしベストな物件をご紹介いたします!
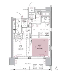
| 賃料 / 管理費 | 敷金 / 礼金 | 間取り / 面積 | 階数 部屋番号 | 方位 | 詳細を見る | |
|---|---|---|---|---|---|---|
| 12.0万円 / 8,000円 | 無料 / 12.0万円 | 1K / 25.28m² | 3階 ー | 南西 | 詳細を見る |




























































