



神奈川県横浜市中区長者町8丁目
京浜東北・根岸線/関内 徒歩8分
京急本線/日ノ出町 徒歩5分
横浜高速鉄道MM線/馬車道 徒歩14分
京急本線/日ノ出町 徒歩5分
横浜高速鉄道MM線/馬車道 徒歩14分
地上11階建 / 2019年11月 / 賃貸マンション
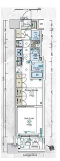
「イアース横濱関内」のここがイチオシ。こだわりポイント満載のイアース横濱関内。収納はクロゼット・シューズボックスなど豊富なので、衣類や履き物の整理がしやすく便利です。京浜東北線関内近辺は、生活に欠かせない施設が揃っているので、快適な暮らしができますよ。賃貸情報のことならにて株式会社Kanooyにお問い合わせ下さい。
ただいま5人が検討中! 人気上昇中!注目の物件です!
| 賃料 / 管理費 | 敷金 / 礼金 | 間取り / 面積 | 階数 部屋番号 | 方位 | 詳細を見る | |
|---|---|---|---|---|---|---|
| 7.8万円 / 1.0万円 | 無料 / 7.8万円 | 1K / 22.11m² | 7階 ー | 南西 | 詳細を見る |



























































