



東京都新宿区大久保2
JR山手線/新大久保駅 歩5分
JR中央線/大久保駅 歩9分
東京メトロ副都心線/西早稲田駅 歩12分
JR中央線/大久保駅 歩9分
東京メトロ副都心線/西早稲田駅 歩12分
地上2階建 / 2018年04月 / 賃貸アパート
ネット上掲載物件URL・写真送っていただければ空室確認可能!
中国語・韓国語対応可能/水商売など審査不安の方・お客様のご希望に合わせた方法(店頭、オンライン等)で物件をご提案いたします。でのお問い合わせ仲介手数料半額★★
ただいま6人が検討中! 人気上昇中!注目の物件です!
| 賃料 / 管理費 | 敷金 / 礼金 | 間取り / 面積 | 階数 部屋番号 | 方位 | 詳細を見る | |
|---|---|---|---|---|---|---|
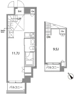
| 7.8万円 / 4,000円 | 無料 / 無料 | 1R / 12.37m² | 1-2階 ー | ー | 詳細を見る |















































