



東京都練馬区富士見台3
西武池袋線/練馬高野台駅 歩6分
西武池袋線/富士見台駅 歩13分
西武池袋線/石神井公園駅 歩19分
西武池袋線/富士見台駅 歩13分
西武池袋線/石神井公園駅 歩19分
地上6階建 / 2022年05月 / 賃貸マンション
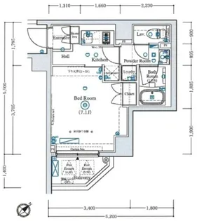
☆バス・トイレ別☆独立洗面台☆オートロック☆
☆株式会社スターク☆SUUMO掲載の物件は全てご紹介可能です☆03 6304 1302☆弊社公式LINEでのオンラインでの対応も可能ですのでお気軽にお問い合わせください!
ただいま1人が検討中!
| 賃料 / 管理費 | 敷金 / 礼金 | 間取り / 面積 | 階数 部屋番号 | 方位 | 詳細を見る | |
|---|---|---|---|---|---|---|
| 8.2万円 / 1.5万円 | 無料 / 無料 | 1K / 25.42m² | 3階 ー | 南東 | 詳細を見る |




























































