



神奈川県横浜市鶴見区鶴見中央5
京急本線/京急鶴見駅 歩5分
JR京浜東北線/鶴見駅 歩8分
JR鶴見線/国道駅 歩7分
JR京浜東北線/鶴見駅 歩8分
JR鶴見線/国道駅 歩7分
地上7階建 / 1988年04月 / 賃貸マンション
☆お部屋探しは桜関へ!☆ご入居に関してのお困り事、お任せ!
☆ご内見は現地待ち合わせも可能です!もしくはご来店後に数件まとめてご案内(車)いたします☆公式LINEでのご対応も可能★初期費用の分割や、クレカ決済も全物件ご対応できます!
ただいま2人が検討中!
| 賃料 / 管理費 | 敷金 / 礼金 | 間取り / 面積 | 階数 部屋番号 | 方位 | 詳細を見る | |
|---|---|---|---|---|---|---|
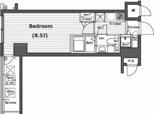
| 7.5万円 / 4,000円 | 7.5万円 / 無料 | 1K / 29.3m² | 6階 ー | 南西 | 詳細を見る |
























































