Y3N[2階]
情報公開日:2025/10/26(残り15日)
次回更新日は情報公開日より15日以内
物件画像
画像提供元:(株)ホワイトホームズ
この物件のタグ
この物件にお問い合わせ
Y3N[2階]の物件情報
| 賃料/管理費等 | 
            24.0万円(管理費等 2.0万円)
           | ||
|---|---|---|---|
| 敷金 | 24.0万円 | 礼金 | 24.0万円 | 
| 種別/構造 | マンション/鉄骨造 | 築年月 | 新築(2025年10月) | 
| 所在地 | 
          東京都大田区池上3
         | ||
| 主要交通機関 | 東急池上線/池上駅 歩8分 都営浅草線/西馬込駅 歩16分 | ||
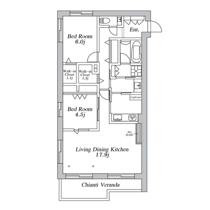
| 間取り | 2LDK | 面積 | 76.16m² | 
| 間取り詳細 | 洋6 洋4.5 LDK17.9 | 方位 | 南西 | 
| 階数/部屋番号 | 2階/地上4階建 | 駐車場 | 有(敷地内) 敷地内30000円 | 
| 特徴 |  | ||
| 設備/条件 | バストイレ別、クロゼット、フローリング、シャワー付洗面台、TVインターホン、浴室乾燥機、オートロック、室内洗濯置、シューズボックス、システムキッチン、追焚機能浴室、角住戸、温水洗浄便座、エレベーター、洗面所独立、宅配ボックス、閑静な住宅地、2面採光、3口以上コンロ、ペット相談、グリル付、ウォークインクロゼット、全居室フローリング、2沿線利用可、LDK15畳以上、ネット専用回線、ネット使用料不要、食器洗乾燥機、エアコン全室、築2年以内、複層ガラス、エアコン3台、ペット専用設備、耐火構造、耐震構造、駅徒歩10分以内、制震構造、耐風構造、高気密高断熱住宅、敷地内ごみ置き場、南西向き、都市ガス、洗面所にドア、シャッター、室内物干機、高速ネット対応、IT重説 対応物件 | ||
| 備考 | ■解約時室内清掃費借主負担66,000円(税込)■月額目安賃料:270,000円(賃料・共益費・礼金・更新料を含み4年間賃借した場合の1ヶ月の金額) 合計1.8万円(内訳:My Concier Club1.8万円) 子供可/ペット相談 保証会社利用必 旭化成不動産サポート株式会社 初回保証料:月額総賃料の50% 更新料:20,000円/2年 | ||
| 契約期間 | お問い合わせください。 | ||
|---|---|---|---|
| 入居可能時期 | 
            ''25年11月上旬
           | ||
| 初期費用 | 
            お問い合わせください。
           | ||
| 住宅保険 | 1.84万円2年 | 現状空室状況 | お問い合わせください。 | 
  情報提供元:(株)ホワイトホームズ
  画像提供元:(株)ホワイトホームズ
  ※各種情報と現状に差異がある場合は、現状優先となります。取り扱い不動産会社が複数ある場合は、住宅保険等、一部条件が異なる場合もございますので、取扱店舗までご確認下さいませ。
この物件にお問い合わせ
周辺施設
| コンビニ | ニューヤマザキデイリーストア 池上みずむらや店 セブン‐イレブン 大田区久が原5丁目店 | |||
|---|---|---|---|---|
| スーパー | オオゼキ池上店 東急ストア 池上店 | |||
| ドラッグストア | 久が原至誠堂薬局 すみれ調剤薬局 | |||
| 保育園 | マミーズエンジェル池上保育園 | |||
|---|---|---|---|---|
| 幼稚園 | 徳持幼稚園池上学園 | |||
| 小学校 | 大田区立池上小学校 | |||
| 中学校 | 大田区立大森第四中学校 大森第四 | |||
※周辺情報は不動産会社から提供された情報ではなく、弊サービスで独自に収集した情報です。
担当者のオススメポイント!
ZEH-M(ゼッチ)対応ヘーベルメゾン
ペット共生(大型犬は1Fのみ飼育可)、IoT物件、Wi-Fi無料、お子様可 ※ペット飼育者または半年以内に飼育予定の方のみ入居可※
Y3N[2階]の取扱会社情報 1件
| 取扱会社(1) | (株)ホワイトホームズ (情報提供媒体:SUUMO) | ||
|---|---|---|---|
| 住所 | 東京都大田区東嶺町 28-11 | ||
| 電話番号 | 03-6410-6801 | 免許番号 | 東京都知事(14)第22427号 | 
| 取引態様 | 仲介 | 物件管理番号 | 100448175290 ※お問い合わせの際には、担当者へ物件管理番号をお伝えください。 | 
| 物件に関する情報 | 
                  物件の所在地 : 東京都大田区池上3 /
                  交通の利便 : 東急池上線/池上駅 歩8分、都営浅草線/西馬込駅 歩16分 /
                  面積 : 76.16m² /
                  築年月 : 新築(2025年10月) /
                  賃料 : 24.0万円 /
                  管理費又は共益費等 : 2.0万円 /
                  礼金等 : 1ヶ月 /
                  敷金 : 1ヶ月、保証金等 : -、 償却、敷引 : - /
                  住宅総合保険等の損害保険料 : 1.84万円2年 /
                  その他 : ■解約時室内清掃費借主負担66,000円(税込)■月額目安賃料:270,000円(賃料・共益費・礼金・更新料を含み4年間賃借した場合の1ヶ月の金額)
合計1.8万円(内訳:My Concier Club1.8万円)
子供可/ペット相談
保証会社利用必 旭化成不動産サポート株式会社 初回保証料:月額総賃料の50% 更新料:20,000円/2年
                    / 駐車場 : 有(敷地内)
敷地内30000円
                 
                  ZEH-M(ゼッチ)対応ヘーベルメゾン ペット共生(大型犬は1Fのみ飼育可)、IoT物件、Wi-Fi無料、お子様可 ※ペット飼育者または半年以内に飼育予定の方のみ入居可※ | ||
| 所属団体 | (公社)東京都宅地建物取引業協会会員 (公社)首都圏不動産公正取引協議会加盟 | ||


 
                 
                 
                 
                   
                   
                   
                   
                   
                   
                   
                   
                   
                   
                  ![Y3N[2階]の間取り](https://smocca.jp/assets/common/spinner-1d171161728705657e0dc19391353959.gif) 
