浜野ビル[2階]
情報公開日:2025/04/30(残り15日)
次回更新日は情報公開日より15日以内
物件画像
画像提供元:丸高商事(株)
この物件のタグ
この物件にお問い合わせ
浜野ビル[2階]の物件情報
| 賃料/管理費等 |
3.0万円(管理費等 2,000円)
|
||
|---|---|---|---|
| 敷金 | 3.0万円 | 礼金 | 無料 |
| 種別/構造 | マンション/RC | 築年月 | 1985年03月 |
| 所在地 |
鹿児島県鹿児島市田上2
|
||
| 主要交通機関 |
九州新幹線/鹿児島中央駅 歩25分 鹿児島市営/武小 歩3分 |
||
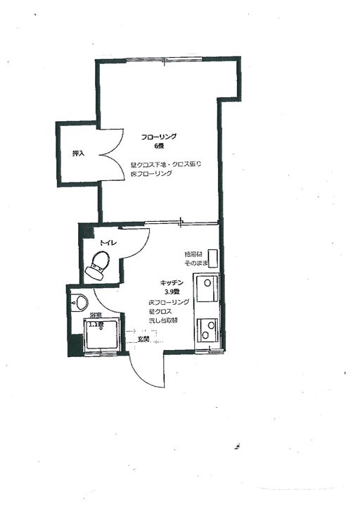
| 間取り | 1K | 面積 | 25.0m² |
| 間取り詳細 | 洋6 K3 | 方位 | - |
| 階数/部屋番号 | 2階/地上3階建 | 駐車場 | 無 |
| 特徴 |
|
||
| 設備/条件 | バストイレ別、バルコニー、エアコン、フローリング、陽当り良好、角住戸、駐輪場、押入、即入居可、敷金1ヶ月、駅まで平坦、平坦地、始発駅、都市ガス | ||
| 備考 |
窓が二重サッシです 保証会社利用必 50 |
||
| 契約期間 | お問い合わせください。 | ||
|---|---|---|---|
| 入居可能時期 |
即入居可
|
||
| 初期費用 |
お問い合わせください。
|
||
| 住宅保険 | 要 | 現状空室状況 | お問い合わせください。 |
情報提供元:丸高商事(株)
画像提供元:丸高商事(株)
※各種情報と現状に差異がある場合は、現状優先となります。取り扱い不動産会社が複数ある場合は、住宅保険等、一部条件が異なる場合もございますので、取扱店舗までご確認下さいませ。
この物件にお問い合わせ
周辺施設
| コンビニ |
ローソン鹿児島田上天神店 ファミリーマート 田上三丁目店 |
|||
|---|---|---|---|---|
| スーパー |
マックスバリュ 上荒田店 株式会社タイヨー タイヨー田上店 |
|||
| ドラッグストア |
あさひ薬局田上店 スター調剤薬局 田上店 |
|||
| 保育園 |
エンジェル キッズ保育園 |
|||
|---|---|---|---|---|
| 幼稚園 |
唐湊幼稚園 |
|||
| 小学校 |
鹿児島市立武小学校 |
|||
| 中学校 |
鹿児島市立武中学校 |
|||
※周辺情報は不動産会社から提供された情報ではなく、弊サービスで独自に収集した情報です。
担当者のオススメポイント!
窓が二重サッシです
窓が二重サッシです
浜野ビル[2階]の取扱会社情報 1件
| 取扱会社(1) | 丸高商事(株) (情報提供媒体:SUUMO) | ||
|---|---|---|---|
| 住所 | 鹿児島県鹿児島市武2-13-10 | ||
| 電話番号 | 099-252-3021 | 免許番号 | 鹿児島県知事(2)第6038号 |
| 取引態様 | 代理 | 物件管理番号 |
100236603328 ※お問い合わせの際には、担当者へ物件管理番号をお伝えください。 |
| 物件に関する情報 |
物件の所在地 : 鹿児島県鹿児島市田上2 /
交通の利便 : 九州新幹線/鹿児島中央駅 歩25分、鹿児島市営/武小 歩3分 /
面積 : 25.00m² /
築年月 : 1985年03月 /
賃料 : 3.0万円 /
管理費又は共益費等 : 2,000円 /
礼金等 : 無料 /
敷金 : 1ヶ月、保証金等 : -、 償却、敷引 : - /
住宅総合保険等の損害保険料 : 要 /
その他 : 窓が二重サッシです
保証会社利用必 50
/ 駐車場 : 無
窓が二重サッシです
窓が二重サッシです |
||
| 所属団体 |
(公社)鹿児島県宅地建物取引業協会会員 (一社)九州不動産公正取引協議会加盟 |
||

