
メインステージ両国駅前
空室情報
| 間取り画像 | 階 部屋番号 | 賃料 管理費 | 敷金 礼金 | 間取 面積 | 方位 | |
|---|---|---|---|---|---|---|
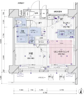
新着 ![]() | 10階 ー | 18.0万円 2.0万円 | 無料 無料 | 1LDK 41.2m² | 南 | |
![]() | 4階 ー | 9.7万円 2.0万円 | 無料 無料 | 1K 22.27m² | 南 |
過去掲載物件情報
| 階 | 賃料 管理費 | 敷金 礼金 | 間取 面積 |
|---|---|---|---|
| 4階 | 9.7万円 2.0万円 | 無料 無料 | 1K 22.27m² |
| 5階 | 8.3万円 1.5万円 | 無料 8.3万円 | 1K 22.27m² |
| 11階 | 17.9万円 2.0万円 | 無料 17.9万円 | 1LDK 41.2m² |
建物情報
| 住所 | 東京都墨田区緑1丁目周辺物件を探す | 最寄り駅/列車種別 | |
|---|---|---|---|
| 階建 | 地上12階建 | 築年月 | 2011年07月 |
| 種別 | マンション | 構造 | RC |
周辺環境
周辺地図
周辺施設
共創未来両国薬局 (261m)
竹内薬局森下店 (316m)
マルエツプチ両国緑一丁目店 (36m)
有限会社八百賢 (388m)
セブン‐イレブン 墨田緑1丁目店 (147m)
ローソンストア100 両国店 (149m)
墨田区立 緑幼稚園 (275m)
ちゃのま保育園 両国駅前園 (97m)
墨田区立 緑小学校 (185m)
日本大学第一中学校 (410m)
※周辺情報は不動産会社から提供された情報ではなく、弊サービスで独自に収集した情報です。
※2024年10月時点のデータを元にしているため、最新および正確でない可能性があります。




