第5上野ビル[3階]
情報公開日:2025/10/25(残り15日)
次回更新日は情報公開日より15日以内
物件画像
画像提供元:(株)ラフィングHOME久留米合川店
この物件のタグ
この物件にお問い合わせ
第5上野ビル[3階]の物件情報
| 賃料/管理費等 |
4.0万円(管理費等 -)
|
||
|---|---|---|---|
| 敷金 | 無料 | 礼金 | 無料 |
| 種別/構造 | マンション/RC | 築年月 | 1976年11月 |
| 所在地 |
福岡県久留米市津福今町
|
||
| 主要交通機関 |
JR久大本線/久留米高校前駅 歩15分 西鉄天神大牟田線/聖マリア病院前駅 歩14分 西鉄天神大牟田線/津福駅 歩14分 |
||
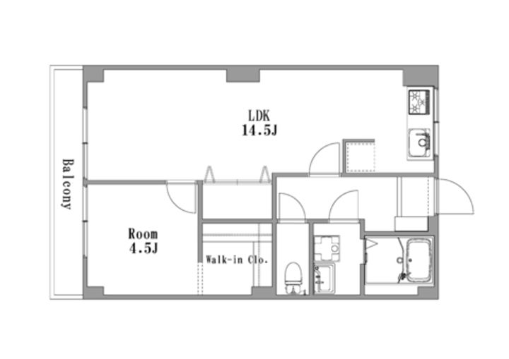
| 間取り | 1LDK | 面積 | 38.0m² |
| 間取り詳細 | 洋4.5 LDK14.5 | 方位 | 南 |
| 階数/部屋番号 | 3階/地上5階建 | 駐車場 | 近隣駐車場 近隣200m4000円 |
| 特徴 |
|
||
| 設備/条件 | バストイレ別、バルコニー、エアコン、ガスコンロ対応、クロゼット、フローリング、シャワー付洗面台、TVインターホン、室内洗濯置、陽当り良好、シューズボックス、システムキッチン、南向き、温水洗浄便座、脱衣所、洗面所独立、洗面化粧台、2口コンロ、駐輪場、礼金不要、閑静な住宅地、2面採光、敷金不要、全居室収納、全居室洋室、ウォークインクロゼット、二人入居相談、バイク置場、全居室フローリング、デザイナーズ、2沿線利用可、キッチンに窓、眺望良好、全室南向き、外壁コンクリート、平坦地、南面2室、南面リビング、学生相談、2駅利用可、3駅以上利用可、敷地内ごみ置き場、LDK12畳以上、オープンキッチン、プロパンガス、洗面所にドア、南面バルコニー、内装リフォーム後渡、敷金・礼金不要、保証会社利用可、IT重説 対応物件、初期費用カード決済可、通風良好 | ||
| 備考 |
当社は 久留米 の不動産会社です。新入学・社会人・転勤・ファミリー様と幅広くご紹介可能です!初期費用の分割も可能 オンライン内覧もお気軽にお申し付けください♪ 賃貸 売買 でお探しなら ラフィングHOME へお任せください!!! 合計1.87万円(内訳:鍵交換代1.87万円) 安心サポート 月額880円 月額保証料 月額700円 単身者可/二人入居可/子供可/事務所利用不可 普通借家 2年 保証会社利用必 総賃料100% |
||
| 契約期間 | お問い合わせください。 | ||
|---|---|---|---|
| 入居可能時期 |
お問い合わせください。
|
||
| 初期費用 |
お問い合わせください。
|
||
| 住宅保険 | 要 | 現状空室状況 | お問い合わせください。 |
情報提供元:(株)ラフィングHOME久留米合川店
画像提供元:(株)ラフィングHOME久留米合川店
※各種情報と現状に差異がある場合は、現状優先となります。取り扱い不動産会社が複数ある場合は、住宅保険等、一部条件が異なる場合もございますので、取扱店舗までご確認下さいませ。
この物件にお問い合わせ
周辺施設
| コンビニ |
ミニストップ久留米津福今町店 セブン‐イレブン 久留米津福バイパス店 |
|||
|---|---|---|---|---|
| ドラッグストア |
津福今町薬局 ドラッグストアモリ 津福店 |
|||
| 保育園 |
ゆりかご保育園 |
|||
|---|---|---|---|---|
| 幼稚園 |
正進幼稚園 |
|||
| 小学校 |
久留米市立津福小学校 |
|||
| 中学校 |
福岡教育大学附属久留米中学校 FAX |
|||
※周辺情報は不動産会社から提供された情報ではなく、弊サービスで独自に収集した情報です。
担当者のオススメポイント!
フルリノベーション物件!低価格物件でこの内装!
共用部には敷地内ごみ置き場・バイク置場などが備わっておりとても充実しています。化粧品や洗面道具といった小物をまとめて収納できる洗面化粧台を採用しています。お引越しのお日にちはお気軽にご相談ください。
第5上野ビル[3階]の取扱会社情報 1件
| 取扱会社(1) | (株)ラフィングHOME久留米合川店 (情報提供媒体:SUUMO) | ||
|---|---|---|---|
| 住所 | 福岡県久留米市合川町 114-12 | ||
| 電話番号 | 0942-80-8068 | 免許番号 | 福岡県知事(1)第20143号 |
| 取引態様 | 仲介 | 物件管理番号 |
100469236282 ※お問い合わせの際には、担当者へ物件管理番号をお伝えください。 |
| 物件に関する情報 |
物件の所在地 : 福岡県久留米市津福今町 /
交通の利便 : JR久大本線/久留米高校前駅 歩15分、西鉄天神大牟田線/聖マリア病院前駅 歩14分、西鉄天神大牟田線/津福駅 歩14分 /
面積 : 38.0m² /
築年月 : 1976年11月 /
賃料 : 4.0万円 /
管理費又は共益費等 : - /
礼金等 : 無料 /
敷金 : 無料、保証金等 : -、 償却、敷引 : - /
住宅総合保険等の損害保険料 : 要 /
その他 : 当社は 久留米 の不動産会社です。新入学・社会人・転勤・ファミリー様と幅広くご紹介可能です!初期費用の分割も可能 オンライン内覧もお気軽にお申し付けください♪ 賃貸 売買 でお探しなら ラフィングHOME へお任せください!!!
合計1.87万円(内訳:鍵交換代1.87万円)
安心サポート 月額880円 月額保証料 月額700円
単身者可/二人入居可/子供可/事務所利用不可
普通借家 2年
保証会社利用必 総賃料100%
/ 駐車場 : 近隣駐車場
近隣200m4000円
フルリノベーション物件!低価格物件でこの内装!
共用部には敷地内ごみ置き場・バイク置場などが備わっておりとても充実しています。化粧品や洗面道具といった小物をまとめて収納できる洗面化粧台を採用しています。お引越しのお日にちはお気軽にご相談ください。 |
||
| 所属団体 |
(公社)福岡県宅地建物取引業協会会員 (一社)九州不動産公正取引協議会加盟 |
||

