[一戸建] 広島県福山市南蔵王町4 の賃貸【広島県 / 福山市】
情報公開日:2025/12/11(残り15日)
次回更新日は2025/12/24
物件画像
画像提供元:(株)トリコム
この物件のタグ
この物件にお問い合わせ
[一戸建] 広島県福山市南蔵王町4 の賃貸【広島県 / 福山市】の物件情報
| 賃料/管理費等 |
13.2万円(管理費等 5,000円)
|
||
|---|---|---|---|
| 敷金 | 無料 | 礼金 | 無料 |
| 種別/構造 | 一戸建/木造 | 築年月 | 建築中(2026年02月) |
| 所在地 |
広島県福山市南蔵王町4
|
||
| 主要交通機関 | JR山陽本線/福山駅 バス10分 (バス停)宮の端 歩7分 | ||
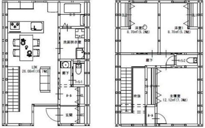
| 間取り | 3LDK | 面積 | 91.91m² |
| 間取り詳細 | 洋7.3 洋5.2 洋5.2 LDK15.7 | 方位 | - |
| 階数/部屋番号 | -/地上2階建 | 駐車場 | 付無料 |
| 特徴 |
|
||
| 設備/条件 | バストイレ別、クロゼット、シャワー付洗面台、TVインターホン、浴室乾燥機、室内洗濯置、システムキッチン、温水洗浄便座、洗面所独立、駐輪場、3口以上コンロ、対面式キッチン、照明付、全居室洋室、保証人不要、駐車2台可、エアコン2台、LDK15畳以上、メゾネット、ネット使用料不要、保証金不要、築2年以内、未入居、敷地内ごみ置き場、専有面積25坪以上、プロパンガス、年度内入居可、敷金・礼金不要、初期費用カード決済可 | ||
| 備考 |
24時間サポートサービス:990円/1ヵ月 2台目駐車場:5500円/1ヵ月、更新料:72500円/2年 保証会社利用必 ジェイリース 月額賃料65%/入居時、以降は1.0万円/更新時(入居期間中)、月額保証料1000円 |
||
| 契約期間 | お問い合わせください。 | ||
|---|---|---|---|
| 入居可能時期 |
''26年3月中旬
|
||
| 初期費用 |
お問い合わせください。
|
||
| 住宅保険 | 2万円2年 | 現状空室状況 | お問い合わせください。 |
情報提供元:(株)トリコム
画像提供元:(株)トリコム
※各種情報と現状に差異がある場合は、現状優先となります。取り扱い不動産会社が複数ある場合は、住宅保険等、一部条件が異なる場合もございますので、取扱店舗までご確認下さいませ。
この物件にお問い合わせ
周辺施設
| コンビニ |
セブン‐イレブン 福山南蔵王3丁目店 セブンイレブン福山東深津3丁目店 |
|||
|---|---|---|---|---|
| スーパー |
フレスタ蔵王店 株式会社エブリイ 蔵王店 |
|||
| ドラッグストア |
かえで薬局 近藤漢方薬局 |
|||
| 保育園 |
株式会社こどものとも社 |
|||
|---|---|---|---|---|
| 幼稚園 |
株式会社こどものとも社 |
|||
| 小学校 |
福山市立深津小学校 |
|||
| 中学校 |
福山市立城東中学校 |
|||
※周辺情報は不動産会社から提供された情報ではなく、弊サービスで独自に収集した情報です。
担当者のオススメポイント!
エアコン2台・3口ガスシステムキッチン・浴室乾燥機・ウォシ…
ュレット等設備充実。お部屋ごとに色が違います、新築3LDKメゾネットタイプ・駐車場1台込み・インターネット無料・駐輪場・専用ゴミステーションあり
[一戸建] 広島県福山市南蔵王町4 の賃貸【広島県 / 福山市】の取扱会社情報 1件
| 取扱会社(1) | (株)トリコム (情報提供媒体:SUUMO) | ||
|---|---|---|---|
| 住所 | 広島県福山市多治米町5-24-15 | ||
| 電話番号 | 084-954-1888 | 免許番号 | 広島県知事(2)第10530号 |
| 取引態様 | 仲介 | 物件管理番号 |
100462258298 ※お問い合わせの際には、担当者へ物件管理番号をお伝えください。 |
| 物件に関する情報 |
物件の所在地 : 広島県福山市南蔵王町4 /
交通の利便 : JR山陽本線/福山駅 バス10分 (バス停)宮の端 歩7分 /
面積 : 91.91m² /
築年月 : 建築中(2026年02月) /
賃料 : 13.2万円 /
管理費又は共益費等 : 5,000円 /
礼金等 : 無料 /
敷金 : 無料、保証金等 : -、 償却、敷引 : - /
住宅総合保険等の損害保険料 : 2万円2年 /
その他 : 24時間サポートサービス:990円/1ヵ月
2台目駐車場:5500円/1ヵ月、更新料:72500円/2年
保証会社利用必 ジェイリース 月額賃料65%/入居時、以降は1.0万円/更新時(入居期間中)、月額保証料1000円
/ 駐車場 : 付無料
エアコン2台・3口ガスシステムキッチン・浴室乾燥機・ウォシ…
ュレット等設備充実。お部屋ごとに色が違います、新築3LDKメゾネットタイプ・駐車場1台込み・インターネット無料・駐輪場・専用ゴミステーションあり |
||
| 所属団体 |
(公社)広島県宅地建物取引業協会会員 中国地区不動産公正取引協議会加盟 |
||

