コーポ桔梗[4階]
情報公開日:2025/08/29(残り15日)
次回更新日は情報公開日より15日以内
物件画像
画像提供元:(株)ファーストキー
この物件のタグ
この物件にお問い合わせ
コーポ桔梗[4階]の物件情報
| 賃料/管理費等 |
6.7万円(管理費等 3,000円)
|
||
|---|---|---|---|
| 敷金 | 6.7万円 | 礼金 | 6.7万円 |
| 種別/構造 | マンション/RC | 築年月 | 1981年05月 |
| 敷金積み増し | ペット飼育の場合敷金2ヶ月(総額) | ||
| 所在地 |
埼玉県さいたま市北区日進町1
|
||
| 主要交通機関 |
JR川越線/日進駅 歩15分 埼玉新都市交通伊奈線/鉄道博物館駅 歩21分 JR高崎線/宮原駅 歩30分 |
||
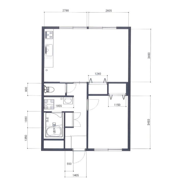
| 間取り | 1LDK | 面積 | 47.0m² |
| 間取り詳細 | 洋6 LDK12 | 方位 | 東 |
| 階数/部屋番号 | 4階/地上4階建 | 駐車場 | 有(敷地内) 敷地内7000円 |
| 特徴 |
|
||
| 設備/条件 | バストイレ別、バルコニー、エアコン、ガスコンロ対応、クロゼット、フローリング、室内洗濯置、陽当り良好、シューズボックス、追焚機能浴室、温水洗浄便座、洗面所独立、洗面化粧台、駐輪場、光ファイバー、即入居可、ペット相談、分譲賃貸、全居室フローリング、ネット使用料不要、事務所相談、敷地内ごみ置き場、都市ガス、リノベーション、初期費用カード決済可 | ||
| 備考 |
リフォーム:2018年12月全部屋フルリノベーション 合計1.65万円(内訳:鍵交換費 16500円) 24Hサポート 16200円 二人入居可/ペット相談/事務所利用相談 保証会社利用必 初回月額賃料の50% 更新料1年毎1万円 |
||
| 契約期間 | お問い合わせください。 | ||
|---|---|---|---|
| 入居可能時期 |
即入居可
|
||
| 初期費用 |
お問い合わせください。
|
||
| 住宅保険 | 1.68万円2年 | 現状空室状況 | お問い合わせください。 |
情報提供元:(株)ファーストキー
画像提供元:(株)ファーストキー
※各種情報と現状に差異がある場合は、現状優先となります。取り扱い不動産会社が複数ある場合は、住宅保険等、一部条件が異なる場合もございますので、取扱店舗までご確認下さいませ。
この物件にお問い合わせ
周辺施設
| コンビニ |
ファミリーマート 大宮駐屯地店 セブン‐イレブンさいたま大宮自衛隊前店 |
|||
|---|---|---|---|---|
| スーパー |
ヤオコー 大宮櫛引店 ベルクさいたま櫛引店 |
|||
| ドラッグストア |
日進薬局 ひだまり薬局 |
|||
| 保育園 |
さいたま市立 日進西保育園 |
|||
|---|---|---|---|---|
| 幼稚園 |
日進幼稚園 |
|||
| 小学校 |
さいたま市立宮前小学校 |
|||
| 中学校 |
さいたま市立大宮西中学校 |
|||
※周辺情報は不動産会社から提供された情報ではなく、弊サービスで独自に収集した情報です。
担当者のオススメポイント!
ペット飼育相談出来ます♪詳細はお問い合わせ下さい!
リノベーション済みのお部屋です♪是非ご覧下さい!お洒落なアクセントクロスが特徴的な1LDKタイプのご紹介です♪是非ご覧下さい!
コーポ桔梗[4階]の取扱会社情報 1件
| 取扱会社(1) | (株)ファーストキー (情報提供媒体:SUUMO) | ||
|---|---|---|---|
| 住所 | 東京都渋谷区笹塚2-23-6 1階 | ||
| 電話番号 | 03-5309-2240 | 免許番号 | 東京都知事(3)第95945号 |
| 取引態様 | 仲介 | 物件管理番号 |
100144381533 ※お問い合わせの際には、担当者へ物件管理番号をお伝えください。 |
| 物件に関する情報 |
物件の所在地 : 埼玉県さいたま市北区日進町1 /
交通の利便 : JR川越線/日進駅 歩15分、埼玉新都市交通伊奈線/鉄道博物館駅 歩21分、JR高崎線/宮原駅 歩30分 /
面積 : 47.0m² /
築年月 : 1981年05月 /
賃料 : 6.7万円 /
管理費又は共益費等 : 3,000円 /
礼金等 : 1ヶ月 /
敷金 : 1ヶ月、保証金等 : -、 償却、敷引 : - /
住宅総合保険等の損害保険料 : 1.68万円2年 /
その他 : リフォーム:2018年12月全部屋フルリノベーション
合計1.65万円(内訳:鍵交換費 16500円)
24Hサポート 16200円
二人入居可/ペット相談/事務所利用相談
保証会社利用必 初回月額賃料の50% 更新料1年毎1万円
/ 駐車場 : 有(敷地内)
敷地内7000円
ペット飼育相談出来ます♪詳細はお問い合わせ下さい!
リノベーション済みのお部屋です♪是非ご覧下さい!お洒落なアクセントクロスが特徴的な1LDKタイプのご紹介です♪是非ご覧下さい! |
||
| 所属団体 |
(公社)全日本不動産協会東京都本部会員 (公社)首都圏不動産公正取引協議会加盟 |
||

