神奈川県川崎市川崎区浅田2の賃貸マンション
情報公開日:2025/12/11(残り15日)
次回更新日は2025/12/18
物件画像
画像提供元:(株)ネクストライフ溝の口店
この物件のタグ
この物件にお問い合わせ
神奈川県川崎市川崎区浅田2の賃貸マンションの物件情報
| 賃料/管理費等 |
5.8万円(管理費等 -)
|
||
|---|---|---|---|
| 敷金 | 5.8万円 | 礼金 | 無料 |
| 種別/構造 | マンション/SRC | 築年月 | 1993年04月 |
| 所在地 |
神奈川県川崎市川崎区浅田2
|
||
| 主要交通機関 |
JR南武線/小田栄駅 歩12分 JR鶴見線/武蔵白石駅 歩15分 JR鶴見線/安善駅 歩18分 |
||
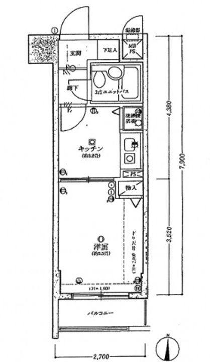
| 間取り | 1K | 面積 | 21.33m² |
| 間取り詳細 | 洋5.5 | 方位 | 南 |
| 階数/部屋番号 | 2階/地上10階建 | 駐車場 | 無 |
| 特徴 |
|
||
| 設備/条件 | バルコニー、エアコン、クロゼット、TVインターホン、オートロック、室内洗濯置、シューズボックス、南向き、エレベーター、宅配ボックス、即入居可、礼金不要、IHクッキングヒーター、分譲賃貸、冷蔵庫、2沿線利用可、2駅利用可、3駅以上利用可、敷地内ごみ置き場、都市ガス、南面バルコニー、BS、初期費用カード決済可 | ||
| 備考 |
消火剤:5500円 24時間安心サポート:16500円 鍵交換代:22000円 解約事務手数料:13200円 退去時のクリーニング費用(実費)は借主負担になります 違約金:1年未満の解約時総家賃1ヵ月分 ◆お持ちのクレジットカードで初期費用の決済が可能です◆初期費用のお見積り等、お気軽にお問い合わせくださいませ◆0120-955-199◆ 更新料 新賃料1.50ヶ月分 普通借家 2年 保証会社利用必 初回(月額総賃料の50%)、月額(月額総賃料の1.4%) |
||
| 契約期間 | お問い合わせください。 | ||
|---|---|---|---|
| 入居可能時期 |
即入居可
|
||
| 初期費用 |
お問い合わせください。
|
||
| 住宅保険 | 1.8万円2年 | 現状空室状況 | お問い合わせください。 |
情報提供元:(株)ネクストライフ溝の口店
画像提供元:(株)ネクストライフ溝の口店
※各種情報と現状に差異がある場合は、現状優先となります。取り扱い不動産会社が複数ある場合は、住宅保険等、一部条件が異なる場合もございますので、取扱店舗までご確認下さいませ。
この物件にお問い合わせ
周辺施設
| コンビニ |
ローソン 川崎浅田3丁目店 ファミリーマート 小田本通店 |
|||
|---|---|---|---|---|
| スーパー |
ヒルマ・マーケットプレイス 小田店 株式会社ライフコーポレーション 川崎京町店 |
|||
| ドラッグストア |
浅田薬局 ドラッグストアスマイル 川崎浅田店 |
|||
| 保育園 |
京町いづみ保育園 |
|||
|---|---|---|---|---|
| 幼稚園 |
浅田幼稚園 |
|||
| 小学校 |
川崎市立浅田小学校 |
|||
| 中学校 |
川崎市立 京町中学校 |
|||
※周辺情報は不動産会社から提供された情報ではなく、弊サービスで独自に収集した情報です。
担当者のオススメポイント!
【0120-955-199】お気軽におくださいませ♪
おでのお問い合わせは 8時30分 から 21時まで 可能です!お気軽にフリーダイヤルまでご連絡ください♪◇webでのお申し込みも対応可能です◇
神奈川県川崎市川崎区浅田2の賃貸マンションの取扱会社情報 1件
| 取扱会社(1) | (株)ネクストライフ溝の口店 (情報提供媒体:SUUMO) | ||
|---|---|---|---|
| 住所 | 神奈川県川崎市高津区溝口1-13-18 セキグチビル3階 | ||
| 電話番号 | 050-5530-2874 | 免許番号 | 国土交通大臣(3)第8175号 |
| 取引態様 | 仲介 | 物件管理番号 |
100450683214 ※お問い合わせの際には、担当者へ物件管理番号をお伝えください。 |
| 物件に関する情報 |
物件の所在地 : 神奈川県川崎市川崎区浅田2 /
交通の利便 : JR南武線/小田栄駅 歩12分、JR鶴見線/武蔵白石駅 歩15分、JR鶴見線/安善駅 歩18分 /
面積 : 21.33m² /
築年月 : 1993年04月 /
賃料 : 5.8万円 /
管理費又は共益費等 : - /
礼金等 : 無料 /
敷金 : 1ヶ月、保証金等 : -、 償却、敷引 : - /
住宅総合保険等の損害保険料 : 1.8万円2年 /
その他 : 消火剤:5500円 24時間安心サポート:16500円 鍵交換代:22000円 解約事務手数料:13200円 退去時のクリーニング費用(実費)は借主負担になります 違約金:1年未満の解約時総家賃1ヵ月分 ◆お持ちのクレジットカードで初期費用の決済が可能です◆初期費用のお見積り等、お気軽にお問い合わせくださいませ◆0120-955-199◆
更新料 新賃料1.50ヶ月分
普通借家 2年
保証会社利用必 初回(月額総賃料の50%)、月額(月額総賃料の1.4%)
/ 駐車場 : 無
【0120-955-199】お気軽におくださいませ♪
おでのお問い合わせは 8時30分 から 21時まで 可能です!お気軽にフリーダイヤルまでご連絡ください♪◇webでのお申し込みも対応可能です◇ |
||
| 所属団体 |
(公社)神奈川県宅地建物取引業協会会員 (公社)首都圏不動産公正取引協議会加盟 |
||

