URリバーサイドともぶち第二[7階]
情報公開日:2025/10/26(残り15日)
次回更新日は情報公開日より15日以内
物件画像
画像提供元:都市再生機構 UR梅田営業センター
この物件のタグ
この物件にお問い合わせ
URリバーサイドともぶち第二[7階]の物件情報
| 賃料/管理費等 |
9.13万円(管理費等 3,900円)
|
||
|---|---|---|---|
| 敷金 | 18.26万円 | 礼金 | 無料 |
| 種別/構造 | マンション/SRC | 築年月 | 1984年04月 |
| 所在地 |
大阪府大阪市都島区友渕町1
|
||
| 主要交通機関 |
地下鉄谷町線/都島駅 歩16分 JR大阪環状線/大阪駅 バス14分 (バス停)毛馬橋 歩7分 JR大阪環状線/桜ノ宮駅 歩22分 |
||
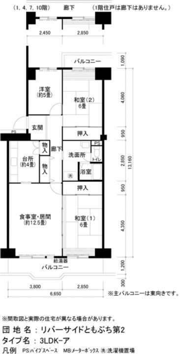
| 間取り | 3LDK | 面積 | 79.37m² |
| 間取り詳細 | 和6 和6 洋5 K4LD12.5 | 方位 | 東 |
| 階数/部屋番号 | 7階/地上11階建 | 駐車場 | 有(敷地内) 敷地内21670円 |
| 特徴 |
|
||
| 設備/条件 | バストイレ別、バルコニー、エアコン、TVインターホン、室内洗濯置、システムキッチン、追焚機能浴室、エレベーター、洗面所独立、洗面化粧台、駐輪場、押入、CATV、光ファイバー、即入居可、礼金不要、3口以上コンロ、防犯カメラ、独立型キッチン、保証人不要、仲介手数料不要、CATVインターネット、2沿線利用可、敷金2ヶ月、保証金不要、3駅以上利用可、敷地内ごみ置き場、都市ガス、BS、高速ネット対応、初期費用30万円以下 | ||
| 備考 | SMBA01MS | ||
| 契約期間 | お問い合わせください。 | ||
|---|---|---|---|
| 入居可能時期 |
即入居可
|
||
| 初期費用 |
お問い合わせください。
|
||
| 住宅保険 | - | 現状空室状況 | お問い合わせください。 |
情報提供元:都市再生機構 UR梅田営業センター
画像提供元:都市再生機構 UR梅田営業センター
※各種情報と現状に差異がある場合は、現状優先となります。取り扱い不動産会社が複数ある場合は、住宅保険等、一部条件が異なる場合もございますので、取扱店舗までご確認下さいませ。
この物件にお問い合わせ
周辺施設
| コンビニ |
ファミリーマート 毛馬町一丁目店 セブン-イレブン 大阪毛馬町2丁目店 |
|||
|---|---|---|---|---|
| スーパー |
ライフ毛馬店 株式会社マルヤス 都島店 |
|||
| ドラッグストア |
有限会社ベル薬局 ローレルスクエア店 スギ薬局都島毛馬店 |
|||
| 保育園 |
社会福祉法人敬福会 毛馬コティ保育園 |
|||
|---|---|---|---|---|
| 幼稚園 |
学校法人高倉幼稚園 |
|||
| 小学校 |
大阪市立友渕小学校 分校 |
|||
| 中学校 |
大阪市立友渕中学校 |
|||
※周辺情報は不動産会社から提供された情報ではなく、弊サービスで独自に収集した情報です。
担当者のオススメポイント!
UR賃貸住宅は、礼金・仲介手数料・更新料・保証人不要!
静かな環境で、季節の移り変わりが楽しめます。近隣にはショッピングセンターや医療機関も充実していて大変便利です。また、小・中学校や保育園・幼稚園も近くにあります。
URリバーサイドともぶち第二[7階]の取扱会社情報 1件
| 取扱会社(1) | 都市再生機構 UR梅田営業センター (情報提供媒体:SUUMO) | ||
|---|---|---|---|
| 住所 | 大阪府大阪市北区梅田2-2-22 ハービスエントオフィスタワー12階 | ||
| 電話番号 | 06-6346-3456 | 免許番号 | 公団・公社()第号 |
| 取引態様 | 貸主 | 物件管理番号 |
100469161600 ※お問い合わせの際には、担当者へ物件管理番号をお伝えください。 |
| 物件に関する情報 |
物件の所在地 : 大阪府大阪市都島区友渕町1 /
交通の利便 : 地下鉄谷町線/都島駅 歩16分、JR大阪環状線/大阪駅 バス14分 (バス停)毛馬橋 歩7分、JR大阪環状線/桜ノ宮駅 歩22分 /
面積 : 79.37m² /
築年月 : 1984年04月 /
賃料 : 9.13万円 /
管理費又は共益費等 : 3,900円 /
礼金等 : 無料 /
敷金 : 2ヶ月、保証金等 : -、 償却、敷引 : - /
住宅総合保険等の損害保険料 : - /
その他 : SMBA01MS
/ 駐車場 : 有(敷地内)
敷地内21670円
UR賃貸住宅は、礼金・仲介手数料・更新料・保証人不要!
静かな環境で、季節の移り変わりが楽しめます。近隣にはショッピングセンターや医療機関も充実していて大変便利です。また、小・中学校や保育園・幼稚園も近くにあります。 |
||

