埼玉県白岡市新白岡8の賃貸マンション
情報公開日:2025/11/01(残り15日)
次回更新日は2025/11/08
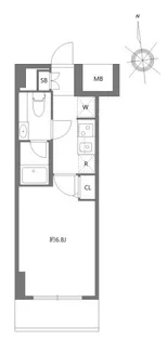
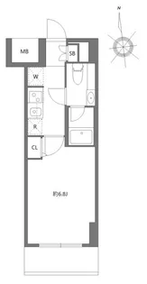
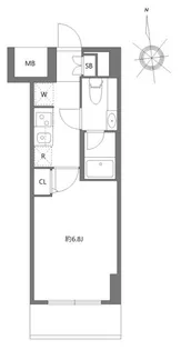
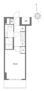
物件画像
画像提供元:いい部屋ネット大東建託リーシング(株)越谷店
この物件のタグ
この物件にお問い合わせ
埼玉県白岡市新白岡8の賃貸マンションの物件情報
| 賃料/管理費等 |
5.48万円(管理費等 1.8万円)
|
||
|---|---|---|---|
| 敷金 | 無料 | 礼金 | 無料 |
| 種別/構造 | マンション/RC | 築年月 | 新築(2025年03月) |
| 所在地 |
埼玉県白岡市新白岡8
|
||
| 主要交通機関 |
JR宇都宮線/新白岡駅 歩1分 湘南新宿ライン宇須/新白岡駅 歩1分 |
||
| 間取り | 1K | 面積 | 22.48m² |
| 間取り詳細 | 洋6.8 K2.00 | 方位 | 南 |
| 階数/部屋番号 | 4階/地上9階建 | 駐車場 | 無 |
| 特徴 |
|
||
| 設備/条件 | バストイレ別、エアコン、ガスコンロ対応、クロゼット、フローリング、浴室乾燥機、オートロック、シューズボックス、システムキッチン、温水洗浄便座、エレベーター、洗面所独立、2口コンロ、駐輪場、宅配ボックス、即入居可、バイク置場、CS、2駅利用可、敷地内ごみ置き場、平面駐車場、セキュリティ会社加入済、都市ガス、BS、LAN、IT重説 対応物件 | ||
| 備考 |
■短期解約違約金:1年未満2カ月 ■解約予告:2カ月前 ■プレミアデスク代の中に登録料4 400円(税込)を含みます。 合計7.15万円(内訳:プレミアデスク(2年/税込)1.65万円 契約時ルームクリーニング費用(税込)5.5万円 鍵交換代0万円) 更新料 新賃料1.00ヶ月分 事務所利用不可 保証会社利用必 会社2:オリコフォレントインシュア ※物件に関する備考は各社異なりますのでご確認のうえお問い合わせください。 |
||
| 契約期間 | お問い合わせください。 | ||
|---|---|---|---|
| 入居可能時期 |
即入居可
|
||
| 初期費用 |
お問い合わせください。
|
||
| 住宅保険 | 2万円2年 | 現状空室状況 | お問い合わせください。 |
情報提供元:いい部屋ネット大東建託リーシング(株)越谷店
画像提供元:いい部屋ネット大東建託リーシング(株)越谷店
※各種情報と現状に差異がある場合は、現状優先となります。取り扱い不動産会社が複数ある場合は、住宅保険等、一部条件が異なる場合もございますので、取扱店舗までご確認下さいませ。
この物件にお問い合わせ
周辺施設
| コンビニ |
ミニストップ新白岡駅東口店 セブン‐イレブン 新白岡駅西口店 |
|||
|---|---|---|---|---|
| スーパー |
フレンドマートさいとう商店 ヤオコー 新白岡店 |
|||
| ドラッグストア |
ドラッグスギ新白岡店 クスリのアオキ 新白岡店 |
|||
| 保育園 |
フレンドキッズランド 新白岡東口園 |
|||
|---|---|---|---|---|
| 幼稚園 |
杉の子幼稚園 |
|||
| 小学校 |
白岡市立白岡東小学校 |
|||
| 中学校 |
白岡市立篠津中学校 |
|||
※周辺情報は不動産会社から提供された情報ではなく、弊サービスで独自に収集した情報です。
担当者のオススメポイント!
お部屋さがしはいい部屋ネットの大東建託で!
スタッフ一同、お客様のご来店をこころよりお待ちしております!
埼玉県白岡市新白岡8の賃貸マンションの取扱会社情報 3件
| 取扱会社(1) | いい部屋ネット大東建託リーシング(株)越谷店 (情報提供媒体:SUUMO) | ||
|---|---|---|---|
| 住所 | 埼玉県越谷市赤山本町 4-4 ユーエイアドバンスシュウビル1階 | ||
| 電話番号 | 048-963-6791 | 免許番号 | 国土交通大臣(2)第9120号 |
| 取引態様 | 仲介 | 物件管理番号 |
100434624768 ※お問い合わせの際には、担当者へ物件管理番号をお伝えください。 |
| 物件に関する情報 |
物件の所在地 : 埼玉県白岡市新白岡8 /
交通の利便 : JR宇都宮線/新白岡駅 歩1分、湘南新宿ライン宇須/新白岡駅 歩1分 /
面積 : 22.48m² /
築年月 : 新築(2025年03月) /
賃料 : 5.48万円 /
管理費又は共益費等 : 1.8万円 /
礼金等 : 無料 /
敷金 : 無料、保証金等 : -、 償却、敷引 : - /
住宅総合保険等の損害保険料 : 2万円2年 /
その他 : ■短期解約違約金:1年未満2カ月 ■解約予告:2カ月前 ■プレミアデスク代の中に登録料4 400円(税込)を含みます。
合計7.15万円(内訳:プレミアデスク(2年/税込)1.65万円 契約時ルームクリーニング費用(税込)5.5万円 鍵交換代0万円)
更新料 新賃料1.00ヶ月分
事務所利用不可
保証会社利用必 会社2:オリコフォレントインシュア
/ 駐車場 : 無
お部屋さがしはいい部屋ネットの大東建託で!
スタッフ一同、お客様のご来店をこころよりお待ちしております! |
||
| 所属団体 |
(公財)日本賃貸住宅管理協会会員 (公社)首都圏不動産公正取引協議会加盟 |
||
| 取扱会社(2) | いい部屋ネット大東建託リーシング(株)春日部店 (情報提供媒体:SUUMO) | ||
|---|---|---|---|
| 住所 | 埼玉県春日部市中央6-1-1 RSビル1階 | ||
| 電話番号 | 048-738-7825 | 免許番号 | 国土交通大臣(2)第9120号 |
| 取引態様 | 仲介 | 物件管理番号 |
100434559108 ※お問い合わせの際には、担当者へ物件管理番号をお伝えください。 |
| 物件に関する情報 |
物件の所在地 : 埼玉県白岡市新白岡8 /
交通の利便 : JR宇都宮線/新白岡駅 歩1分、湘南新宿ライン宇須/新白岡駅 歩1分 /
面積 : 22.48m² /
築年月 : 新築(2025年03月) /
賃料 : 5.48万円 /
管理費又は共益費等 : 1.8万円 /
礼金等 : 無料 /
敷金 : 無料、保証金等 : -、 償却、敷引 : - /
住宅総合保険等の損害保険料 : 2万円2年 /
その他 : ■短期解約違約金:1年未満2カ月 ■解約予告:2カ月前 ■プレミアデスク代の中に登録料4 400円(税込)を含みます。
合計7.15万円(内訳:プレミアデスク(2年/税込)1.65万円 契約時ルームクリーニング費用(税込)5.5万円 鍵交換代0万円)
更新料 新賃料1.00ヶ月分
事務所利用不可
保証会社利用必 会社2:オリコフォレントインシュア
/ 駐車場 : 無
お部屋さがしはいい部屋ネットの大東建託で!
スタッフ一同、お客様のご来店をこころよりお待ちしております! |
||
| 所属団体 |
(公財)日本賃貸住宅管理協会会員 (公社)首都圏不動産公正取引協議会加盟 |
||
| 取扱会社(3) | いい部屋ネット大東建託リーシング(株)熊谷店 (情報提供媒体:SUUMO) | ||
|---|---|---|---|
| 住所 | 埼玉県熊谷市中西1-8-24 | ||
| 電話番号 | 048-526-0471 | 免許番号 | 国土交通大臣(2)第9120号 |
| 取引態様 | 仲介 | 物件管理番号 |
100434676367 ※お問い合わせの際には、担当者へ物件管理番号をお伝えください。 |
| 物件に関する情報 |
物件の所在地 : 埼玉県白岡市新白岡8 /
交通の利便 : JR宇都宮線/新白岡駅 歩1分、湘南新宿ライン宇須/新白岡駅 歩1分 /
面積 : 22.48m² /
築年月 : 新築(2025年03月) /
賃料 : 5.48万円 /
管理費又は共益費等 : 1.8万円 /
礼金等 : 無料 /
敷金 : 無料、保証金等 : -、 償却、敷引 : - /
住宅総合保険等の損害保険料 : 2万円2年 /
その他 : ■短期解約違約金:1年未満2カ月 ■解約予告:2カ月前 ■プレミアデスク代の中に登録料4 400円(税込)を含みます。
合計7.15万円(内訳:プレミアデスク(2年/税込)1.65万円 契約時ルームクリーニング費用(税込)5.5万円 鍵交換代0万円)
更新料 新賃料1.00ヶ月分
事務所利用不可
保証会社利用必 会社2:オリコフォレントインシュア
/ 駐車場 : 無
お部屋さがしはいい部屋ネットの大東建託で!
スタッフ一同、お客様のご来店をこころよりお待ちしております! |
||
| 所属団体 |
(公財)日本賃貸住宅管理協会会員 (公社)首都圏不動産公正取引協議会加盟 |
||

