静岡県藤枝市志太5丁目の賃貸アパート
情報公開日:2026/01/28(残り15日)
次回更新日は情報公開日より15日以内
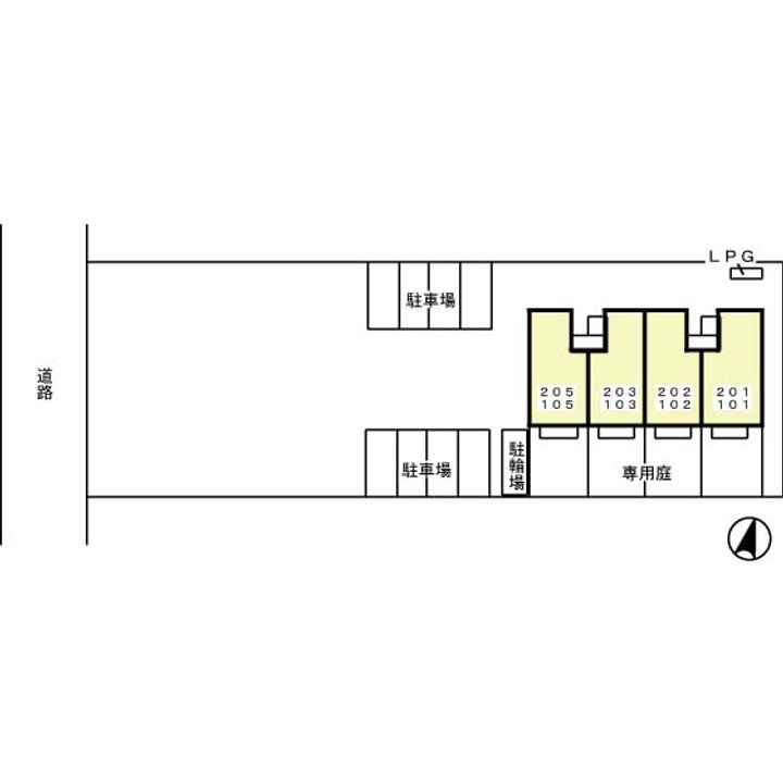
物件画像
画像提供元:株式会社SPRING/ピタットハウス藤枝店
この物件のタグ
静岡県藤枝市志太5丁目の賃貸アパートの物件情報
| 賃料/管理費等 |
6.0万円(管理費等 6,000円)
|
||
|---|---|---|---|
| 敷金 | 無料 | 礼金 | 5.0万円 |
| 種別/構造 | アパート/軽量鉄骨 | 築年月 | 2004年10月 |
| 所在地 |
静岡県藤枝市志太5丁目
|
||
| 主要交通機関 |
東海道本線/藤枝 徒歩19分 東海道本線/西焼津 徒歩44分 東海道本線/六合 徒歩70分 |
||
| 間取り | 1R | 面積 | 37.09m² |
| 間取り詳細 | 洋室 13.5帖 | 方位 | - |
| 階数/部屋番号 | 1階/地上2階建 | 駐車場 | 空有 1台付(無料) |
| 特徴 |
|
||
| 設備/条件 | エアコン、バス・トイレ別、独立洗面台、温水洗浄便座、即入居可、CATV、インターネット対応、1階の物件、フローリング、室内洗濯機置場、専用庭、駐車場あり、駐輪場あり、プロパンガス、TVドアホン、防犯カメラ、ウォークインクローゼット、床下収納 | ||
| 備考 |
TVインターフォン付きの、セキュリティに配慮したアパートです。入浴後でも湿気に悩まされずに化粧やヘアメイクができる独立洗面台が付いております。収納はウォークインクロゼット・シューズボックスなどが備え付けられているので、衣類や日用品の収納に重宝します。駐車場が空いているので、車をお持ちの方も安心です。快適な暮らしを送るためのエアコンが設置されているアパートとなっています。広さも37.09㎡ありゆったりとした空間があります。コチラの物件は令和7年9月に入居可能予定の嬉しい物件になっています。毎日スマートフォンで長時間SNSを利用するという方、インターネット無料なのでデータ通信量を気にすることなくインターネットをお使いいただけます。こちらの物件はアパートです。防犯カメラが付いていますので、安心した生活を送れます。 ICロック電池(初回):2,750円 更新料:1ヶ月 保証会社:利用必須 機関保証加入必須。初回保証料35000円、月額保証料賃料等総額の1%+800円/月(商品あり) LPガス料金はご契約前にLPガス事業者にご確認いただけます。 管理会社指定の機関保証加入が必要です。65歳以上の方の契約は定期借家契約(2年再契約型)となり、機関保証加入が必要です(初回保証料:月額賃料等合計額×100%,更新:2万円/1年) ※物件に関する備考は各社異なりますのでご確認のうえお問い合わせください。 |
||
| 契約期間 | 2年 | ||
|---|---|---|---|
| 入居可能時期 |
即時
|
||
| 初期費用 |
お問い合わせください。
|
||
| 住宅保険 | お問い合わせください。 | 現状空室状況 | 空家 |
情報提供元:株式会社SPRING/ピタットハウス藤枝店
画像提供元:株式会社SPRING/ピタットハウス藤枝店
※各種情報と現状に差異がある場合は、現状優先となります。取り扱い不動産会社が複数ある場合は、住宅保険等、一部条件が異なる場合もございますので、取扱店舗までご確認下さいませ。
この物件にお問い合わせ
周辺施設
| コンビニ |
セブン‐イレブン 藤枝青木2丁目店 (270m) ミニストップ 藤枝駅北店 (408m) |
|||
|---|---|---|---|---|
| スーパー |
バロー藤枝店 (347m) KOマート藤枝志太店 (793m) |
|||
| ドラッグストア |
青木2丁目薬局 (363m) メディオ薬局 小石川町店 (492m) |
|||
| 保育園 |
すばる保育園 (388m) |
|||
|---|---|---|---|---|
| 幼稚園 |
藤枝西幼稚園 (1279m) |
|||
| 小学校 |
藤枝市立青島東小学校 (81m) |
|||
| 中学校 |
藤枝市立青島北中学校 (1066m) |
|||
※周辺情報は不動産会社から提供された情報ではなく、弊サービスで独自に収集した情報です。
担当者のオススメポイント!
収納も可能な洗面化粧台が備え付けられています。収納はシューズボックス・ウォークインクロゼットなどが備え付けられているので、衣類や日用品の収納に重宝します。玄関先まで覗き穴を覗きに行かなくてもインターホン越しに誰が来たのかを確認できるので防犯対策につながります。専有面積37.09㎡の物件で広々してます。令和7年9月の入居予定が可能なお部屋になっております。フローリング張りの物件です。エアコン付き物件なので、湿度を下げることができます。多くの方にご好評をいただいている、清潔感のある賃貸物件です。駐輪場付きの物件です。機能性が高く広々お使い頂けるワンルームです。
静岡県藤枝市志太5丁目の賃貸アパートの取扱会社情報 3件
| 取扱会社(1) | 株式会社SPRING ピタットハウス藤枝店 | ||
|---|---|---|---|
| 住所 | 静岡県藤枝市青木1丁目2-24 | ||
| 電話番号 | 054-668-9860 | 免許番号 | 静岡県知事免許(1)第14680号 |
| 取引態様 | 一般 | 物件管理番号 |
432320000370083 ※お問い合わせの際には、担当者へ物件管理番号をお伝えください。 |
| 物件に関する情報 |
物件の所在地 : 静岡県藤枝市志太5丁目 /
交通の利便 : 東海道本線/藤枝 徒歩19分、東海道本線/西焼津 徒歩44分、東海道本線/六合 徒歩70分 /
面積 : 37.09m² /
築年月 : 2004年10月 /
賃料 : 6.0万円 /
管理費又は共益費等 : 6,000円 /
礼金等 : 5.0万円 /
敷金 : 無料、保証金等 : -、 償却、敷引 : - /
住宅総合保険等の損害保険料 : - /
その他 : TVインターフォン付きの、セキュリティに配慮したアパートです。入浴後でも湿気に悩まされずに化粧やヘアメイクができる独立洗面台が付いております。収納はウォークインクロゼット・シューズボックスなどが備え付けられているので、衣類や日用品の収納に重宝します。駐車場が空いているので、車をお持ちの方も安心です。快適な暮らしを送るためのエアコンが設置されているアパートとなっています。広さも37.09㎡ありゆったりとした空間があります。コチラの物件は令和7年9月に入居可能予定の嬉しい物件になっています。毎日スマートフォンで長時間SNSを利用するという方、インターネット無料なのでデータ通信量を気にすることなくインターネットをお使いいただけます。こちらの物件はアパートです。防犯カメラが付いていますので、安心した生活を送れます。
ICロック電池(初回):2,750円
更新料:1ヶ月
保証会社:利用必須 機関保証加入必須。初回保証料35000円、月額保証料賃料等総額の1%+800円/月(商品あり) LPガス料金はご契約前にLPガス事業者にご確認いただけます。 管理会社指定の機関保証加入が必要です。65歳以上の方の契約は定期借家契約(2年再契約型)となり、機関保証加入が必要です(初回保証料:月額賃料等合計額×100%,更新:2万円/1年)
/ 駐車場 : 空有
1台付(無料)
収納も可能な洗面化粧台が備え付けられています。収納はシューズボックス・ウォークインクロゼットなどが備え付けられているので、衣類や日用品の収納に重宝します。玄関先まで覗き穴を覗きに行かなくてもインターホン越しに誰が来たのかを確認できるので防犯対策につながります。専有面積37.09㎡の物件で広々してます。令和7年9月の入居予定が可能なお部屋になっております。フローリング張りの物件です。エアコン付き物件なので、湿度を下げることができます。多くの方にご好評をいただいている、清潔感のある賃貸物件です。駐輪場付きの物件です。機能性が高く広々お使い頂けるワンルームです。
|
||
| 所属団体 |
(公社)全日本不動産協会静岡県本部 (公社)全日本不動産協会 東海不動産公正取引協議会 (公社)不動産保証協会 |
||
| 取扱会社(2) | ハウスコム静岡株式会社 藤枝店 | ||
|---|---|---|---|
| 住所 | 静岡県藤枝市青木1丁目2-18 タチバナビル 1階 | ||
| 電話番号 | 0800-170-2240 | 免許番号 | 静岡県知事免許(1)第14629号 |
| 取引態様 | 仲介 | 物件管理番号 |
HC5-2618529-105-0112 ※お問い合わせの際には、担当者へ物件管理番号をお伝えください。 |
| 物件に関する情報 |
物件の所在地 : 静岡県藤枝市志太5丁目 /
交通の利便 : 東海道本線/藤枝 徒歩18分 /
面積 : 37.09m² /
築年月 : 2004年10月 /
賃料 : 6.0万円 /
管理費又は共益費等 : 6,000円 /
礼金等 : 5.0万円 /
敷金 : 無料、保証金等 : -、 償却、敷引 : - /
住宅総合保険等の損害保険料 : 要 /
その他 : その他費用契約金:19,250円
その他費用月額:500円
更新料:60,000円
保証会社:利用必須 イントラスト 機関保証加入必須。初回保証料35000円、月額保証料賃料等総額の1%+800円/月(その他商品あり)
/ 駐車場 : 空有
1台付(無料)
知らない人が来た時でも玄関を開ける必要がなくなるモニター付きインターホンが付いております。
|
||
| 所属団体 |
公益社団法人 首都圏不動産公正取引協議会 - |
||
| 取扱会社(3) | 株式会社山晃住宅 エイブルネットワーク静岡南店 | ||
|---|---|---|---|
| 住所 | 静岡県静岡市駿河区南町 14‐25 エスパティオ1階 | ||
| 電話番号 | 054-202-5556 | 免許番号 | 国土交通大臣免許(5)第6928号 |
| 取引態様 | 一般 | 物件管理番号 |
396000000149850 ※お問い合わせの際には、担当者へ物件管理番号をお伝えください。 |
| 物件に関する情報 |
物件の所在地 : 静岡県藤枝市志太5丁目 /
交通の利便 : 東海道本線/藤枝 徒歩18分、東海道本線/西焼津 徒歩44分、東海道本線/六合 徒歩70分 /
面積 : 37.09m² /
築年月 : 2004年10月 /
賃料 : 6.0万円 /
管理費又は共益費等 : 6,000円 /
礼金等 : 5.0万円 /
敷金 : 無料、保証金等 : -、 償却、敷引 : - /
住宅総合保険等の損害保険料 : - /
その他 : エイブルネットワーク静岡南店は、駿河区を中心に、葵区・清水区又焼津・藤枝市と多数取り扱いをしております。JR静岡駅の【南側】徒歩2分の場所(エスパティオビルの1階)にあり、お客様用駐車場も完備しておりますので、お車でも、電車でもお気軽にお立ち寄りください。静岡南店のスタッフは社歴が長く物件を熟知しているので、きっとあなたのお力になれます!条件交渉はお気軽にスタッフまでお申し付けください!
「ピノーロ」のここがイチオシ。近くにはセブンイレブン 藤枝青木2丁目店(徒歩1分)がありちょっとした買い物に便利です。収納はシューズボックス・ウォークインクロゼットなど豊富なので、衣類や履き物の整理がしやすく便利です。通話ボタンを押せば相手の声が聞けるので、会話したうえで直接会うかを決められるインターホンが付いております。髪のセットが手早くできる洗面化粧台が設置されております。使って嬉しいCATV対応の物件は、コチラとなっています。パソコンを快適に使いたい方に、光回線を繋いでいる物件です。家賃を10万円以下に抑えることができます。敷地内の駐車場に空きがあるので、是非ご利用ください。快適な生活をお約束する角部屋で涼しく快適に生活しましょう。
ルームクリーニング料金:49,500円
D-roomCardキー料金:16,500円
更新料:1ヶ月
保証会社:利用必須 初回保証料35000円、月額保証料月額賃料等総額の1%+800円月額請求に該当する電気料・ガス料・町費、更新料等も含まれます。 ※口座振替手数料90円+税
/ 駐車場 : 空有
空き台数 1台
広々13.5帖の広さが魅力のワンルームです♪1階角部屋。JR藤枝駅まで徒歩18分。スーパーまで564m、コンビニまで22m、ファミレスへ419mと一人暮らしには嬉しい生活便利な立地です。大容量のウォークインクローゼット付き。13.5帖の洋室をご覧ください。南向き日当たり良好。TVインターホン・防犯カメラ付きでセキュリティ面は安心。エアコン1台付き。新生活はこのお部屋で。お問合せお待ちしております。
|
||
| 所属団体 |
(公社)全国宅地建物取引業協会 (公社)静岡県宅地建物取引業協会 東海不動産公正取引協議会 (公社)全国宅地建物取引業保証協会 |
||

