
メインステージ両国駅前
空室情報
| 間取り画像 | 階 部屋番号 | 賃料 管理費 | 敷金 礼金 | 間取 面積 | 方位 | |
|---|---|---|---|---|---|---|
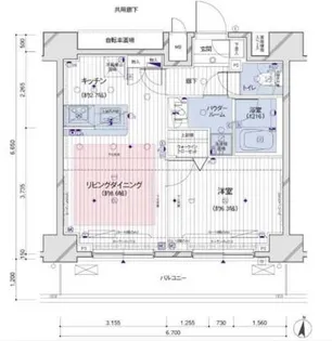
新着 ![]() | 8階 ー | 18.0万円 2.0万円 | 無料 無料 | 1LDK 41.2m² | 南 | |
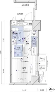
![]() | 7階 ー | 11.2万円 1.5万円 | 無料 11.2万円 | 1K 22.63m² | 北 |
過去掲載物件情報
| 階 | 賃料 管理費 | 敷金 礼金 | 間取 面積 |
|---|---|---|---|
| 8階 | 18.0万円 2.0万円 | 無料 18.0万円 | 1LDK 41.2m² |
| 7階 | 11.2万円 1.5万円 | 無料 11.2万円 | 1K 22.63m² |
| 5階 | 9.0万円 1.5万円 | 無料 9.0万円 | 1K 22.15m² |
建物情報
| 住所 | 東京都墨田区緑1丁目周辺物件を探す | 最寄り駅/列車種別 | |
|---|---|---|---|
| 階建 | 地上12階建 | 築年月 | 2011年07月 |
| 種別 | マンション | 構造 | 鉄筋コンクリート |
周辺環境
周辺地図
周辺施設
共創未来両国薬局 (161m)
両国薬局 東口店 (235m)
マルエツプチ両国緑一丁目店 (112m)
有限会社八百賢 (311m)
セブン‐イレブン 墨田両国4丁目店 (82m)
ファミリーマート 亀沢一丁目店 (93m)
墨田区立 緑幼稚園 (378m)
ちゃのま保育園 両国駅前園 (105m)
墨田区立 両国小学校 (290m)
日本大学第一中学校 (275m)
※周辺情報は不動産会社から提供された情報ではなく、弊サービスで独自に収集した情報です。
※2024年10月時点のデータを元にしているため、最新および正確でない可能性があります。







