岡山県倉敷市児島田の口1丁目の賃貸アパート
情報公開日:2025/12/11(残り15日)
次回更新日は情報公開日より15日以内
物件画像
画像提供元:株式会社アークス/エイブルネットワーク倉敷市役所前店
この物件のタグ
この物件にお問い合わせ
岡山県倉敷市児島田の口1丁目の賃貸アパートの物件情報
| 賃料/管理費等 |
4.7万円(管理費等 4,500円)
|
||
|---|---|---|---|
| 敷金 | 無料 | 礼金 | 4.7万円 |
| 種別/構造 | アパート/木造 | 築年月 | 2005年10月 |
| 所在地 |
岡山県倉敷市児島田の口1丁目4−42
|
||
| 主要交通機関 |
本四備讃線/上の町 徒歩36分 本四備讃線/児島 バス18分 西明石バス停から徒歩5分 |
||
| 間取り | 1K | 面積 | 23.18m² |
| 間取り詳細 | - | 方位 | - |
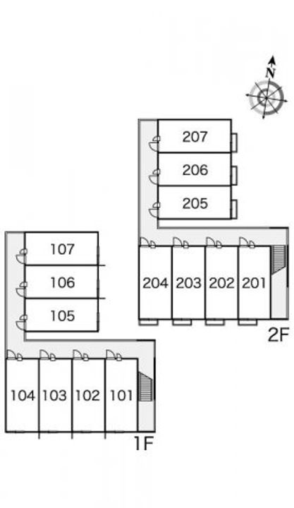
| 階数/部屋番号 | 2階/地上2階建 206号室 | 駐車場 | 空有 5,500円 敷地内 空き台数 2台 |
| 特徴 |
|
||
| 設備/条件 | エアコン、バス・トイレ別、浴室乾燥機、温水洗浄便座、IT重説 対応物件、インターネット対応、2階以上の物件、室内洗濯機置場、駐車場あり、駐輪場あり、家具付き、家電付き、TVドアホン、宅配ボックス、防犯カメラ | ||
| 備考 |
鍵がかけられる宅配ボックスは、外に置く置き配よりも安全に荷物の受け取りを行うことができます。浴室乾燥機が付いているので、浴室乾燥機をつけて湿気を除去すればカビの発生を予防できます。犯罪を抑制する効果がある防犯カメラ付きのアパートです。 更新料:16,500円 保証会社:利用必須 保証会社の利用 利用料の100%〜120% |
||
| 契約期間 | お問い合わせください。 | ||
|---|---|---|---|
| 入居可能時期 |
期日指定(2025年12月下旬)
|
||
| 初期費用 |
お問い合わせください。
|
||
| 住宅保険 | 26,680円(2年) | 現状空室状況 | 居住中 |
情報提供元:株式会社アークス/エイブルネットワーク倉敷市役所前店
画像提供元:株式会社アークス/エイブルネットワーク倉敷市役所前店
※各種情報と現状に差異がある場合は、現状優先となります。取り扱い不動産会社が複数ある場合は、住宅保険等、一部条件が異なる場合もございますので、取扱店舗までご確認下さいませ。
この物件にお問い合わせ
周辺施設
| コンビニ |
セブン-イレブン 倉敷児島下の町9丁目店 (550m) ファミリーマート 児島下の町店 (1279m) |
|||
|---|---|---|---|---|
| スーパー |
ディオマート児島店 (983m) ハローズ児島店 (1344m) |
|||
| ドラッグストア |
児島ひかり薬局 (126m) 株式会社ザグザグ 琴浦店 (1058m) |
|||
| 保育園 |
琴浦中保育園 (590m) |
|||
|---|---|---|---|---|
| 幼稚園 |
倉敷市立 琴浦東幼稚園 (903m) |
|||
| 小学校 |
倉敷市立琴浦東小学校 (966m) |
|||
| 中学校 |
倉敷市立琴浦中学校 (425m) |
|||
※周辺情報は不動産会社から提供された情報ではなく、弊サービスで独自に収集した情報です。
岡山県倉敷市児島田の口1丁目の賃貸アパートの取扱会社情報 1件
| 取扱会社(1) | 株式会社アークス エイブルネットワーク倉敷市役所前店 | ||
|---|---|---|---|
| 住所 | 岡山県倉敷市白楽町383-3 | ||
| 電話番号 | 086-423-7230 | 免許番号 | 国土交通大臣免許(1)第9898号 |
| 取引態様 | 仲介 | 物件管理番号 |
531650000626703 ※お問い合わせの際には、担当者へ物件管理番号をお伝えください。 |
| 物件に関する情報 |
物件の所在地 : 岡山県倉敷市児島田の口1丁目 /
交通の利便 : 本四備讃線/上の町 徒歩36分、本四備讃線/児島 バス18分 西明石バス停から徒歩5分 /
面積 : 23.18m² /
築年月 : 2005年10月 /
賃料 : 4.7万円 /
管理費又は共益費等 : 4,500円 /
礼金等 : 1ヶ月 /
敷金 : 無料、保証金等 : -、 償却、敷引 : - /
住宅総合保険等の損害保険料 : 26,680円(2年) /
その他 : 鍵がかけられる宅配ボックスは、外に置く置き配よりも安全に荷物の受け取りを行うことができます。浴室乾燥機が付いているので、浴室乾燥機をつけて湿気を除去すればカビの発生を予防できます。犯罪を抑制する効果がある防犯カメラ付きのアパートです。
更新料:16,500円
保証会社:利用必須 保証会社の利用 利用料の100%〜120%
/ 駐車場 : 空有
5,500円
敷地内
空き台数 2台
|
||
| 所属団体 |
(公社)全日本不動産協会 (一社)岡山不動産協会 中国地区不動産公正取引協議会 (公社)不動産保証協会 |
||

