クレヴィア市川行徳[11階]
情報公開日:2025/10/23(残り15日)
次回更新日は情報公開日より15日以内
物件画像
画像提供元:(株)リアルサポート
この物件のタグ
この物件にお問い合わせ
クレヴィア市川行徳[11階]の物件情報
| 賃料/管理費等 |
21.0万円(管理費等 1.0万円)
|
||
|---|---|---|---|
| 敷金 | 21.0万円 | 礼金 | 21.0万円 |
| 種別/構造 | マンション/RC | 築年月 | 2013年08月 |
| 所在地 |
千葉県市川市行徳駅前2
|
||
| 主要交通機関 |
東京メトロ東西線/行徳駅 歩2分 東京メトロ東西線/妙典駅 歩23分 東京メトロ東西線/南行徳駅 歩21分 |
||
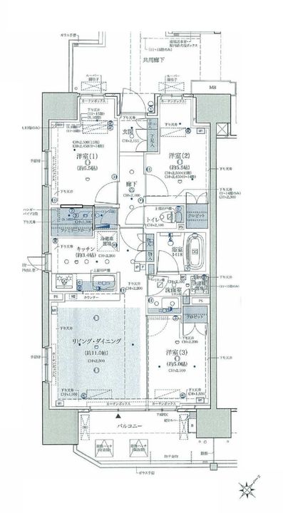
| 間取り | 3LDK | 面積 | 68.59m² |
| 間取り詳細 | 洋6.5 洋5.5 洋5 LD11K3.4 | 方位 | 南東 |
| 階数/部屋番号 | 11階/地上15階建 | 駐車場 | 有(敷地内) 敷地内20000円/平置駐 |
| 特徴 |
|
||
| 設備/条件 | バストイレ別、バルコニー、エアコン、クロゼット、フローリング、シャワー付洗面台、TVインターホン、浴室乾燥機、オートロック、室内洗濯置、陽当り良好、シューズボックス、システムキッチン、追焚機能浴室、角住戸、温水洗浄便座、エレベーター、洗面所独立、駐輪場、宅配ボックス、CATV、光ファイバー、2面採光、3口以上コンロ、対面式キッチン、防犯カメラ、全居室収納、分譲賃貸、オートバス、グリル付、ウォークインクロゼット、敷金1ヶ月、バイク置場、全居室フローリング、仲手0.55ヶ月、ネット使用料不要、浄水器、床暖房、食器洗乾燥機、眺望良好、ダブルロックキー、24時間換気システム、南面リビング、カーテン付、駅前、駅徒歩5分以内、24時間ゴミ出し可、敷地内ごみ置き場、平面駐車場、東南向き、日勤管理、セキュリティ会社加入済、LDK12畳以上、都市ガス、三面鏡付洗面化粧台、縦型照明付洗面化粧台、礼金1ヶ月、IT重説 対応物件、全室照明付、通風良好 | ||
| 備考 |
ポニー行徳商業ビルまで173m/マルエツ行徳駅前店まで317m/通勤管理/★分譲賃貸マンション・普通賃貸・国内家主★東京メトロ東西線「行徳」駅徒歩2分!★11階3LDK68平米角部屋・南東向き!日当・眺望良好!★無償貸与:照明、カーテン、床暖房、食器棚、バルコニータイル★設備:エアコン1基(LD)、システムキッチン3口ガスグリル付、浄水器、食洗器、追焚、浴乾、3面鏡シャンドレ、シャワートイレ等★指定インターネット無料(つなぐ)★電気:一括受電★駐車場:要確認★駐輪場:空き 合計1.98万円(内訳:安心入居サポートS/2年間) 普通借家 2年 保証会社利用必 (株)Casa 初回保証料:総賃料等の50%、更新料:1年毎に1万円、家賃口座引落決済手数料550円税込(大手法人相談可) |
||
| 契約期間 | お問い合わせください。 | ||
|---|---|---|---|
| 入居可能時期 |
''25年10月下旬
|
||
| 初期費用 |
お問い合わせください。
|
||
| 住宅保険 | 2.05万円2年 | 現状空室状況 | お問い合わせください。 |
情報提供元:(株)リアルサポート
画像提供元:(株)リアルサポート
※各種情報と現状に差異がある場合は、現状優先となります。取り扱い不動産会社が複数ある場合は、住宅保険等、一部条件が異なる場合もございますので、取扱店舗までご確認下さいませ。
この物件にお問い合わせ
周辺施設
| コンビニ |
セブンイレブン行徳駅前2丁目店 セブン‐イレブン 市川行徳駅西店 |
|||
|---|---|---|---|---|
| スーパー |
マルエツ行徳駅前店 マルエツ行徳店 |
|||
| ドラッグストア |
プラザアオノ薬局 マツモトキヨシ 行徳駅前店 |
|||
| 保育園 |
ひなた保育園 行徳駅前ルーム |
|||
|---|---|---|---|---|
| 幼稚園 |
市川市立新浜幼稚園 |
|||
| 小学校 |
市川市立新浜小学校 |
|||
| 中学校 |
市川市立第七中学校 |
|||
※周辺情報は不動産会社から提供された情報ではなく、弊サービスで独自に収集した情報です。
担当者のオススメポイント!
★駅前分譲賃貸マン・普通賃貸★手数料半額キャンペーン中!!
★10月下旬入居可★東京メトロ東西線「行徳」駅徒歩2分!駅前分譲マンション・国内家主★11階3LDK68平米角部屋・南東向き!日当・眺望良好!★無償貸与:照明、カーテン、床暖房、食器棚、バルコニータイル
クレヴィア市川行徳[11階]の取扱会社情報 1件
| 取扱会社(1) | (株)リアルサポート (情報提供媒体:SUUMO) | ||
|---|---|---|---|
| 住所 | 東京都中央区日本橋大伝馬町 1-4 野村不動産日本橋大伝馬町ビル4階 | ||
| 電話番号 | 03-6264-9606 | 免許番号 | 東京都知事(4)第80552号 |
| 取引態様 | 仲介 | 物件管理番号 |
100464296528 ※お問い合わせの際には、担当者へ物件管理番号をお伝えください。 |
| 物件に関する情報 |
物件の所在地 : 千葉県市川市行徳駅前2 /
交通の利便 : 東京メトロ東西線/行徳駅 歩2分、東京メトロ東西線/妙典駅 歩23分、東京メトロ東西線/南行徳駅 歩21分 /
面積 : 68.59m² /
築年月 : 2013年08月 /
賃料 : 21.0万円 /
管理費又は共益費等 : 1.0万円 /
礼金等 : 1ヶ月 /
敷金 : 1ヶ月、保証金等 : -、 償却、敷引 : - /
住宅総合保険等の損害保険料 : 2.05万円2年 /
その他 : ポニー行徳商業ビルまで173m/マルエツ行徳駅前店まで317m/通勤管理/★分譲賃貸マンション・普通賃貸・国内家主★東京メトロ東西線「行徳」駅徒歩2分!★11階3LDK68平米角部屋・南東向き!日当・眺望良好!★無償貸与:照明、カーテン、床暖房、食器棚、バルコニータイル★設備:エアコン1基(LD)、システムキッチン3口ガスグリル付、浄水器、食洗器、追焚、浴乾、3面鏡シャンドレ、シャワートイレ等★指定インターネット無料(つなぐ)★電気:一括受電★駐車場:要確認★駐輪場:空き
合計1.98万円(内訳:安心入居サポートS/2年間)
普通借家 2年
保証会社利用必 (株)Casa 初回保証料:総賃料等の50%、更新料:1年毎に1万円、家賃口座引落決済手数料550円税込(大手法人相談可)
/ 駐車場 : 有(敷地内)
敷地内20000円/平置駐
★駅前分譲賃貸マン・普通賃貸★手数料半額キャンペーン中!!
★10月下旬入居可★東京メトロ東西線「行徳」駅徒歩2分!駅前分譲マンション・国内家主★11階3LDK68平米角部屋・南東向き!日当・眺望良好!★無償貸与:照明、カーテン、床暖房、食器棚、バルコニータイル |
||
| 所属団体 |
(公社)全日本不動産協会東京都本部会員 (公社)首都圏不動産公正取引協議会加盟 |
||

