SQUARE CITY TSURUMIICHIBA(スクエアシティ鶴見[4階]
情報公開日:2025/11/01(残り15日)
次回更新日は2025/11/15
物件画像
画像提供元:シャーメゾンショップ (株)石川商事川崎西口店
この物件のタグ
この物件にお問い合わせ
SQUARE CITY TSURUMIICHIBA(スクエアシティ鶴見[4階]の物件情報
| 賃料/管理費等 |
8.3万円(管理費等 1.5万円)
|
||
|---|---|---|---|
| 敷金 | 無料 | 礼金 | 8.3万円 |
| 種別/構造 | マンション/RC | 築年月 | 新築(2025年08月) |
| 所在地 |
神奈川県横浜市鶴見区市場下町
|
||
| 主要交通機関 |
京急本線/鶴見市場駅 歩5分 JR鶴見線/鶴見駅 歩14分 JR京浜東北線/鶴見駅 歩14分 |
||
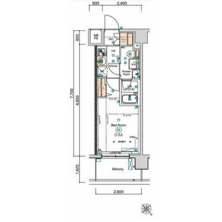
| 間取り | 1K | 面積 | 21.56m² |
| 間取り詳細 | 洋7.2 | 方位 | 北東 |
| 階数/部屋番号 | 4階/地上5階建 | 駐車場 | 無 |
| 特徴 |
|
||
| 設備/条件 | バストイレ別、バルコニー、エアコン、ガスコンロ対応、クロゼット、フローリング、シャワー付洗面台、TVインターホン、浴室乾燥機、オートロック、室内洗濯置、シューズボックス、温水洗浄便座、エレベーター、洗面所独立、2口コンロ、駐輪場、宅配ボックス、即入居可、敷金不要、ペット相談、全居室洋室、保証人不要、CS、ネット使用料不要、築2年以内、2駅利用可、3沿線以上利用可、駅徒歩5分以内、敷地内ごみ置き場、セキュリティ会社加入済、BS | ||
| 備考 |
契約事務手数料11,000円、抗菌消臭16,500円、24時間緊急サポート24:16,500円小型犬・猫1匹まで飼育可※飼育時敷金1ヶ月積増し・更新事務手数料:新賃料の0.55か月分短期解約違約金有(1年未満)総賃料1ヶ月分相当額。ルームクリーニング費用30平米未満44,000円、30平米以上55,000円、エアコンクリーニング費用13,200円、お掃除機能付き25,300円 合計3.3万円(内訳:抗菌消臭代:16500円/緊急サポート24:16500円) ペット相談 保証会社利用必 セゾン家賃保証:初回保証料家賃総額の50%、年間保証料10,000円 |
||
| 契約期間 | お問い合わせください。 | ||
|---|---|---|---|
| 入居可能時期 |
即入居可
|
||
| 初期費用 |
お問い合わせください。
|
||
| 住宅保険 | 1.9万円2年 | 現状空室状況 | お問い合わせください。 |
情報提供元:シャーメゾンショップ (株)石川商事川崎西口店
画像提供元:シャーメゾンショップ (株)石川商事川崎西口店
※各種情報と現状に差異がある場合は、現状優先となります。取り扱い不動産会社が複数ある場合は、住宅保険等、一部条件が異なる場合もございますので、取扱店舗までご確認下さいませ。
この物件にお問い合わせ
周辺施設
| コンビニ |
セブン‐イレブン 横浜鶴見市場中前店 有限会社高見商店 |
|||
|---|---|---|---|---|
| スーパー |
フォルテ 森永橋店 クリシマ |
|||
| ドラッグストア |
あすなろ薬局 田辺薬局市場西中店 |
|||
| 保育園 |
わくわくの森保育園 |
|||
|---|---|---|---|---|
| 幼稚園 |
鶴見平和幼稚園 |
|||
| 小学校 |
横浜市立 市場小学校・けやき分校 |
|||
| 中学校 |
横浜市立市場中学校 |
|||
※周辺情報は不動産会社から提供された情報ではなく、弊サービスで独自に収集した情報です。
担当者のオススメポイント!
★ペット可・インターネット無料物件★
SQUARE CITY TSURUMIICHIBA(スクエアシティ鶴見[4階]の取扱会社情報 1件
| 取扱会社(1) | シャーメゾンショップ (株)石川商事川崎西口店 (情報提供媒体:SUUMO) | ||
|---|---|---|---|
| 住所 | 神奈川県川崎市幸区中幸町4-11-2 ヒルスミキ川崎1階 | ||
| 電話番号 | 044-276-2504 | 免許番号 | 神奈川県知事(10)第13823号 |
| 取引態様 | 仲介 | 物件管理番号 |
100454679913 ※お問い合わせの際には、担当者へ物件管理番号をお伝えください。 |
| 物件に関する情報 |
物件の所在地 : 神奈川県横浜市鶴見区市場下町 /
交通の利便 : 京急本線/鶴見市場駅 歩5分、JR鶴見線/鶴見駅 歩14分、JR京浜東北線/鶴見駅 歩14分 /
面積 : 21.56m² /
築年月 : 新築(2025年08月) /
賃料 : 8.3万円 /
管理費又は共益費等 : 1.5万円 /
礼金等 : 1ヶ月 /
敷金 : 無料、保証金等 : -、 償却、敷引 : - /
住宅総合保険等の損害保険料 : 1.9万円2年 /
その他 : 契約事務手数料11,000円、抗菌消臭16,500円、24時間緊急サポート24:16,500円小型犬・猫1匹まで飼育可※飼育時敷金1ヶ月積増し・更新事務手数料:新賃料の0.55か月分短期解約違約金有(1年未満)総賃料1ヶ月分相当額。ルームクリーニング費用30平米未満44,000円、30平米以上55,000円、エアコンクリーニング費用13,200円、お掃除機能付き25,300円
合計3.3万円(内訳:抗菌消臭代:16500円/緊急サポート24:16500円)
ペット相談
保証会社利用必 セゾン家賃保証:初回保証料家賃総額の50%、年間保証料10,000円
/ 駐車場 : 無
★ペット可・インターネット無料物件★
|
||
| 所属団体 |
(公社)神奈川県宅地建物取引業協会会員 (公社)首都圏不動産公正取引協議会加盟 |
||

