メゾンブラット[201号室]
情報公開日:2026/05/05(残り15日)
次回更新日は情報公開日より15日以内
物件画像
画像提供元:(株)共豊エポック
この物件のタグ
メゾンブラット[201号室]の物件情報
| 賃料/管理費等 |
3.4万円(管理費等 1,000円)
|
||
|---|---|---|---|
| 敷金 | 3.4万円 | 礼金 | 3.4万円 |
| 種別/構造 | アパート/鉄骨造 | 築年月 | 1978年04月 |
| 所在地 |
愛知県豊橋市町畑町字町畑
|
||
| 主要交通機関 | 豊橋鉄道渥美線/愛知大学前 徒歩8分 | ||
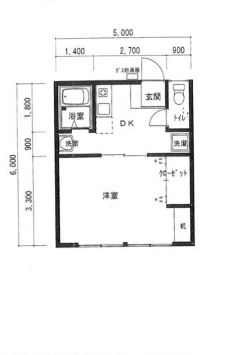
| 間取り | 1DK | 面積 | 34.78m² |
| 間取り詳細 | - | 方位 | - |
| 階数/部屋番号 | 2階/地上2階建 201号室 | 駐車場 | 無 |
| 特徴 |
|
||
| 設備/条件 | B・T別、エアコン、駐輪場、シャワー付洗面化粧台、フローリング、クローゼット、照明器具、電気コンロ | ||
| 備考 |
愛知大学向き 仲介手数料:1ヶ月 駐輪場: 有(無料) ※物件に関する備考は各社異なりますのでご確認のうえお問い合わせください。 |
||
| 契約期間 | 2年 | ||
|---|---|---|---|
| 入居可能時期 |
お問い合わせください。
|
||
| 初期費用 |
お問い合わせください。
|
||
| 住宅保険 | 要 | 現状空室状況 | 空家 |
情報提供元:(株)共豊エポック
画像提供元:(株)共豊エポック
※各種情報と現状に差異がある場合は、現状優先となります。取り扱い不動産会社が複数ある場合は、住宅保険等、一部条件が異なる場合もございますので、取扱店舗までご確認下さいませ。
この物件にお問い合わせ
周辺施設
| コンビニ |
セブン‐イレブン 豊橋北山町店 (320m) ローソン 豊橋小松店 (428m) |
|||
|---|---|---|---|---|
| スーパー |
フードオアシスあつみ 山田店 (681m) マックスバリュ 豊橋橋良店 (791m) |
|||
| ドラッグストア |
コスモ薬局 (459m) クリエイトエス・ディー 豊橋小松町店 (471m) |
|||
| 保育園 |
福岡保育園 (206m) |
|||
|---|---|---|---|---|
| 幼稚園 |
曙幼稚園 (850m) |
|||
| 小学校 |
豊橋市立栄小学校 (129m) |
|||
| 中学校 |
豊橋市立南部中学校 (254m) |
|||
※周辺情報は不動産会社から提供された情報ではなく、弊サービスで独自に収集した情報です。
電話でお問い合わせご希望の方
ハウスコム東海株式会社 豊橋店
営業時間: 10:00〜18:00 定休日: なし
- ※電話経由でのお問い合せは、お祝い金プレゼントキャンペーンの適用になりませんのでご注意ください。
- ※電話でお問い合わせする場合は、光IP電話、及びIP電話からはご利用になれません。不動産会社の方からの電話番号によるお問合せはお断りしております。
メゾンブラット[201号室]の取扱会社情報 2件
| 取扱会社(1) | (株)共豊エポック (情報提供媒体:at home) | ||
|---|---|---|---|
| 住所 | 愛知県豊橋市東森岡2丁目1-10 | ||
| 電話番号 | 0532-88-2614 | 免許番号 | 愛知県知事免許(9)第14051号 |
| 取引態様 | 媒介 | 物件管理番号 |
6987486237 ※お問い合わせの際には、担当者へ物件管理番号をお伝えください。 |
| 物件に関する情報 |
物件の所在地 : 愛知県豊橋市町畑町字町畑 /
交通の利便 : 豊橋鉄道渥美線/愛知大学前 徒歩8分 /
面積 : 34.78m² /
築年月 : 1978年04月 /
賃料 : 3.4万円 /
管理費又は共益費等 : 1,000円 /
礼金等 : 1ヶ月 /
敷金 : 1ヶ月、保証金等 : -、 償却、敷引 : - /
住宅総合保険等の損害保険料 : 要 /
その他 : 愛知大学向き
仲介手数料:1ヶ月
駐輪場: 有(無料)
/ 駐車場 : 無
|
||
| 所属団体 |
(公社)愛知県宅地建物取引業協会 東海不動産公正取引協議会 - |
||
| 取扱会社(2) | ハウスコム東海株式会社 豊橋店 | ||
|---|---|---|---|
| 住所 | 愛知県豊橋市八通町105 | ||
| 電話番号 | 0800-170-2283 | 免許番号 | 国土交通大臣免許(1)第10227号 |
| 取引態様 | 仲介 | 物件管理番号 |
HC4-5112827-201-0094 ※お問い合わせの際には、担当者へ物件管理番号をお伝えください。 |
| 連絡先 | 0037-6008-5132 | ||
| 物件に関する情報 |
物件の所在地 : 愛知県豊橋市町畑町字町畑 /
交通の利便 : 豊橋鉄道渥美線/愛知大学前 徒歩8分 /
面積 : 34.78m² /
築年月 : 1978年04月 /
賃料 : 3.4万円 /
管理費又は共益費等 : 1,000円 /
礼金等 : 1ヶ月 /
敷金 : 1ヶ月、保証金等 : -、 償却、敷引 : - /
住宅総合保険等の損害保険料 : 要 /
その他 : 保証会社:利用必須 JID 審査有 保証料有
/ 駐車場 : 無し
化粧品や洗面道具といった小物をまとめて収納できる独立洗面台があります。こちらの物件はアパートです。
|
||
| 所属団体 |
公益社団法人 首都圏不動産公正取引協議会 - |
||

