
スカイラシクラス小岩
空室情報
| 間取り画像 | 階 部屋番号 | 賃料 管理費 | 敷金 礼金 | 間取 面積 | 方位 | |
|---|---|---|---|---|---|---|
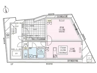
新着 ![]() | 1階 101号室号室 | 19.8万円 9,200円 | 19.8万円 無料 | 1LDK 49.98m² | 東 | |
![]() | 1階 ー | 19.8万円 9,200円 | 19.8万円 無料 | 1LDK 49.98m² | 東 | |
![]() | 2階 ー | 13.2万円 5,000円 | 13.2万円 無料 | 1K 30.34m² | 東 |
過去掲載物件情報
| 階 | 賃料 管理費 | 敷金 礼金 | 間取 面積 |
|---|---|---|---|
| 3階 | 13.4万円 5,000円 | 13.4万円 無料 | 1K 31.79m² |
| 3階 | 13.3万円 5,000円 | 13.3万円 無料 | 1K 30.34m² |
| 2階 | 13.3万円 5,000円 | 13.3万円 無料 | 1K 31.79m² |
建物情報
| 住所 | 東京都江戸川区南小岩8丁目周辺物件を探す | 最寄り駅/列車種別 | |
|---|---|---|---|
| 階建 | 地上5階建 | 築年月 | 2024年06月 |
| 種別 | マンション | 構造 | RC |
周辺環境
周辺地図
周辺施設
フロンティア薬局小岩店 (117m)
ヱビス薬局 (118m)
業務スーパー 小岩店 (311m)
株式会社ヤマイチ 東小岩店 (337m)
セブン‐イレブン 江戸川東小岩6丁目店 (151m)
セブン‐イレブン 江戸川南小岩8丁目店 (167m)
白百合幼稚園 (74m)
太陽の子 東小岩保育園 (330m)
江戸川区立東小岩小学校 (430m)
江戸川区立 小岩第一中学校 (568m)
愛国学園短期大学 江戸川区のキャンパス (980m)
※周辺情報は不動産会社から提供された情報ではなく、弊サービスで独自に収集した情報です。
※2024年10月時点のデータを元にしているため、最新および正確でない可能性があります。








