
入山ビル
空室情報
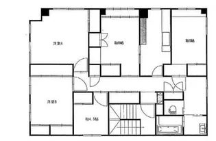
| 間取り画像 | 階 部屋番号 | 賃料 管理費 | 敷金 礼金 | 間取 面積 | 方位 | |
|---|---|---|---|---|---|---|
新着 ![]() | 3階 ー | 10.0万円 ー | 20.0万円 10.0万円 | 5K 130.1m² | ー |
過去掲載物件情報
| 階 | 賃料 管理費 | 敷金 礼金 | 間取 面積 |
|---|---|---|---|
| 3階 | 10.0万円 ー | 20.0万円 10.0万円 | 5K 130.1m² |
| 3階 | 10.0万円 ー | 20.0万円 無料 | 5K 130.1m² |
建物情報
| 住所 | 新潟県新潟市中央区笹口3丁目周辺物件を探す | 最寄り駅/列車種別 | 快速特急755m |
|---|---|---|---|
| 階建 | 地上3階建 | 築年月 | 1991年01月 |
| 種別 | マンション | 構造 | 鉄骨造 |
周辺環境
周辺地図
周辺施設
共創未来 笹口薬局 (92m)
共創未来 わかさ薬局 (213m)
株式会社ウオロク 馬越店 (286m)
イオン 笹口店 (551m)
セブンイレブン 新潟本馬越店 (286m)
ローソン 新潟笹口2丁目店 (357m)
新潟市私立幼稚園・認定こども園協会 (406m)
幼保連携型うまこしこやす認定こども園 (435m)
新潟市立笹口小学校 (115m)
新潟市立東新潟中学校 (1,079m)
事業創造大学院大学 新潟市中央区のキャンパス (859m)
※周辺情報は不動産会社から提供された情報ではなく、弊サービスで独自に収集した情報です。
※2024年10月時点のデータを元にしているため、最新および正確でない可能性があります。






