
ハーモニーテラス梅田II
空室情報
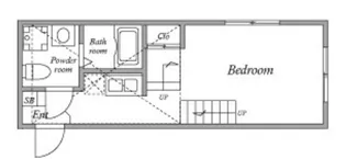
| 間取り画像 | 階 部屋番号 | 賃料 管理費 | 敷金 礼金 | 間取 面積 | 方位 | |
|---|---|---|---|---|---|---|
新着 ![]() | 2階 ー | 6.6万円 4,000円 | 無料 無料 | 1R 19.5m² | ー |
過去掲載物件情報
| 階 | 賃料 管理費 | 敷金 礼金 | 間取 面積 |
|---|---|---|---|
| 1階 | 6.2万円 4,000円 | 無料 無料 | 1K 17.77m² |
| 1階 | 6.2万円 4,000円 | 無料 6.2万円 | ワンルーム 17.86m² |
| 1階 | 6.2万円 4,000円 | 無料 無料 | ワンルーム 17.77m² |
建物情報
| 住所 | 東京都足立区梅田6丁目周辺物件を探す | 最寄り駅/列車種別 | |
|---|---|---|---|
| 階建 | 地上2階建 | 築年月 | 2019年02月 |
| 種別 | アパート | 構造 | 木造 |
周辺環境
周辺地図
周辺施設
プラム薬局 (132m)
ことり薬局 足立梅田店 (235m)
ショッピングタウンカリブ (181m)
マックスバリュ エクスプレス梅島店 (189m)
セブンーイレブン 足立梅田5丁目 (277m)
セブン‐イレブン 梅島駅前店 (324m)
梅島幼稚園 (616m)
さわやか保育園・梅島 (123m)
足立区立 亀田小学校 (703m)
※周辺情報は不動産会社から提供された情報ではなく、弊サービスで独自に収集した情報です。
※2024年10月時点のデータを元にしているため、最新および正確でない可能性があります。





