
MAXIV横浜阪東橋
空室情報
| 間取り画像 | 階 部屋番号 | 賃料 管理費 | 敷金 礼金 | 間取 面積 | 方位 | |
|---|---|---|---|---|---|---|
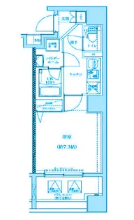
新着 ![]() | 5階 ー | 8.0万円 1.1万円 | 無料 無料 | 1K 25.48m² | 南 | |
新着 ![]() | 6階 ー | 9.0万円 1.0万円 | 無料 無料 | 1K 25.48m² | 南 |
過去掲載物件情報
| 階 | 賃料 管理費 | 敷金 礼金 | 間取 面積 |
|---|---|---|---|
| 4階 | 7.2万円 1.0万円 | 無料 7.2万円 | 1K 25.48m² |
| 9階 | 7.8万円 1.0万円 | 無料 無料 | 1K 25.48m² |
| 3階 | 6.9万円 1.4万円 | 無料 無料 | 1K 25.28m² |
建物情報
| 住所 | 神奈川県横浜市南区真金町1丁目周辺物件を探す | 最寄り駅/列車種別 | |
|---|---|---|---|
| 階建 | 地上11階建 | 築年月 | 2018年09月 |
| 種別 | マンション | 構造 | RC |
周辺環境
周辺地図
周辺施設
高橋薬局 真金町店 (114m)
むつみ薬局 浦舟店 (127m)
サミット横浜曙町店 (454m)
株式会社三徳長者町店 (586m)
ローソン 真金町店 (106m)
セブン‐イレブン よこはまばし店 (258m)
玉泉寺幼稚園 (310m)
みなみマーノ保育園 (344m)
横浜市立南吉田小学校 (280m)
横浜市立平楽中学校 (615m)
※周辺情報は不動産会社から提供された情報ではなく、弊サービスで独自に収集した情報です。
※2024年10月時点のデータを元にしているため、最新および正確でない可能性があります。






