



神奈川県川崎市高津区末長1
東急田園都市線/梶が谷駅 歩5分
東急田園都市線/溝の口駅 歩15分
JR南武線/武蔵溝ノ口駅 歩15分
東急田園都市線/溝の口駅 歩15分
JR南武線/武蔵溝ノ口駅 歩15分
地上2階建 / 1987年03月 / 賃貸アパート
猫1匹飼育可(敷金2ヶ月解約時2ヶ月償却)
ただいま8人が検討中! 人気上昇中!注目の物件です!
| 賃料 / 管理費 | 敷金 / 礼金 | 間取り / 面積 | 階数 部屋番号 | 方位 | 詳細を見る | |
|---|---|---|---|---|---|---|
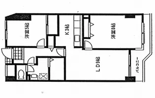
| 7.0万円 / 1,000円 | 14.0万円 / 7.0万円 | 2DK / 38.5m² | 2階 ー | 南 | 詳細を見る |
































