



東京都目黒区青葉台4
京王井の頭線/渋谷駅 歩10分
東急田園都市線/渋谷駅 歩10分
東急東横線/代官山駅 歩16分
東急田園都市線/渋谷駅 歩10分
東急東横線/代官山駅 歩16分
地下1地上14階建 / 2015年10月 / 賃貸マンション
☆★☆人気エリア物件募集開始☆★☆
★弊社では内見から契約までリモートで対応が可能です★また現地物件でのお待ち合わせ現地解散できますのでお待ち合わせのお時間にお待たせすることなくすぐにご案内させていただきます♪
ただいま3人が検討中!
| 賃料 / 管理費 | 敷金 / 礼金 | 間取り / 面積 | 階数 部屋番号 | 方位 | 詳細を見る | |
|---|---|---|---|---|---|---|
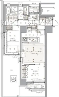
| 14.5万円 / 1.0万円 | 14.5万円 / 無料 | 1R / 25.2m² | 3階 ー | ー | 詳細を見る |




























































