神奈川県横浜市旭区善部町
相模鉄道いずみ野線/南万騎が原 徒歩8分
相模鉄道本線/希望ケ丘 徒歩20分
相模鉄道いずみ野線/緑園都市 徒歩20分
相模鉄道本線/希望ケ丘 徒歩20分
相模鉄道いずみ野線/緑園都市 徒歩20分
地上2階建 / 1993年10月 / 賃貸アパート
★★お問い合わせはタウンハウジング神奈川まで★★
ただいま11人が検討中! 人気上昇中!注目の物件です!
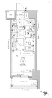
| 賃料 / 管理費 | 敷金 / 礼金 | 間取り / 面積 | 階数 部屋番号 | 方位 | 詳細を見る | |
|---|---|---|---|---|---|---|
| 6.7万円 / ー | 無料 / 無料 | 2DK / 39.2m² | 1階 ー | 南西 | 詳細を見る |
























































