東京都台東区東上野5の賃貸マンション
情報公開日:2025/10/23(残り15日)
次回更新日は情報公開日より15日以内
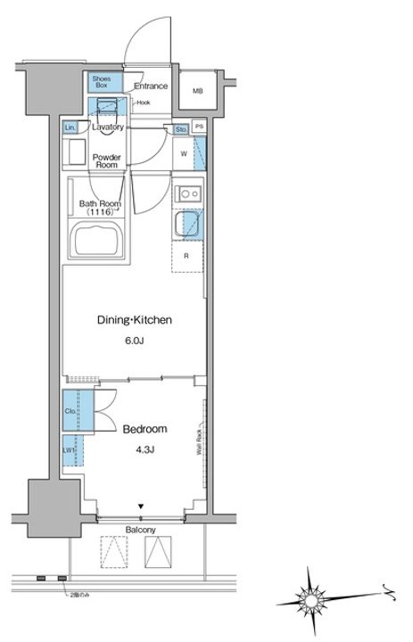
物件画像
画像提供元:ハウスコム東東京(株)日暮里店
東京都台東区東上野5の賃貸マンションの物件情報
| 賃料/管理費等 |
13.5万円(管理費等 1.5万円)
|
||
|---|---|---|---|
| 敷金 | 13.5万円 | 礼金 | 13.5万円 |
| 種別/構造 | マンション/RC | 築年月 | 2023年02月 |
| 所在地 |
東京都台東区東上野5
|
||
| 主要交通機関 |
JR山手線/上野駅 歩5分 東京メトロ銀座線/稲荷町駅 歩4分 都営大江戸線/新御徒町駅 歩10分 |
||
| 間取り | 1DK | 面積 | 25.5m² |
| 間取り詳細 | - | 方位 | 東 |
| 階数/部屋番号 | 5階/地上13階建 | 駐車場 | 無 |
| 特徴 |
|
||
| 設備/条件 | バストイレ別、バルコニー、ガスコンロ対応、フローリング、TVインターホン、浴室乾燥機、オートロック、室内洗濯置、システムキッチン、温水洗浄便座、洗面所独立、2口コンロ、駐輪場、宅配ボックス、CATV、光ファイバー、BS・CS、防犯カメラ、ペット相談、敷金1ヶ月、バイク置場、全居室フローリング、ガスレンジ付、ネット使用料不要、保証金不要、築3年以内、3駅以上利用可、3沿線以上利用可、駅徒歩5分以内、駅徒歩10分以内、都市ガス、天井高シューズクロゼット、CATV使用料不要、礼金1ヶ月 | ||
| 備考 |
合計2.2万円(内訳:鍵発行手数料22000円) 清掃代 ※20平米超+1,375円/平米39600円/エアコン清掃代16,500円/台16500円 ペット相談 普通借家 2年 保証会社利用必 【収納代行】初回保証料賃料共益費等50%(連保無)、30%(連保有)、以後1年毎25% 月々口座振替 ※物件に関する備考は各社異なりますのでご確認のうえお問い合わせください。 |
||
| 契約期間 | お問い合わせください。 | ||
|---|---|---|---|
| 入居可能時期 |
お問い合わせください。
|
||
| 初期費用 |
お問い合わせください。
|
||
| 住宅保険 | 1.8万円2年 | 現状空室状況 | お問い合わせください。 |
情報提供元:ハウスコム東東京(株)日暮里店
画像提供元:ハウスコム東東京(株)日暮里店
※各種情報と現状に差異がある場合は、現状優先となります。取り扱い不動産会社が複数ある場合は、住宅保険等、一部条件が異なる場合もございますので、取扱店舗までご確認下さいませ。
この物件のタグ
この物件にお問い合わせ
周辺施設
| コンビニ |
ファミリーマート 東上野五丁目店 ローソン 東上野五丁目店 |
|||
|---|---|---|---|---|
| スーパー |
マルエツ東上野店 まいばすけっと 北上野2丁目 |
|||
| ドラッグストア |
山一薬品 上野鈴薬局 |
|||
| 保育園 |
東上野乳児保育園 |
|||
|---|---|---|---|---|
| 幼稚園 |
台東区立 清島幼稚園 |
|||
| 小学校 |
台東区立上野小学校 |
|||
| 中学校 |
台東区立駒形中学校 |
|||
※周辺情報は不動産会社から提供された情報ではなく、弊サービスで独自に収集した情報です。
東京都台東区東上野5の賃貸マンションの取扱会社情報 12件
| 取扱会社(1) | ハウスコム東東京(株)日暮里店 (情報提供媒体:SUUMO) | ||
|---|---|---|---|
| 住所 | 東京都荒川区西日暮里2-25-1 ステーションガーデンタワー1階 | ||
| 電話番号 | 0800-1700543 | 免許番号 | 東京都知事(1)第108283号 |
| 取引態様 | 仲介 | 物件管理番号 |
100468492720 ※お問い合わせの際には、担当者へ物件管理番号をお伝えください。 |
| 物件に関する情報 |
物件の所在地 : 東京都台東区東上野5 /
交通の利便 : JR山手線/上野駅 歩5分、東京メトロ銀座線/稲荷町駅 歩4分、都営大江戸線/新御徒町駅 歩10分 /
面積 : 25.5m² /
築年月 : 2023年02月 /
賃料 : 13.5万円 /
管理費又は共益費等 : 1.5万円 /
礼金等 : 1ヶ月 /
敷金 : 1ヶ月、保証金等 : -、 償却、敷引 : - /
住宅総合保険等の損害保険料 : 1.8万円2年 /
その他 : 合計2.2万円(内訳:鍵発行手数料22000円)
清掃代 ※20平米超+1,375円/平米39600円/エアコン清掃代16,500円/台16500円
ペット相談
普通借家 2年
保証会社利用必 【収納代行】初回保証料賃料共益費等50%(連保無)、30%(連保有)、以後1年毎25% 月々口座振替
/ 駐車場 : 無
|
||
| 所属団体 |
(公財)日本賃貸住宅管理協会会員 (公社)首都圏不動産公正取引協議会加盟 |
||
| 取扱会社(2) | リブマックス池袋店(株)リブ・マックス (情報提供媒体:SUUMO) | ||
|---|---|---|---|
| 住所 | 東京都豊島区東池袋1-15-3 アークランドビル5階 | ||
| 電話番号 | 03-5954-7373 | 免許番号 | 国土交通大臣(5)第7032号 |
| 取引態様 | 仲介 | 物件管理番号 |
100468499537 ※お問い合わせの際には、担当者へ物件管理番号をお伝えください。 |
| 物件に関する情報 |
物件の所在地 : 東京都台東区東上野5 /
交通の利便 : JR山手線/上野駅 歩5分、東京メトロ銀座線/稲荷町駅 歩4分、都営大江戸線/新御徒町駅 歩10分 /
面積 : 25.5m² /
築年月 : 2023年02月 /
賃料 : 13.5万円 /
管理費又は共益費等 : 1.5万円 /
礼金等 : 1ヶ月 /
敷金 : 1ヶ月、保証金等 : -、 償却、敷引 : - /
住宅総合保険等の損害保険料 : 1.8万円2年 /
その他 : 合計2.2万円(内訳:鍵発行手数料22000円)
清掃代 ※20平米超+1,375円/平米39600円/エアコン清掃代16,500円/台16500円
ペット相談
普通借家 2年
保証会社利用必 【収納代行】初回保証料賃料共益費等50%(連保無)、30%(連保有)、以後1年毎25% 月々口座振替
/ 駐車場 : 無
|
||
| 所属団体 |
(公社)全日本不動産協会東京都本部会員 (公社)首都圏不動産公正取引協議会加盟 |
||
| 取扱会社(3) | トラスト・レジデンス森下店(株)瑞鳳 (情報提供媒体:SUUMO) | ||
|---|---|---|---|
| 住所 | 東京都江東区森下2-2-2 まことビル1階 | ||
| 電話番号 | 03-5625-4600 | 免許番号 | 東京都知事(4)第92026号 |
| 取引態様 | 仲介 | 物件管理番号 |
100468462157 ※お問い合わせの際には、担当者へ物件管理番号をお伝えください。 |
| 物件に関する情報 |
物件の所在地 : 東京都台東区東上野5 /
交通の利便 : JR山手線/上野駅 歩5分、東京メトロ銀座線/稲荷町駅 歩4分、都営大江戸線/新御徒町駅 歩10分 /
面積 : 25.5m² /
築年月 : 2023年02月 /
賃料 : 13.5万円 /
管理費又は共益費等 : 1.5万円 /
礼金等 : 1ヶ月 /
敷金 : 1ヶ月、保証金等 : -、 償却、敷引 : - /
住宅総合保険等の損害保険料 : 1.8万円2年 /
その他 : 合計2.2万円(内訳:鍵発行手数料22000円)
清掃代 ※20平米超+1,375円/平米39600円/エアコン清掃代16,500円/台16500円
ペット相談
普通借家 2年
保証会社利用必 【収納代行】初回保証料賃料共益費等50%(連保無)、30%(連保有)、以後1年毎25% 月々口座振替
/ 駐車場 : 無
|
||
| 所属団体 |
(公社)全日本不動産協会東京都本部会員 (公社)首都圏不動産公正取引協議会加盟 |
||
| 取扱会社(4) | リブマックス秋葉原店(株)リブ・マックス (情報提供媒体:SUUMO) | ||
|---|---|---|---|
| 住所 | 東京都千代田区神田松永町 7 ヤマリビル5階 | ||
| 電話番号 | 03-5297-8877 | 免許番号 | 国土交通大臣(5)第7032号 |
| 取引態様 | 仲介 | 物件管理番号 |
100468468781 ※お問い合わせの際には、担当者へ物件管理番号をお伝えください。 |
| 物件に関する情報 |
物件の所在地 : 東京都台東区東上野5 /
交通の利便 : JR山手線/上野駅 歩5分、東京メトロ銀座線/稲荷町駅 歩4分、都営大江戸線/新御徒町駅 歩10分 /
面積 : 25.5m² /
築年月 : 2023年02月 /
賃料 : 13.5万円 /
管理費又は共益費等 : 1.5万円 /
礼金等 : 1ヶ月 /
敷金 : 1ヶ月、保証金等 : -、 償却、敷引 : - /
住宅総合保険等の損害保険料 : 1.8万円2年 /
その他 : 合計2.2万円(内訳:鍵発行手数料22000円)
清掃代 ※20平米超+1,375円/平米39600円/エアコン清掃代16,500円/台16500円
ペット相談
普通借家 2年
保証会社利用必 【収納代行】初回保証料賃料共益費等50%(連保無)、30%(連保有)、以後1年毎25% 月々口座振替
/ 駐車場 : 無
|
||
| 所属団体 |
(公社)全日本不動産協会東京都本部会員 (公社)首都圏不動産公正取引協議会加盟 |
||
| 取扱会社(5) | リブマックス新宿店(株)リブ・マックス (情報提供媒体:SUUMO) | ||
|---|---|---|---|
| 住所 | 東京都新宿区新宿2-6-11 カスタリア新宿1階 | ||
| 電話番号 | 03-3355-1717 | 免許番号 | 国土交通大臣(5)第7032号 |
| 取引態様 | 仲介 | 物件管理番号 |
100468470050 ※お問い合わせの際には、担当者へ物件管理番号をお伝えください。 |
| 物件に関する情報 |
物件の所在地 : 東京都台東区東上野5 /
交通の利便 : JR山手線/上野駅 歩5分、東京メトロ銀座線/稲荷町駅 歩4分、都営大江戸線/新御徒町駅 歩10分 /
面積 : 25.5m² /
築年月 : 2023年02月 /
賃料 : 13.5万円 /
管理費又は共益費等 : 1.5万円 /
礼金等 : 1ヶ月 /
敷金 : 1ヶ月、保証金等 : -、 償却、敷引 : - /
住宅総合保険等の損害保険料 : 1.8万円2年 /
その他 : 合計2.2万円(内訳:鍵発行手数料22000円)
清掃代 ※20平米超+1,375円/平米39600円/エアコン清掃代16,500円/台16500円
ペット相談
普通借家 2年
保証会社利用必 【収納代行】初回保証料賃料共益費等50%(連保無)、30%(連保有)、以後1年毎25% 月々口座振替
/ 駐車場 : 無
|
||
| 所属団体 |
(公社)全日本不動産協会東京都本部会員 (公社)首都圏不動産公正取引協議会加盟 |
||
| 取扱会社(6) | トラスト・レジデンス秋葉原店(株)瑞鳳 (情報提供媒体:SUUMO) | ||
|---|---|---|---|
| 住所 | 東京都千代田区神田佐久間町1-27 | ||
| 電話番号 | 03-3526-3330 | 免許番号 | 東京都知事(4)第92026号 |
| 取引態様 | 仲介 | 物件管理番号 |
100468466475 ※お問い合わせの際には、担当者へ物件管理番号をお伝えください。 |
| 物件に関する情報 |
物件の所在地 : 東京都台東区東上野5 /
交通の利便 : JR山手線/上野駅 歩5分、東京メトロ銀座線/稲荷町駅 歩4分、都営大江戸線/新御徒町駅 歩10分 /
面積 : 25.5m² /
築年月 : 2023年02月 /
賃料 : 13.5万円 /
管理費又は共益費等 : 1.5万円 /
礼金等 : 1ヶ月 /
敷金 : 1ヶ月、保証金等 : -、 償却、敷引 : - /
住宅総合保険等の損害保険料 : 1.8万円2年 /
その他 : 合計2.2万円(内訳:鍵発行手数料22000円)
清掃代 ※20平米超+1,375円/平米39600円/エアコン清掃代16,500円/台16500円
ペット相談
普通借家 2年
保証会社利用必 【収納代行】初回保証料賃料共益費等50%(連保無)、30%(連保有)、以後1年毎25% 月々口座振替
/ 駐車場 : 無
|
||
| 所属団体 |
(公社)全日本不動産協会東京都本部会員 (公社)首都圏不動産公正取引協議会加盟 |
||
| 取扱会社(7) | トラスト・レジデンス浅草橋店(株)瑞鳳 (情報提供媒体:SUUMO) | ||
|---|---|---|---|
| 住所 | 東京都台東区浅草橋1-30-12 玉木ビル4階 | ||
| 電話番号 | 03-5829-9255 | 免許番号 | 東京都知事(4)第92026号 |
| 取引態様 | 仲介 | 物件管理番号 |
100468474222 ※お問い合わせの際には、担当者へ物件管理番号をお伝えください。 |
| 物件に関する情報 |
物件の所在地 : 東京都台東区東上野5 /
交通の利便 : JR山手線/上野駅 歩5分、東京メトロ銀座線/稲荷町駅 歩4分、都営大江戸線/新御徒町駅 歩10分 /
面積 : 25.5m² /
築年月 : 2023年02月 /
賃料 : 13.5万円 /
管理費又は共益費等 : 1.5万円 /
礼金等 : 1ヶ月 /
敷金 : 1ヶ月、保証金等 : -、 償却、敷引 : - /
住宅総合保険等の損害保険料 : 1.8万円2年 /
その他 : 合計2.2万円(内訳:鍵発行手数料22000円)
清掃代 ※20平米超+1,375円/平米39600円/エアコン清掃代16,500円/台16500円
ペット相談
普通借家 2年
保証会社利用必 【収納代行】初回保証料賃料共益費等50%(連保無)、30%(連保有)、以後1年毎25% 月々口座振替
/ 駐車場 : 無
|
||
| 取扱会社(8) | リブマックス銀座店(株)リブマックスリーシング (情報提供媒体:SUUMO) | ||
|---|---|---|---|
| 住所 | 東京都中央区築地2-12-1 ホテルリブマックス東銀座1階 | ||
| 電話番号 | 03-3545-4545 | 免許番号 | 国土交通大臣(3)第8116号 |
| 取引態様 | 仲介 | 物件管理番号 |
100468541533 ※お問い合わせの際には、担当者へ物件管理番号をお伝えください。 |
| 物件に関する情報 |
物件の所在地 : 東京都台東区東上野5 /
交通の利便 : JR山手線/上野駅 歩5分、東京メトロ銀座線/稲荷町駅 歩4分、都営大江戸線/新御徒町駅 歩10分 /
面積 : 25.5m² /
築年月 : 2023年02月 /
賃料 : 13.5万円 /
管理費又は共益費等 : 1.5万円 /
礼金等 : 1ヶ月 /
敷金 : 1ヶ月、保証金等 : -、 償却、敷引 : - /
住宅総合保険等の損害保険料 : 1.8万円2年 /
その他 : 合計2.2万円(内訳:鍵発行手数料22000円)
清掃代 ※20平米超+1,375円/平米39600円/エアコン清掃代16,500円/台16500円
ペット相談
普通借家 2年
保証会社利用必 【収納代行】初回保証料賃料共益費等50%(連保無)、30%(連保有)、以後1年毎25% 月々口座振替
/ 駐車場 : 無
|
||
| 所属団体 |
(公社)東京都宅地建物取引業協会会員 (公社)首都圏不動産公正取引協議会加盟 |
||
| 取扱会社(9) | リブマックス六本木店(株)リブ・マックス (情報提供媒体:SUUMO) | ||
|---|---|---|---|
| 住所 | 東京都港区六本木3-12-5 STELLA六本木2階 | ||
| 電話番号 | 03-5770-2828 | 免許番号 | 国土交通大臣(5)第7032号 |
| 取引態様 | 仲介 | 物件管理番号 |
100468474208 ※お問い合わせの際には、担当者へ物件管理番号をお伝えください。 |
| 物件に関する情報 |
物件の所在地 : 東京都台東区東上野5 /
交通の利便 : JR山手線/上野駅 歩5分、東京メトロ銀座線/稲荷町駅 歩4分、都営大江戸線/新御徒町駅 歩10分 /
面積 : 25.5m² /
築年月 : 2023年02月 /
賃料 : 13.5万円 /
管理費又は共益費等 : 1.5万円 /
礼金等 : 1ヶ月 /
敷金 : 1ヶ月、保証金等 : -、 償却、敷引 : - /
住宅総合保険等の損害保険料 : 1.8万円2年 /
その他 : 合計2.2万円(内訳:鍵発行手数料22000円)
清掃代 ※20平米超+1,375円/平米39600円/エアコン清掃代16,500円/台16500円
ペット相談
普通借家 2年
保証会社利用必 【収納代行】初回保証料賃料共益費等50%(連保無)、30%(連保有)、以後1年毎25% 月々口座振替
/ 駐車場 : 無
|
||
| 所属団体 |
(公社)全日本不動産協会東京都本部会員 (公社)首都圏不動産公正取引協議会加盟 |
||
| 取扱会社(10) | リブマックス品川駅前店(株)リブマックスリーシング (情報提供媒体:SUUMO) | ||
|---|---|---|---|
| 住所 | 東京都港区港南2-2-15 レゴリス品川駅前ビルディング5階 | ||
| 電話番号 | 03-3474-8411 | 免許番号 | 国土交通大臣(3)第8116号 |
| 取引態様 | 仲介 | 物件管理番号 |
100468472977 ※お問い合わせの際には、担当者へ物件管理番号をお伝えください。 |
| 物件に関する情報 |
物件の所在地 : 東京都台東区東上野5 /
交通の利便 : JR山手線/上野駅 歩5分、東京メトロ銀座線/稲荷町駅 歩4分、都営大江戸線/新御徒町駅 歩10分 /
面積 : 25.5m² /
築年月 : 2023年02月 /
賃料 : 13.5万円 /
管理費又は共益費等 : 1.5万円 /
礼金等 : 1ヶ月 /
敷金 : 1ヶ月、保証金等 : -、 償却、敷引 : - /
住宅総合保険等の損害保険料 : 1.8万円2年 /
その他 : 合計2.2万円(内訳:鍵発行手数料22000円)
清掃代 ※20平米超+1,375円/平米39600円/エアコン清掃代16,500円/台16500円
ペット相談
普通借家 2年
保証会社利用必 【収納代行】初回保証料賃料共益費等50%(連保無)、30%(連保有)、以後1年毎25% 月々口座振替
/ 駐車場 : 無
|
||
| 所属団体 |
(公社)東京都宅地建物取引業協会会員 (公社)首都圏不動産公正取引協議会加盟 |
||
| 取扱会社(11) | リブマックス日本橋馬喰町店(株)リブマックスリーシング (情報提供媒体:SUUMO) | ||
|---|---|---|---|
| 住所 | 東京都中央区日本橋馬喰町1-7-20 ホテルリブマックス東京馬喰町1階 | ||
| 電話番号 | 03-3668-1171 | 免許番号 | 国土交通大臣(3)第8116号 |
| 取引態様 | 仲介 | 物件管理番号 |
100468494897 ※お問い合わせの際には、担当者へ物件管理番号をお伝えください。 |
| 物件に関する情報 |
物件の所在地 : 東京都台東区東上野5 /
交通の利便 : JR山手線/上野駅 歩5分、東京メトロ銀座線/稲荷町駅 歩4分、都営大江戸線/新御徒町駅 歩10分 /
面積 : 25.5m² /
築年月 : 2023年02月 /
賃料 : 13.5万円 /
管理費又は共益費等 : 1.5万円 /
礼金等 : 1ヶ月 /
敷金 : 1ヶ月、保証金等 : -、 償却、敷引 : - /
住宅総合保険等の損害保険料 : 1.8万円2年 /
その他 : 合計2.2万円(内訳:鍵発行手数料22000円)
清掃代 ※20平米超+1,375円/平米39600円/エアコン清掃代16,500円/台16500円
ペット相談
普通借家 2年
保証会社利用必 【収納代行】初回保証料賃料共益費等50%(連保無)、30%(連保有)、以後1年毎25% 月々口座振替
/ 駐車場 : 無
|
||
| 所属団体 |
(公社)東京都宅地建物取引業協会会員 (公社)首都圏不動産公正取引協議会加盟 |
||
| 取扱会社(12) | トラスト・レジデンス(株)瑞鳳 (情報提供媒体:SUUMO) | ||
|---|---|---|---|
| 住所 | 東京都中央区八重洲1-4-20 MTエステートビル5階 | ||
| 電話番号 | 03-3548-8433 | 免許番号 | 東京都知事(4)第92026号 |
| 取引態様 | 仲介 | 物件管理番号 |
100468464532 ※お問い合わせの際には、担当者へ物件管理番号をお伝えください。 |
| 物件に関する情報 |
物件の所在地 : 東京都台東区東上野5 /
交通の利便 : JR山手線/上野駅 歩5分、東京メトロ銀座線/稲荷町駅 歩4分、都営大江戸線/新御徒町駅 歩10分 /
面積 : 25.5m² /
築年月 : 2023年02月 /
賃料 : 13.5万円 /
管理費又は共益費等 : 1.5万円 /
礼金等 : 1ヶ月 /
敷金 : 1ヶ月、保証金等 : -、 償却、敷引 : - /
住宅総合保険等の損害保険料 : 1.8万円2年 /
その他 : 合計2.2万円(内訳:鍵発行手数料22000円)
清掃代 ※20平米超+1,375円/平米39600円/エアコン清掃代16,500円/台16500円
ペット相談
普通借家 2年
保証会社利用必 【収納代行】初回保証料賃料共益費等50%(連保無)、30%(連保有)、以後1年毎25% 月々口座振替
/ 駐車場 : 無
|
||
| 所属団体 |
(公社)全日本不動産協会東京都本部会員 (公社)首都圏不動産公正取引協議会加盟 |
||

