福岡県福岡市博多区三筑2丁目の賃貸マンション
情報公開日:2026/01/27(残り15日)
次回更新日は情報公開日より15日以内
物件画像
画像提供元:株式会社プラン・ドゥ・シー/SumoSumoJR尼崎駅前店
この物件のタグ
福岡県福岡市博多区三筑2丁目の賃貸マンションの物件情報
| 賃料/管理費等 |
8.4万円(管理費等 6,000円)
|
||
|---|---|---|---|
| 敷金 | 無料 | 礼金 | 8.4万円 |
| 種別/構造 | マンション/RC | 築年月 | 2023年01月 |
| 所在地 |
福岡県福岡市博多区三筑2丁目
|
||
| 主要交通機関 |
西鉄天神大牟田線/雑餉隈 徒歩9分 鹿児島本線/笹原 徒歩15分 鹿児島本線/南福岡 徒歩16分 |
||
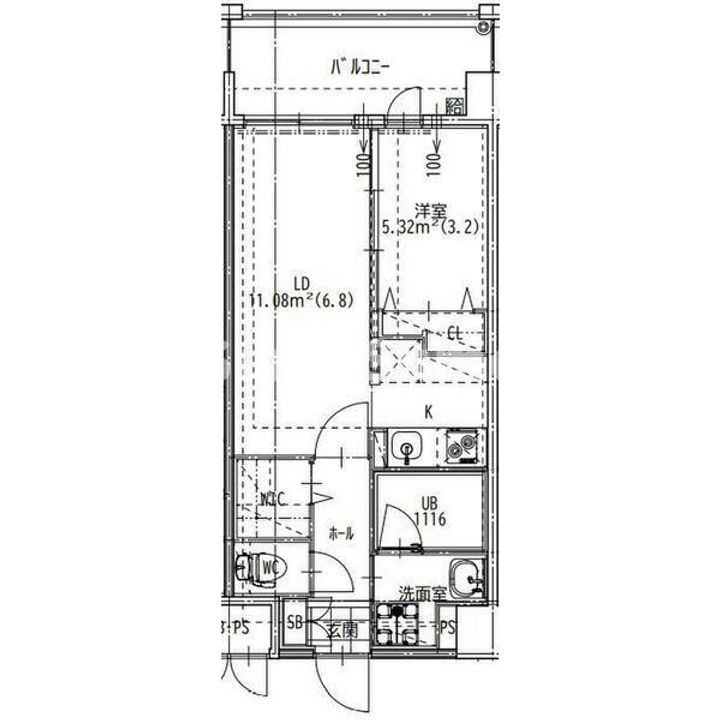
| 間取り | 1LDK | 面積 | 31.84m² |
| 間取り詳細 | LD 6.8帖、洋室 3.2帖 | 方位 | 北東 |
| 階数/部屋番号 | 5階/地上8階建 | 駐車場 | 近隣 18,000円 物件からの距離 100m |
| 特徴 |
|
||
| 設備/条件 | エアコン、バス・トイレ別、浴室乾燥機、独立洗面台、温水洗浄便座、2人入居可、保証人不要・代行、IT重説 対応物件、CATV、インターネット対応、光ファイバー、システムキッチン、ガスコンロ、コンロ二口以上、2階以上の物件、フローリング、室内洗濯機置場、バルコニー、エレベーター、駐車場あり、駐輪場あり、敷地内ゴミ置き場、オートロック、TVドアホン、ウォークインクローゼット | ||
| 備考 |
収納はウォークインクロゼット・シューズボックスなど豊富なので、広々と空間を利用することも可能です。セキュリティ面は、TVインターホン・オートロックなど充実しているので、防犯対策もばっちりです。共用部には敷地内ごみ置き場・エレベータ2基など様々な設備やサービスが揃っているので便利です。室内設備は洗面化粧台・浴室乾燥機などが揃っているので、快適に過ごしやすいお部屋になります。こちらの物件はシステムキッチンが用意されております。駅徒歩9分に駅が立地する物件なので、電車を多く利用する方にとって便利です。雨が続いてジメジメしていてもエアコンが付いていれば快適に過ごせます。2面に窓が配置されているため日光を採り入れやすい角部屋になります。転居先に住み心地も良いこちらの賃貸物件。充実した新生活を過ごしましょう。交通の便が良く、2沿線利用できる物件です。当物件は空家ですので、内覧もスムーズです。 保証会社:利用必須 初回賃料共益費30%、更新時1万円/年 ※物件に関する備考は各社異なりますのでご確認のうえお問い合わせください。 |
||
| 契約期間 | 2年 | ||
|---|---|---|---|
| 入居可能時期 |
お問い合わせください。
|
||
| 初期費用 |
お問い合わせください。
|
||
| 住宅保険 | お問い合わせください。 | 現状空室状況 | 空家 |
情報提供元:株式会社プラン・ドゥ・シー/SumoSumoJR尼崎駅前店
画像提供元:株式会社プラン・ドゥ・シー/SumoSumoJR尼崎駅前店
※各種情報と現状に差異がある場合は、現状優先となります。取り扱い不動産会社が複数ある場合は、住宅保険等、一部条件が異なる場合もございますので、取扱店舗までご確認下さいませ。
この物件にお問い合わせ
周辺施設
| コンビニ |
セブン‐イレブン 博多三筑2丁目店 (95m) 株式会社ポプラ 福岡支店 (343m) |
|||
|---|---|---|---|---|
| スーパー |
ザ・ビッグ 南福岡店 (282m) 株式会社マルキョウ 雑餉隈店 (640m) |
|||
| ドラッグストア |
スマイル薬局麦野店 (163m) あかとんぼ薬局 南八幡店 (370m) |
|||
| 保育園 |
三筑どろんこ保育園 (94m) |
|||
|---|---|---|---|---|
| 幼稚園 |
ひかり幼稚園 (322m) |
|||
| 小学校 |
福岡市立三筑小学校 (167m) |
|||
| 中学校 |
福岡市立三筑中学校 (244m) |
|||
※周辺情報は不動産会社から提供された情報ではなく、弊サービスで独自に収集した情報です。
担当者のオススメポイント!
共用部には敷地内ごみ置き場・エレベータ2基などが揃っており、とても充実しています。収納はクロゼット・シューズボックスなど豊富なので、広々と空間を利用することも可能です。セキュリティ面は、オートロック・TVインターホンなどを備え付けているので安心して暮らせます。室内設備は洗面化粧台・浴室乾燥機などが揃っており、とても充実しています。風通しが良く真夏の暑い日も快適に過ごせるマンションです。広い部屋にお住みになりたい方は1LDKを検討してみてはいかがですか。隣室との接地面が少ない角部屋は、騒音トラブルを防止できます。駐輪場付きの物件です。魅力も多い賃貸物件はいかがでしょうか。簡単に温度管理できるエアコン付きのマンション。たくさんの料理をまとめて作ることで忙しい日でもすぐに料理を作れる2口コンロを備え付けております。
電話でお問い合わせご希望の方
株式会社プラン・ドゥ・シー SumoSumo垂水店
営業時間: 10:00~19:00 定休日: 年末年始
株式会社プラン・ドゥ・シー SumoSumo西宮北口店
営業時間: 9:00〜19:00 定休日: 年末年始
株式会社プラン・ドゥ・シー SumoSumo元町店
営業時間: 9:00〜19:00 定休日: 年末年始
株式会社プラン・ドゥ・シー SumoSumoJR尼崎駅前店
営業時間: 9:00〜19:00 定休日: 年末年始
株式会社プラン・ドゥ・シー SumoSumo渋谷店
営業時間: 9:00〜19:00 定休日: 年末年始
株式会社プラン・ドゥ・シー SumoSumo兵庫店
営業時間: 9:00〜19:00 定休日: 年末年始
株式会社SumoSumo大阪 SumoSumo心斎橋店
営業時間: 9:00〜19:00 定休日: 年末年始
ハウスコム株式会社 吉塚店
営業時間: 10:00〜18:00 定休日: なし
- ※電話経由でのお問い合せは、お祝い金プレゼントキャンペーンの適用になりませんのでご注意ください。
- ※電話でお問い合わせする場合は、光IP電話、及びIP電話からはご利用になれません。不動産会社の方からの電話番号によるお問合せはお断りしております。
福岡県福岡市博多区三筑2丁目の賃貸マンションの取扱会社情報 8件
| 取扱会社(1) | 初期費用分割払い対応株式会社プラン・ドゥ・シー SumoSumoJR尼崎駅前店 | ||
|---|---|---|---|
| 住所 | 兵庫県尼崎市潮江1-7-1 | ||
| 電話番号 | 06-4400-6315 | 免許番号 | 国土交通大臣免許(2)第9550号 |
| 取引態様 | 仲介 | 物件管理番号 |
553470001520631 ※お問い合わせの際には、担当者へ物件管理番号をお伝えください。 |
| 連絡先 | 0037-6008-6076 | ||
| 物件に関する情報 |
物件の所在地 : 福岡県福岡市博多区三筑2丁目 /
交通の利便 : 西鉄天神大牟田線/雑餉隈 徒歩9分、鹿児島本線/笹原 徒歩15分、鹿児島本線/南福岡 徒歩16分 /
面積 : 31.84m² /
築年月 : 2023年01月 /
賃料 : 8.4万円 /
管理費又は共益費等 : 6,000円 /
礼金等 : 1ヶ月 /
敷金 : 無料、保証金等 : -、 償却、敷引 : - /
住宅総合保険等の損害保険料 : - /
その他 : 収納はウォークインクロゼット・シューズボックスなど豊富なので、広々と空間を利用することも可能です。セキュリティ面は、TVインターホン・オートロックなど充実しているので、防犯対策もばっちりです。共用部には敷地内ごみ置き場・エレベータ2基など様々な設備やサービスが揃っているので便利です。室内設備は洗面化粧台・浴室乾燥機などが揃っているので、快適に過ごしやすいお部屋になります。こちらの物件はシステムキッチンが用意されております。駅徒歩9分に駅が立地する物件なので、電車を多く利用する方にとって便利です。雨が続いてジメジメしていてもエアコンが付いていれば快適に過ごせます。2面に窓が配置されているため日光を採り入れやすい角部屋になります。転居先に住み心地も良いこちらの賃貸物件。充実した新生活を過ごしましょう。交通の便が良く、2沿線利用できる物件です。当物件は空家ですので、内覧もスムーズです。
保証会社:利用必須 初回賃料共益費30%、更新時1万円/年
/ 駐車場 : 近隣
18,000円
物件からの距離 100m
共用部には敷地内ごみ置き場・エレベータ2基などが揃っており、とても充実しています。収納はクロゼット・シューズボックスなど豊富なので、広々と空間を利用することも可能です。セキュリティ面は、オートロック・TVインターホンなどを備え付けているので安心して暮らせます。室内設備は洗面化粧台・浴室乾燥機などが揃っており、とても充実しています。風通しが良く真夏の暑い日も快適に過ごせるマンションです。広い部屋にお住みになりたい方は1LDKを検討してみてはいかがですか。隣室との接地面が少ない角部屋は、騒音トラブルを防止できます。駐輪場付きの物件です。魅力も多い賃貸物件はいかがでしょうか。簡単に温度管理できるエアコン付きのマンション。たくさんの料理をまとめて作ることで忙しい日でもすぐに料理を作れる2口コンロを備え付けております。
|
||
| 所属団体 |
(公社)全日本不動産協会 公益社団法人近畿地区不動産公正取引協議会 (公社)不動産保証協会 |
||
| 取扱会社(2) | 初期費用分割払い対応株式会社プラン・ドゥ・シー SumoSumo垂水店 | ||
|---|---|---|---|
| 住所 | 兵庫県神戸市垂水区神田町2-27 | ||
| 電話番号 | 078-798-7416 | 免許番号 | 国土交通大臣免許(2)第9550号 |
| 取引態様 | 仲介 | 物件管理番号 |
553470001520626 ※お問い合わせの際には、担当者へ物件管理番号をお伝えください。 |
| 連絡先 | 0037-6008-2840 | ||
| 物件に関する情報 |
物件の所在地 : 福岡県福岡市博多区三筑2丁目 /
交通の利便 : 西鉄天神大牟田線/雑餉隈 徒歩9分、鹿児島本線/笹原 徒歩15分、鹿児島本線/南福岡 徒歩16分 /
面積 : 31.84m² /
築年月 : 2023年01月 /
賃料 : 8.4万円 /
管理費又は共益費等 : 6,000円 /
礼金等 : 1ヶ月 /
敷金 : 無料、保証金等 : -、 償却、敷引 : - /
住宅総合保険等の損害保険料 : - /
その他 : 収納はウォークインクロゼット・シューズボックスなど豊富なので、広々と空間を利用することも可能です。セキュリティ面は、TVインターホン・オートロックなど充実しているので、防犯対策もばっちりです。共用部には敷地内ごみ置き場・エレベータ2基など様々な設備やサービスが揃っているので便利です。室内設備は洗面化粧台・浴室乾燥機などが揃っているので、快適に過ごしやすいお部屋になります。こちらの物件はシステムキッチンが用意されております。駅徒歩9分に駅が立地する物件なので、電車を多く利用する方にとって便利です。雨が続いてジメジメしていてもエアコンが付いていれば快適に過ごせます。2面に窓が配置されているため日光を採り入れやすい角部屋になります。転居先に住み心地も良いこちらの賃貸物件。充実した新生活を過ごしましょう。交通の便が良く、2沿線利用できる物件です。当物件は空家ですので、内覧もスムーズです。
保証会社:利用必須 初回賃料共益費30%、更新時1万円/年
/ 駐車場 : 近隣
18,000円
物件からの距離 100m
共用部には敷地内ごみ置き場・エレベータ2基などが揃っており、とても充実しています。収納はクロゼット・シューズボックスなど豊富なので、広々と空間を利用することも可能です。セキュリティ面は、オートロック・TVインターホンなどを備え付けているので安心して暮らせます。室内設備は洗面化粧台・浴室乾燥機などが揃っており、とても充実しています。風通しが良く真夏の暑い日も快適に過ごせるマンションです。広い部屋にお住みになりたい方は1LDKを検討してみてはいかがですか。隣室との接地面が少ない角部屋は、騒音トラブルを防止できます。駐輪場付きの物件です。魅力も多い賃貸物件はいかがでしょうか。簡単に温度管理できるエアコン付きのマンション。たくさんの料理をまとめて作ることで忙しい日でもすぐに料理を作れる2口コンロを備え付けております。
|
||
| 所属団体 |
(公社)全日本不動産協会 公益社団法人近畿地区不動産公正取引協議会 (公社)不動産保証協会 |
||
| 取扱会社(3) | ハウスコム株式会社 吉塚店 | ||
|---|---|---|---|
| 住所 | 福岡県福岡市博多区東公園2-26 | ||
| 電話番号 | 0800-170-5590 | 免許番号 | 国土交通大臣免許(6)第6094号 |
| 取引態様 | 仲介 | 物件管理番号 |
HC4-4517075-508-0167 ※お問い合わせの際には、担当者へ物件管理番号をお伝えください。 |
| 連絡先 | 0037-6008-0175 | ||
| 物件に関する情報 |
物件の所在地 : 福岡県福岡市博多区三筑2丁目 /
交通の利便 : 西鉄天神大牟田線/雑餉隈 徒歩8分、鹿児島本線/笹原 徒歩14分 /
面積 : 31.84m² /
築年月 : 2023年01月 /
賃料 : 8.4万円 /
管理費又は共益費等 : 6,000円 /
礼金等 : 1ヶ月 /
敷金 : 無料、保証金等 : -、 償却、敷引 : - /
住宅総合保険等の損害保険料 : 要 /
その他 : 町会費(月) 500円
契約事務手数料:11,000円
更新料:84,000円
保証会社:利用必須 初回賃料共益費30%、更新時1万円/年
/ 駐車場 : 無し
こちらの物件はマンションです。このお部屋は31.84平米です。
|
||
| 所属団体 |
公益社団法人 首都圏不動産公正取引協議会 - |
||
| 取扱会社(4) | 初期費用分割払い対応株式会社プラン・ドゥ・シー SumoSumo元町店 | ||
|---|---|---|---|
| 住所 | 兵庫県神戸市中央区北長狭通3-3-1 | ||
| 電話番号 | 078-600-0540 | 免許番号 | 国土交通大臣免許(2)第9550号 |
| 取引態様 | 仲介 | 物件管理番号 |
553470001520627 ※お問い合わせの際には、担当者へ物件管理番号をお伝えください。 |
| 連絡先 | 0037-6008-5310 | ||
| 物件に関する情報 |
物件の所在地 : 福岡県福岡市博多区三筑2丁目 /
交通の利便 : 西鉄天神大牟田線/雑餉隈 徒歩9分、鹿児島本線/笹原 徒歩15分、鹿児島本線/南福岡 徒歩16分 /
面積 : 31.84m² /
築年月 : 2023年01月 /
賃料 : 8.4万円 /
管理費又は共益費等 : 6,000円 /
礼金等 : 1ヶ月 /
敷金 : 無料、保証金等 : -、 償却、敷引 : - /
住宅総合保険等の損害保険料 : - /
その他 : 収納はウォークインクロゼット・シューズボックスなど豊富なので、広々と空間を利用することも可能です。セキュリティ面は、TVインターホン・オートロックなど充実しているので、防犯対策もばっちりです。共用部には敷地内ごみ置き場・エレベータ2基など様々な設備やサービスが揃っているので便利です。室内設備は洗面化粧台・浴室乾燥機などが揃っているので、快適に過ごしやすいお部屋になります。こちらの物件はシステムキッチンが用意されております。駅徒歩9分に駅が立地する物件なので、電車を多く利用する方にとって便利です。雨が続いてジメジメしていてもエアコンが付いていれば快適に過ごせます。2面に窓が配置されているため日光を採り入れやすい角部屋になります。転居先に住み心地も良いこちらの賃貸物件。充実した新生活を過ごしましょう。交通の便が良く、2沿線利用できる物件です。当物件は空家ですので、内覧もスムーズです。
保証会社:利用必須 初回賃料共益費30%、更新時1万円/年
/ 駐車場 : 近隣
18,000円
物件からの距離 100m
共用部には敷地内ごみ置き場・エレベータ2基などが揃っており、とても充実しています。収納はクロゼット・シューズボックスなど豊富なので、広々と空間を利用することも可能です。セキュリティ面は、オートロック・TVインターホンなどを備え付けているので安心して暮らせます。室内設備は洗面化粧台・浴室乾燥機などが揃っており、とても充実しています。風通しが良く真夏の暑い日も快適に過ごせるマンションです。広い部屋にお住みになりたい方は1LDKを検討してみてはいかがですか。隣室との接地面が少ない角部屋は、騒音トラブルを防止できます。駐輪場付きの物件です。魅力も多い賃貸物件はいかがでしょうか。簡単に温度管理できるエアコン付きのマンション。たくさんの料理をまとめて作ることで忙しい日でもすぐに料理を作れる2口コンロを備え付けております。
|
||
| 所属団体 |
(公社)全日本不動産協会 公益社団法人近畿地区不動産公正取引協議会 (公社)不動産保証協会 |
||
| 取扱会社(5) | 初期費用分割払い対応株式会社プラン・ドゥ・シー SumoSumo渋谷店 | ||
|---|---|---|---|
| 住所 | 東京都渋谷区桜丘町16-9 DK渋谷ビル4F | ||
| 電話番号 | 03-6833-3971 | 免許番号 | 国土交通大臣免許(2)第9550号 |
| 取引態様 | 仲介 | 物件管理番号 |
553470001520624 ※お問い合わせの際には、担当者へ物件管理番号をお伝えください。 |
| 連絡先 | 0037-6008-9775 | ||
| 物件に関する情報 |
物件の所在地 : 福岡県福岡市博多区三筑2丁目 /
交通の利便 : 西鉄天神大牟田線/雑餉隈 徒歩9分、鹿児島本線/笹原 徒歩15分、鹿児島本線/南福岡 徒歩16分 /
面積 : 31.84m² /
築年月 : 2023年01月 /
賃料 : 8.4万円 /
管理費又は共益費等 : 6,000円 /
礼金等 : 1ヶ月 /
敷金 : 無料、保証金等 : -、 償却、敷引 : - /
住宅総合保険等の損害保険料 : - /
その他 : 収納はウォークインクロゼット・シューズボックスなど豊富なので、広々と空間を利用することも可能です。セキュリティ面は、TVインターホン・オートロックなど充実しているので、防犯対策もばっちりです。共用部には敷地内ごみ置き場・エレベータ2基など様々な設備やサービスが揃っているので便利です。室内設備は洗面化粧台・浴室乾燥機などが揃っているので、快適に過ごしやすいお部屋になります。こちらの物件はシステムキッチンが用意されております。駅徒歩9分に駅が立地する物件なので、電車を多く利用する方にとって便利です。雨が続いてジメジメしていてもエアコンが付いていれば快適に過ごせます。2面に窓が配置されているため日光を採り入れやすい角部屋になります。転居先に住み心地も良いこちらの賃貸物件。充実した新生活を過ごしましょう。交通の便が良く、2沿線利用できる物件です。当物件は空家ですので、内覧もスムーズです。
保証会社:利用必須 初回賃料共益費30%、更新時1万円/年
/ 駐車場 : 近隣
18,000円
物件からの距離 100m
共用部には敷地内ごみ置き場・エレベータ2基などが揃っており、とても充実しています。収納はクロゼット・シューズボックスなど豊富なので、広々と空間を利用することも可能です。セキュリティ面は、オートロック・TVインターホンなどを備え付けているので安心して暮らせます。室内設備は洗面化粧台・浴室乾燥機などが揃っており、とても充実しています。風通しが良く真夏の暑い日も快適に過ごせるマンションです。広い部屋にお住みになりたい方は1LDKを検討してみてはいかがですか。隣室との接地面が少ない角部屋は、騒音トラブルを防止できます。駐輪場付きの物件です。魅力も多い賃貸物件はいかがでしょうか。簡単に温度管理できるエアコン付きのマンション。たくさんの料理をまとめて作ることで忙しい日でもすぐに料理を作れる2口コンロを備え付けております。
|
||
| 所属団体 |
(公社)全日本不動産協会 (一社)不動産協会 公益社団法人首都圏不動産公正取引協議会 (公社)不動産保証協会 |
||
| 取扱会社(6) | 初期費用分割払い対応株式会社プラン・ドゥ・シー SumoSumo西宮北口店 | ||
|---|---|---|---|
| 住所 | 兵庫県西宮市甲風園1-5-8 | ||
| 電話番号 | 078-600-0540 | 免許番号 | 国土交通大臣免許(2)第9550号 |
| 取引態様 | 仲介 | 物件管理番号 |
553470001520630 ※お問い合わせの際には、担当者へ物件管理番号をお伝えください。 |
| 連絡先 | 0037-6008-8003 | ||
| 物件に関する情報 |
物件の所在地 : 福岡県福岡市博多区三筑2丁目 /
交通の利便 : 西鉄天神大牟田線/雑餉隈 徒歩9分、鹿児島本線/笹原 徒歩15分、鹿児島本線/南福岡 徒歩16分 /
面積 : 31.84m² /
築年月 : 2023年01月 /
賃料 : 8.4万円 /
管理費又は共益費等 : 6,000円 /
礼金等 : 1ヶ月 /
敷金 : 無料、保証金等 : -、 償却、敷引 : - /
住宅総合保険等の損害保険料 : - /
その他 : 収納はウォークインクロゼット・シューズボックスなど豊富なので、広々と空間を利用することも可能です。セキュリティ面は、TVインターホン・オートロックなど充実しているので、防犯対策もばっちりです。共用部には敷地内ごみ置き場・エレベータ2基など様々な設備やサービスが揃っているので便利です。室内設備は洗面化粧台・浴室乾燥機などが揃っているので、快適に過ごしやすいお部屋になります。こちらの物件はシステムキッチンが用意されております。駅徒歩9分に駅が立地する物件なので、電車を多く利用する方にとって便利です。雨が続いてジメジメしていてもエアコンが付いていれば快適に過ごせます。2面に窓が配置されているため日光を採り入れやすい角部屋になります。転居先に住み心地も良いこちらの賃貸物件。充実した新生活を過ごしましょう。交通の便が良く、2沿線利用できる物件です。当物件は空家ですので、内覧もスムーズです。
保証会社:利用必須 初回賃料共益費30%、更新時1万円/年
/ 駐車場 : 近隣
18,000円
物件からの距離 100m
共用部には敷地内ごみ置き場・エレベータ2基などが揃っており、とても充実しています。収納はクロゼット・シューズボックスなど豊富なので、広々と空間を利用することも可能です。セキュリティ面は、オートロック・TVインターホンなどを備え付けているので安心して暮らせます。室内設備は洗面化粧台・浴室乾燥機などが揃っており、とても充実しています。風通しが良く真夏の暑い日も快適に過ごせるマンションです。広い部屋にお住みになりたい方は1LDKを検討してみてはいかがですか。隣室との接地面が少ない角部屋は、騒音トラブルを防止できます。駐輪場付きの物件です。魅力も多い賃貸物件はいかがでしょうか。簡単に温度管理できるエアコン付きのマンション。たくさんの料理をまとめて作ることで忙しい日でもすぐに料理を作れる2口コンロを備え付けております。
|
||
| 所属団体 |
(公社)全日本不動産協会 公益社団法人近畿地区不動産公正取引協議会 (公社)不動産保証協会 |
||
| 取扱会社(7) | 初期費用分割払い対応株式会社プラン・ドゥ・シー SumoSumo兵庫店 | ||
|---|---|---|---|
| 住所 | 兵庫県神戸市兵庫区塚本通7-2-19 | ||
| 電話番号 | 078-600-0540 | 免許番号 | 国土交通大臣免許(2)第9550号 |
| 取引態様 | 仲介 | 物件管理番号 |
553470001520628 ※お問い合わせの際には、担当者へ物件管理番号をお伝えください。 |
| 連絡先 | 0037-6008-8330 | ||
| 物件に関する情報 |
物件の所在地 : 福岡県福岡市博多区三筑2丁目 /
交通の利便 : 西鉄天神大牟田線/雑餉隈 徒歩9分、鹿児島本線/笹原 徒歩15分、鹿児島本線/南福岡 徒歩16分 /
面積 : 31.84m² /
築年月 : 2023年01月 /
賃料 : 8.4万円 /
管理費又は共益費等 : 6,000円 /
礼金等 : 1ヶ月 /
敷金 : 無料、保証金等 : -、 償却、敷引 : - /
住宅総合保険等の損害保険料 : - /
その他 : 収納はウォークインクロゼット・シューズボックスなど豊富なので、広々と空間を利用することも可能です。セキュリティ面は、TVインターホン・オートロックなど充実しているので、防犯対策もばっちりです。共用部には敷地内ごみ置き場・エレベータ2基など様々な設備やサービスが揃っているので便利です。室内設備は洗面化粧台・浴室乾燥機などが揃っているので、快適に過ごしやすいお部屋になります。こちらの物件はシステムキッチンが用意されております。駅徒歩9分に駅が立地する物件なので、電車を多く利用する方にとって便利です。雨が続いてジメジメしていてもエアコンが付いていれば快適に過ごせます。2面に窓が配置されているため日光を採り入れやすい角部屋になります。転居先に住み心地も良いこちらの賃貸物件。充実した新生活を過ごしましょう。交通の便が良く、2沿線利用できる物件です。当物件は空家ですので、内覧もスムーズです。
保証会社:利用必須 初回賃料共益費30%、更新時1万円/年
/ 駐車場 : 近隣
18,000円
物件からの距離 100m
共用部には敷地内ごみ置き場・エレベータ2基などが揃っており、とても充実しています。収納はクロゼット・シューズボックスなど豊富なので、広々と空間を利用することも可能です。セキュリティ面は、オートロック・TVインターホンなどを備え付けているので安心して暮らせます。室内設備は洗面化粧台・浴室乾燥機などが揃っており、とても充実しています。風通しが良く真夏の暑い日も快適に過ごせるマンションです。広い部屋にお住みになりたい方は1LDKを検討してみてはいかがですか。隣室との接地面が少ない角部屋は、騒音トラブルを防止できます。駐輪場付きの物件です。魅力も多い賃貸物件はいかがでしょうか。簡単に温度管理できるエアコン付きのマンション。たくさんの料理をまとめて作ることで忙しい日でもすぐに料理を作れる2口コンロを備え付けております。
|
||
| 所属団体 |
(公社)全日本不動産協会 公益社団法人近畿地区不動産公正取引協議会 (公社)不動産保証協会 |
||
| 取扱会社(8) | 初期費用分割払い対応株式会社SumoSumo大阪 SumoSumo心斎橋店 | ||
|---|---|---|---|
| 住所 | 大阪府大阪市中央区南船場3-3-23 | ||
| 電話番号 | 06-4400-6315 | 免許番号 | 大阪府知事免許(1)第62697号 |
| 取引態様 | 仲介 | 物件管理番号 |
553470001520625 ※お問い合わせの際には、担当者へ物件管理番号をお伝えください。 |
| 連絡先 | 0037-6008-9492 | ||
| 物件に関する情報 |
物件の所在地 : 福岡県福岡市博多区三筑2丁目 /
交通の利便 : 西鉄天神大牟田線/雑餉隈 徒歩9分、鹿児島本線/笹原 徒歩15分、鹿児島本線/南福岡 徒歩16分 /
面積 : 31.84m² /
築年月 : 2023年01月 /
賃料 : 8.4万円 /
管理費又は共益費等 : 6,000円 /
礼金等 : 1ヶ月 /
敷金 : 無料、保証金等 : -、 償却、敷引 : - /
住宅総合保険等の損害保険料 : - /
その他 : 収納はウォークインクロゼット・シューズボックスなど豊富なので、広々と空間を利用することも可能です。セキュリティ面は、TVインターホン・オートロックなど充実しているので、防犯対策もばっちりです。共用部には敷地内ごみ置き場・エレベータ2基など様々な設備やサービスが揃っているので便利です。室内設備は洗面化粧台・浴室乾燥機などが揃っているので、快適に過ごしやすいお部屋になります。こちらの物件はシステムキッチンが用意されております。駅徒歩9分に駅が立地する物件なので、電車を多く利用する方にとって便利です。雨が続いてジメジメしていてもエアコンが付いていれば快適に過ごせます。2面に窓が配置されているため日光を採り入れやすい角部屋になります。転居先に住み心地も良いこちらの賃貸物件。充実した新生活を過ごしましょう。交通の便が良く、2沿線利用できる物件です。当物件は空家ですので、内覧もスムーズです。
保証会社:利用必須 初回賃料共益費30%、更新時1万円/年
/ 駐車場 : 近隣
18,000円
物件からの距離 100m
共用部には敷地内ごみ置き場・エレベータ2基などが揃っており、とても充実しています。収納はクロゼット・シューズボックスなど豊富なので、広々と空間を利用することも可能です。セキュリティ面は、オートロック・TVインターホンなどを備え付けているので安心して暮らせます。室内設備は洗面化粧台・浴室乾燥機などが揃っており、とても充実しています。風通しが良く真夏の暑い日も快適に過ごせるマンションです。広い部屋にお住みになりたい方は1LDKを検討してみてはいかがですか。隣室との接地面が少ない角部屋は、騒音トラブルを防止できます。駐輪場付きの物件です。魅力も多い賃貸物件はいかがでしょうか。簡単に温度管理できるエアコン付きのマンション。たくさんの料理をまとめて作ることで忙しい日でもすぐに料理を作れる2口コンロを備え付けております。
|
||
| 所属団体 |
(公社)全日本不動産協会 公益社団法人近畿地区不動産公正取引協議会 (公社)不動産保証協会 |
||

