[一戸建] 埼玉県熊谷市円光2 の賃貸【埼玉県 / 熊谷市】
情報公開日:2025/12/11(残り15日)
次回更新日は2025/12/18□
物件画像
画像提供元:(株)埼玉住宅情報センター
この物件のタグ
この物件にお問い合わせ
[一戸建] 埼玉県熊谷市円光2 の賃貸【埼玉県 / 熊谷市】の物件情報
| 賃料/管理費等 |
12.0万円(管理費等 -)
|
||
|---|---|---|---|
| 敷金 | 12.0万円 | 礼金 | 12.0万円 |
| 種別/構造 | 一戸建/木造 | 築年月 | 2024年01月 |
| 敷金積み増し | ペット飼育の場合敷金2ヶ月(総額) | ||
| 所在地 |
埼玉県熊谷市円光2
|
||
| 主要交通機関 |
秩父鉄道/石原駅 歩30分 JR高崎線/熊谷駅 バス20分 (バス停)遠新田 歩4分 |
||
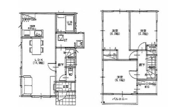
| 間取り | 3LDK | 面積 | 77.61m² |
| 間取り詳細 | 洋6.5 洋6.1 洋5.2 LDK14.9 | 方位 | 南 |
| 階数/部屋番号 | 1-2階/地上2階建 | 駐車場 | 付無料/駐2台付 |
| 特徴 |
|
||
| 設備/条件 | バストイレ別、バルコニー、エアコン、TVインターホン、浴室乾燥機、室内洗濯置、シューズボックス、システムキッチン、追焚機能浴室、温水洗浄便座、脱衣所、洗面所独立、駐輪場、2面採光、3口以上コンロ、対面式キッチン、ペット相談、IHクッキングヒーター、照明付、全居室収納、オートバス、グリル付、振分、ウォークインクロゼット、駐車2台可、バイク置場、全居室フローリング、駐車場2台無料、24時間換気システム、クロゼット2ヶ所、浴室1坪以上、プロパンガス、シャッター、初期費用カード決済可 | ||
| 備考 |
合計4.4万円(内訳:ホームマイスター241.65万円 鍵交換代2.75万円) 更新料 新賃料1.00ヶ月分 スマートキー 月額1650円 二人入居可/子供可/ペット相談/事務所利用相談 普通借家 2年 保証会社利用必 初回保証料100%、継続保証料1年毎に賃料の15% 初回保証料100%、継続保証料1年毎に賃料の15% ※物件に関する備考は各社異なりますのでご確認のうえお問い合わせください。 |
||
| 契約期間 | お問い合わせください。 | ||
|---|---|---|---|
| 入居可能時期 |
即入居可
|
||
| 初期費用 |
お問い合わせください。
|
||
| 住宅保険 | 2万円2年 | 現状空室状況 | お問い合わせください。 |
情報提供元:(株)埼玉住宅情報センター
画像提供元:(株)埼玉住宅情報センター
※各種情報と現状に差異がある場合は、現状優先となります。取り扱い不動産会社が複数ある場合は、住宅保険等、一部条件が異なる場合もございますので、取扱店舗までご確認下さいませ。
この物件にお問い合わせ
周辺施設
| コンビニ |
ローソン 熊谷円光二丁目 ファミリーマート 肥塚南店 |
|||
|---|---|---|---|---|
| スーパー |
株式会社ベルク 柿沼店 ビッグ・エー熊谷肥塚店 |
|||
| ドラッグストア |
ドラッグストアセキ熊谷円光店 有限会社コトブキ薬局 柿沼店 |
|||
| 保育園 |
第三なでしこ保育園 |
|||
|---|---|---|---|---|
| 幼稚園 |
さくら幼稚園 |
|||
| 小学校 |
熊谷市立熊谷西小学校 |
|||
| 中学校 |
熊谷市立 大幡中学校 |
|||
※周辺情報は不動産会社から提供された情報ではなく、弊サービスで独自に収集した情報です。
[一戸建] 埼玉県熊谷市円光2 の賃貸【埼玉県 / 熊谷市】の取扱会社情報 3件
| 取扱会社(1) | (株)埼玉住宅情報センター (情報提供媒体:SUUMO) | ||
|---|---|---|---|
| 住所 | 埼玉県熊谷市筑波2-66-1 | ||
| 電話番号 | 048-525-2233 | 免許番号 | 埼玉県知事(12)第9814号 |
| 取引態様 | 仲介 | 物件管理番号 |
100475873077 ※お問い合わせの際には、担当者へ物件管理番号をお伝えください。 |
| 物件に関する情報 |
物件の所在地 : 埼玉県熊谷市円光2 /
交通の利便 : 秩父鉄道/石原駅 歩30分、JR高崎線/熊谷駅 バス20分 (バス停)遠新田 歩4分 /
面積 : 77.61m² /
築年月 : 2024年01月 /
賃料 : 12.0万円 /
管理費又は共益費等 : - /
礼金等 : 1ヶ月 /
敷金 : 1ヶ月、保証金等 : -、 償却、敷引 : - /
住宅総合保険等の損害保険料 : 2万円2年 /
その他 : 合計4.4万円(内訳:ホームマイスター241.65万円 鍵交換代2.75万円)
更新料 新賃料1.00ヶ月分 スマートキー 月額1650円
二人入居可/子供可/ペット相談/事務所利用相談
普通借家 2年
保証会社利用必 初回保証料100%、継続保証料1年毎に賃料の15% 初回保証料100%、継続保証料1年毎に賃料の15%
/ 駐車場 : 付無料/駐2台付
|
||
| 所属団体 |
(公社)埼玉県宅地建物取引業協会会員 (公社)首都圏不動産公正取引協議会加盟 |
||
| 取扱会社(2) | ハウスコム埼玉(株)熊谷店 (情報提供媒体:SUUMO) | ||
|---|---|---|---|
| 住所 | 埼玉県熊谷市筑波2-52 新井屋本店ビル2階 | ||
| 電話番号 | 0800-1700127 | 免許番号 | 埼玉県知事(1)第24888号 |
| 取引態様 | 仲介 | 物件管理番号 |
100475160321 ※お問い合わせの際には、担当者へ物件管理番号をお伝えください。 |
| 物件に関する情報 |
物件の所在地 : 埼玉県熊谷市円光2 /
交通の利便 : 秩父鉄道/石原駅 歩30分、JR高崎線/熊谷駅 バス20分 (バス停)遠新田 歩4分 /
面積 : 77.61m² /
築年月 : 2024年01月 /
賃料 : 12.0万円 /
管理費又は共益費等 : - /
礼金等 : 1ヶ月 /
敷金 : 1ヶ月、保証金等 : -、 償却、敷引 : - /
住宅総合保険等の損害保険料 : 2万円2年 /
その他 : 合計4.4万円(内訳:ホームマイスター241.65万円 鍵交換代2.75万円)
更新料 新賃料1.00ヶ月分 スマートキー 月額1650円
二人入居可/子供可/ペット相談/事務所利用相談
普通借家 2年
保証会社利用必 初回保証料100%、継続保証料1年毎に賃料の15% 初回保証料100%、継続保証料1年毎に賃料の15%
/ 駐車場 : 付無料/駐2台付
|
||
| 所属団体 |
(公財)日本賃貸住宅管理協会会員 (公社)首都圏不動産公正取引協議会加盟 |
||
| 取扱会社(3) | (株)東日本地所 (情報提供媒体:SUUMO) | ||
|---|---|---|---|
| 住所 | 埼玉県さいたま市中央区新都心 7-2 大宮サウスゲート5階 | ||
| 電話番号 | 048-711-7715 | 免許番号 | 国土交通大臣(1)第10280号 |
| 取引態様 | 貸主 | 物件管理番号 |
100454902246 ※お問い合わせの際には、担当者へ物件管理番号をお伝えください。 |
| 物件に関する情報 |
物件の所在地 : 埼玉県熊谷市円光2 /
交通の利便 : 秩父鉄道/石原駅 歩30分、JR高崎線/熊谷駅 バス20分 (バス停)遠新田 歩4分 /
面積 : 77.61m² /
築年月 : 2024年01月 /
賃料 : 12.0万円 /
管理費又は共益費等 : - /
礼金等 : 1ヶ月 /
敷金 : 1ヶ月、保証金等 : -、 償却、敷引 : - /
住宅総合保険等の損害保険料 : 2万円2年 /
その他 : 短期解約時違約金有り(1年未満/賃料1ヶ月分)。町会加入必須、年額2 000円となります。退去時ハウスクリーニング費用(105 000円税別)借主負担。ペット飼育時、敷金1ヶ月分の積み増し有り(頭数・種類は相談可)。
合計4.4万円(内訳:ホームマイスター241.65万円 鍵交換代2.75万円)
更新料 新賃料1.00ヶ月分 スマートキー 月額1650円
二人入居可/子供可/ペット相談/事務所利用相談
普通借家 2年
保証会社利用必 初回保証料100%、継続保証料1年毎に賃料の15% 初回保証料100%、継続保証料1年毎に賃料の15%
/ 駐車場 : 付無料/駐2台付
築浅!テラスハウス 敷地内駐車場2台付&ペット飼育相談可能♪
【初期費用クレジットカード決済・全額・一部可能】 【当物件の現地集合も承ります。最寄り駅物件までの送迎ご相談可能】 |
||
| 所属団体 |
(公社)全日本不動産協会埼玉県本部会員 (公社)首都圏不動産公正取引協議会加盟 |
||

