ダイヤモンドマンション2号館[2階]
情報公開日:2025/10/31(残り15日)
次回更新日は2025/11/15
物件画像
画像提供元:(株)埼玉住宅情報センター
この物件のタグ
この物件にお問い合わせ
ダイヤモンドマンション2号館[2階]の物件情報
| 賃料/管理費等 | 
            8.9万円(管理費等 4,000円)
           | ||
|---|---|---|---|
| 敷金 | 8.9万円 | 礼金 | 無料 | 
| 種別/構造 | マンション/RC | 築年月 | 1997年03月 | 
| 所在地 | 
          埼玉県熊谷市中西3
         | ||
| 主要交通機関 | JR高崎線/熊谷駅 歩19分 | ||
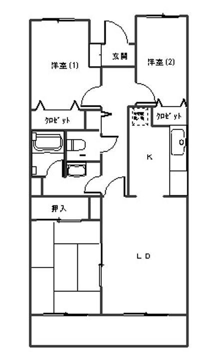
| 間取り | 3LDK | 面積 | 71.5m² | 
| 間取り詳細 | 和6 洋6.5 洋5.2 LDK13.0 | 方位 | 南 | 
| 階数/部屋番号 | 2階/地上3階建 | 駐車場 | 有(敷地内) 敷地内5000円/平置駐 | 
| 特徴 |  | ||
| 設備/条件 | バストイレ別、バルコニー、エアコン、ガスコンロ対応、クロゼット、フローリング、TVインターホン、室内洗濯置、陽当り良好、シューズボックス、システムキッチン、追焚機能浴室、脱衣所、洗面所独立、洗面化粧台、駐輪場、押入、即入居可、礼金不要、防犯カメラ、二人入居相談、敷地内ごみ置き場、平面駐車場、LDK12畳以上、都市ガス、年内入居可、通風良好 | ||
| 備考 | 合計4.9万円(内訳:初回保証料4.9万円) 更新料 新賃料1.00ヶ月分 二人入居可/子供可 普通借家 2年 日本賃貸保証利用必 初回保証料は総額家賃の50%、2年目からは毎年1万円 ※物件に関する備考は各社異なりますのでご確認のうえお問い合わせください。 | ||
| 契約期間 | お問い合わせください。 | ||
|---|---|---|---|
| 入居可能時期 | 
            即入居可
           | ||
| 初期費用 | 
            お問い合わせください。
           | ||
| 住宅保険 | 1.8万円2年 | 現状空室状況 | お問い合わせください。 | 
  情報提供元:(株)埼玉住宅情報センター
  画像提供元:(株)埼玉住宅情報センター
  ※各種情報と現状に差異がある場合は、現状優先となります。取り扱い不動産会社が複数ある場合は、住宅保険等、一部条件が異なる場合もございますので、取扱店舗までご確認下さいませ。
この物件にお問い合わせ
周辺施設
| コンビニ | ローソン 熊谷箱田店 セブンイレブン 熊谷上之店 | |||
|---|---|---|---|---|
| スーパー | 株式会社ベルク 上之店 ビッグ・エー熊谷肥塚店 | |||
| ドラッグストア | クオール薬局熊谷店 なつめ薬局 | |||
| 保育園 | 熊谷市立 箱田保育所 | |||
|---|---|---|---|---|
| 幼稚園 | まこと こども園 | |||
| 小学校 | 熊谷市立熊谷東小学校 | |||
| 中学校 | 熊谷市立富士見中学校 | |||
※周辺情報は不動産会社から提供された情報ではなく、弊サービスで独自に収集した情報です。
担当者のオススメポイント!
風通しの良いマンションは利便性が高く好条件です
通話ボタンを押せば相手の声が聞けるので、会話したうえで直接会うかを決められるインターホンがあります。洗面所は浴室から独立しており、お風呂の湿気を避けられます。駐輪場付きの物件です。
ダイヤモンドマンション2号館[2階]の取扱会社情報 2件
| 取扱会社(1) | (株)埼玉住宅情報センター (情報提供媒体:SUUMO) | ||
|---|---|---|---|
| 住所 | 埼玉県熊谷市筑波2-66-1 | ||
| 電話番号 | 048-525-2233 | 免許番号 | 埼玉県知事(12)第9814号 | 
| 取引態様 | 仲介 | 物件管理番号 | 100389339856 ※お問い合わせの際には、担当者へ物件管理番号をお伝えください。 | 
| 物件に関する情報 | 
                  物件の所在地 : 埼玉県熊谷市中西3 /
                  交通の利便 : JR高崎線/熊谷駅 歩19分 /
                  面積 : 71.5m² /
                  築年月 : 1997年03月 /
                  賃料 : 8.9万円 /
                  管理費又は共益費等 : 4,000円 /
                  礼金等 : 無料 /
                  敷金 : 1ヶ月、保証金等 : -、 償却、敷引 : - /
                  住宅総合保険等の損害保険料 : 1.8万円2年 /
                  その他 : 合計4.9万円(内訳:初回保証料4.9万円)
更新料 新賃料1.00ヶ月分
二人入居可/子供可
普通借家 2年
日本賃貸保証利用必 初回保証料は総額家賃の50%、2年目からは毎年1万円
                    / 駐車場 : 有(敷地内)
敷地内5000円/平置駐
                 
                  風通しの良いマンションは利便性が高く好条件です 通話ボタンを押せば相手の声が聞けるので、会話したうえで直接会うかを決められるインターホンがあります。洗面所は浴室から独立しており、お風呂の湿気を避けられます。駐輪場付きの物件です。 | ||
| 所属団体 | (公社)埼玉県宅地建物取引業協会会員 (公社)首都圏不動産公正取引協議会加盟 | ||
| 取扱会社(2) | ハウスコム埼玉(株)熊谷店 (情報提供媒体:SUUMO) | ||
|---|---|---|---|
| 住所 | 埼玉県熊谷市筑波2-52 新井屋本店ビル2階 | ||
| 電話番号 | 0800-1700127 | 免許番号 | 埼玉県知事(1)第24888号 | 
| 取引態様 | 仲介 | 物件管理番号 | 100379969989 ※お問い合わせの際には、担当者へ物件管理番号をお伝えください。 | 
| 物件に関する情報 | 
                  物件の所在地 : 埼玉県熊谷市中西3 /
                  交通の利便 : JR高崎線/熊谷駅 歩17分 /
                  面積 : 71.5m² /
                  築年月 : 1997年03月 /
                  賃料 : 8.9万円 /
                  管理費又は共益費等 : 4,000円 /
                  礼金等 : 1ヶ月 /
                  敷金 : 1ヶ月、保証金等 : -、 償却、敷引 : - /
                  住宅総合保険等の損害保険料 : 要 /
                  その他 : 更新料 賃料1.00ヶ月分
二人入居可
保証会社利用必 総賃料合計の50% 年間保証料:10 000円
                    / 駐車場 : 有(敷地内)
敷地内5000円
                 
                  成約者特典BOOKOFF買取価格10%UP(景品限度額内) 身支度に必要となる様々なアイテムを収納可能なスペースがある独立洗面台を設置しています。収納はクロゼット・シューズボックスなど豊富なので、衣類や履き物の整理がしやすく便利です。 | ||
| 所属団体 | (公財)日本賃貸住宅管理協会会員 (公社)首都圏不動産公正取引協議会加盟 | ||


 
                 
                 
                 
                   
                   
                   
                   
                   
                   
                   
                   
                   
                   
                   
                   
                   
                   
                   
                   
                  ![ダイヤモンドマンション2号館[2階]の間取り](https://smocca.jp/assets/common/spinner-1d171161728705657e0dc19391353959.gif) 
