プレジオ西新井[9階]
情報公開日:2026/02/24(残り15日)
次回更新日は2026/03/18
物件画像
画像提供元:ポラスの賃貸 Room'Spot西新井営業所(株)中央ビル管理
この物件のタグ
プレジオ西新井[9階]の物件情報
| 賃料/管理費等 |
13.7万円(管理費等 1.5万円)
|
||
|---|---|---|---|
| 敷金 | 無料 | 礼金 | 無料 |
| 種別/構造 | マンション/RC | 築年月 | 新築(2025年11月) |
| 所在地 |
東京都足立区西新井7
|
||
| 主要交通機関 |
日暮里・舎人ライナー/西新井大師西駅 歩1分 日暮里・舎人ライナー/谷在家駅 歩11分 日暮里・舎人ライナー/江北駅 歩12分 |
||
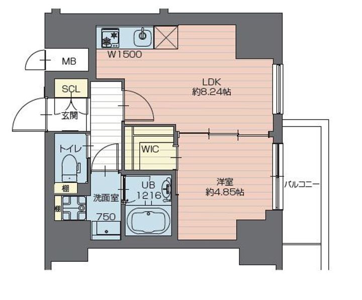
| 間取り | 1LDK | 面積 | 35.4m² |
| 間取り詳細 | 洋4.8 LDK8.2 | 方位 | 北 |
| 階数/部屋番号 | 9階/地上15階建 | 駐車場 | 無 |
| 特徴 |
|
||
| 設備/条件 | バストイレ別、バルコニー、エアコン、ガスコンロ対応、シャワー付洗面台、浴室乾燥機、室内洗濯置、シューズボックス、システムキッチン、追焚機能浴室、角住戸、温水洗浄便座、エレベーター、洗面所独立、2口コンロ、駐輪場、宅配ボックス、即入居可、防犯カメラ、ペット相談、照明付、バイク置場、ネット使用料不要、保証金不要、築2年以内、3駅以上利用可、駅徒歩5分以内、都市ガス、敷金・礼金不要 | ||
| 備考 |
・ペット相談可(小型犬・猫いずれか1匹迄)共益費3000円UP+敷金1ヵ月上乗せ・早期解約違約金有(1年未満):共込賃料1ヶ月※大手法人で早期解約違約設定不可の場合、礼金1ヵ月分要・大手法人で賃貸保証加入不可の場合、敷金として賃料1ヶ月分要・駐輪場:550円(税込)・カラーパターン 9階:ブラウン基調 ■エアコン:A~Dタイプ:2基 E・Fタイプ:1基 合計2万円(内訳:リロレント24安心サービス 20000円) 二人入居可/ペット相談 普通借家 2年 保証会社利用必 エポスカード, ■個人初回:総賃料の20% 更新料:1%/月 ■法人初回:総賃料の50% 更新料:1万円/年(更新料:14,000円/年※総賃料15万円以上の場合) ※物件に関する備考は各社異なりますのでご確認のうえお問い合わせください。 |
||
| 契約期間 | お問い合わせください。 | ||
|---|---|---|---|
| 入居可能時期 |
即入居可
|
||
| 初期費用 |
お問い合わせください。
|
||
| 住宅保険 | 2万円2年 | 現状空室状況 | お問い合わせください。 |
情報提供元:ポラスの賃貸 Room'Spot西新井営業所(株)中央ビル管理
画像提供元:ポラスの賃貸 Room'Spot西新井営業所(株)中央ビル管理
※各種情報と現状に差異がある場合は、現状優先となります。取り扱い不動産会社が複数ある場合は、住宅保険等、一部条件が異なる場合もございますので、取扱店舗までご確認下さいませ。
この物件にお問い合わせ
周辺施設
| コンビニ |
株式会社ベアーズアリタ セブン‐イレブン 足立西新井5丁目店 |
|||
|---|---|---|---|---|
| スーパー |
スーパー ベルクス西新井西店 ライフ江北駅前店 |
|||
| ドラッグストア |
エール薬局 六丁目店 エール薬局 西新井店 |
|||
| 保育園 |
株式会社愛恵 |
|||
|---|---|---|---|---|
| 幼稚園 |
江北白百合幼稚園 |
|||
| 小学校 |
足立区立 西新井第一小学校 |
|||
| 中学校 |
足立区立 西新井中学校 |
|||
※周辺情報は不動産会社から提供された情報ではなく、弊サービスで独自に収集した情報です。
担当者のオススメポイント!
★2025年11月築の新築物件★ペット相談可★宅配BOX★
安心のオートロック・防犯カメラ付★インターネット無料★エレベーター★2口ガスコンロ付システムキッチン★追焚・浴室乾燥機付バス★エアコン・照明★
プレジオ西新井[9階]の取扱会社情報 6件
| 取扱会社(1) | ポラスの賃貸 Room'Spot西新井営業所(株)中央ビル管理 (情報提供媒体:SUUMO) | ||
|---|---|---|---|
| 住所 | 東京都足立区西新井栄町1-17-10 ウエルネスタウン西新井1階 | ||
| 電話番号 | 0120-829850 | 免許番号 | 国土交通大臣(9)第3918号 |
| 取引態様 | 仲介 | 物件管理番号 |
100448587064 ※お問い合わせの際には、担当者へ物件管理番号をお伝えください。 |
| 物件に関する情報 |
物件の所在地 : 東京都足立区西新井7 /
交通の利便 : 日暮里・舎人ライナー/西新井大師西駅 歩1分、日暮里・舎人ライナー/谷在家駅 歩11分、日暮里・舎人ライナー/江北駅 歩12分 /
面積 : 35.4m² /
築年月 : 新築(2025年11月) /
賃料 : 13.7万円 /
管理費又は共益費等 : 1.5万円 /
礼金等 : 無料 /
敷金 : 無料、保証金等 : -、 償却、敷引 : - /
住宅総合保険等の損害保険料 : 2万円2年 /
その他 : ・ペット相談可(小型犬・猫いずれか1匹迄)共益費3000円UP+敷金1ヵ月上乗せ・早期解約違約金有(1年未満):共込賃料1ヶ月※大手法人で早期解約違約設定不可の場合、礼金1ヵ月分要・大手法人で賃貸保証加入不可の場合、敷金として賃料1ヶ月分要・駐輪場:550円(税込)・カラーパターン 9階:ブラウン基調 ■エアコン:A~Dタイプ:2基 E・Fタイプ:1基
合計2万円(内訳:リロレント24安心サービス 20000円)
二人入居可/ペット相談
普通借家 2年
保証会社利用必 エポスカード, ■個人初回:総賃料の20% 更新料:1%/月 ■法人初回:総賃料の50% 更新料:1万円/年(更新料:14,000円/年※総賃料15万円以上の場合)
/ 駐車場 : 無
★2025年11月築の新築物件★ペット相談可★宅配BOX★
安心のオートロック・防犯カメラ付★インターネット無料★エレベーター★2口ガスコンロ付システムキッチン★追焚・浴室乾燥機付バス★エアコン・照明★ |
||
| 所属団体 |
(公社)東京都宅地建物取引業協会会員 (公社)首都圏不動産公正取引協議会加盟 |
||
| 取扱会社(2) | いい部屋ネット大東建託リーシング(株)北千住駅前店 (情報提供媒体:SUUMO) | ||
|---|---|---|---|
| 住所 | 東京都足立区千住旭町 4-11 小野寺ビル2階 | ||
| 電話番号 | 03-3888-6401 | 免許番号 | 国土交通大臣(2)第9120号 |
| 取引態様 | 仲介 | 物件管理番号 |
100442871340 ※お問い合わせの際には、担当者へ物件管理番号をお伝えください。 |
| 物件に関する情報 |
物件の所在地 : 東京都足立区西新井7 /
交通の利便 : 日暮里・舎人ライナー/西新井大師西駅 歩3分、日暮里・舎人ライナー/谷在家駅 歩10分、日暮里・舎人ライナー/江北駅 歩13分 /
面積 : 35.4m² /
築年月 : 新築(2025年11月) /
賃料 : 13.7万円 /
管理費又は共益費等 : 1.5万円 /
礼金等 : 無料 /
敷金 : 無料、保証金等 : -、 償却、敷引 : - /
住宅総合保険等の損害保険料 : 1.8万円2年 /
その他 : 1年未満の解約で総賃料1か月分の違約金
更新料 新賃料1.00ヶ月分
ペット相談
保証会社利用必 初回保証料:総賃料の20%~
/ 駐車場 : 有(敷地内)
敷地内18700円
お部屋さがしはいい部屋ネットの大東建託で!
お忙しい時には「現地お待ち合わせ見学」がおすすめです!ご自宅にいながら、スマホ・タブレットを使っての「オンライン内見」、「IT重説」で、ご契約手続きまで非対面での対応も実施しております。 |
||
| 所属団体 |
(公財)日本賃貸住宅管理協会会員 (公社)首都圏不動産公正取引協議会加盟 |
||
| 取扱会社(3) | いい部屋ネット大東建託リーシング(株)池袋東口店 (情報提供媒体:SUUMO) | ||
|---|---|---|---|
| 住所 | 東京都豊島区南池袋1-21-7 イー・パートナーズ池袋駅前ビル 8階 | ||
| 電話番号 | 03-3980-8171 | 免許番号 | 国土交通大臣(2)第9120号 |
| 取引態様 | 仲介 | 物件管理番号 |
100445128896 ※お問い合わせの際には、担当者へ物件管理番号をお伝えください。 |
| 物件に関する情報 |
物件の所在地 : 東京都足立区西新井7 /
交通の利便 : 日暮里・舎人ライナー/西新井大師西駅 歩3分、日暮里・舎人ライナー/谷在家駅 歩10分、日暮里・舎人ライナー/江北駅 歩13分 /
面積 : 35.4m² /
築年月 : 新築(2025年11月) /
賃料 : 13.7万円 /
管理費又は共益費等 : 1.5万円 /
礼金等 : 無料 /
敷金 : 無料、保証金等 : -、 償却、敷引 : - /
住宅総合保険等の損害保険料 : 1.8万円2年 /
その他 : 1年未満の解約で総賃料1か月分の違約金
更新料 新賃料1.00ヶ月分
ペット相談
保証会社利用必 初回保証料:総賃料の20%~
/ 駐車場 : 有(敷地内)
敷地内18700円
お部屋さがしはいい部屋ネットの大東建託で!
スタッフ一同、お客様のご来店をこころよりお待ちしております! |
||
| 所属団体 |
(公財)日本賃貸住宅管理協会会員 (公社)首都圏不動産公正取引協議会加盟 |
||
| 取扱会社(4) | いい部屋ネット大東建託リーシング(株)練馬店 (情報提供媒体:SUUMO) | ||
|---|---|---|---|
| 住所 | 東京都練馬区豊玉北5-22-5 サンライズ・モリタビル1階 | ||
| 電話番号 | 03-3993-2631 | 免許番号 | 国土交通大臣(2)第9120号 |
| 取引態様 | 仲介 | 物件管理番号 |
100479411861 ※お問い合わせの際には、担当者へ物件管理番号をお伝えください。 |
| 物件に関する情報 |
物件の所在地 : 東京都足立区西新井7 /
交通の利便 : 日暮里・舎人ライナー/西新井大師西駅 歩3分、日暮里・舎人ライナー/谷在家駅 歩10分、日暮里・舎人ライナー/江北駅 歩13分 /
面積 : 35.4m² /
築年月 : 新築(2025年11月) /
賃料 : 13.7万円 /
管理費又は共益費等 : 1.5万円 /
礼金等 : 無料 /
敷金 : 無料、保証金等 : -、 償却、敷引 : - /
住宅総合保険等の損害保険料 : 1.8万円2年 /
その他 : 1年未満の解約で総賃料1か月分の違約金
更新料 新賃料1.00ヶ月分
ペット相談
保証会社利用必 初回保証料:総賃料の20%~
/ 駐車場 : 有(敷地内)
敷地内18700円
お部屋さがしはいい部屋ネットの大東建託で!
スタッフ一同、お客様のご来店をこころよりお待ちしております! |
||
| 所属団体 |
(公財)日本賃貸住宅管理協会会員 (公社)首都圏不動産公正取引協議会加盟 |
||
| 取扱会社(5) | ポラスの賃貸 Room'Spot竹ノ塚営業所(株)中央ビル管理 (情報提供媒体:SUUMO) | ||
|---|---|---|---|
| 住所 | 東京都足立区竹の塚6-15-6 プルミエール竹の塚107 | ||
| 電話番号 | 0120-977688 | 免許番号 | 国土交通大臣(9)第3918号 |
| 取引態様 | 仲介 | 物件管理番号 |
100448587090 ※お問い合わせの際には、担当者へ物件管理番号をお伝えください。 |
| 物件に関する情報 |
物件の所在地 : 東京都足立区西新井7 /
交通の利便 : 日暮里・舎人ライナー/西新井大師西駅 歩1分、日暮里・舎人ライナー/谷在家駅 歩11分、日暮里・舎人ライナー/江北駅 歩12分 /
面積 : 35.4m² /
築年月 : 新築(2025年11月) /
賃料 : 13.7万円 /
管理費又は共益費等 : 1.5万円 /
礼金等 : 無料 /
敷金 : 無料、保証金等 : -、 償却、敷引 : - /
住宅総合保険等の損害保険料 : 2万円2年 /
その他 : ・ペット相談可(小型犬・猫いずれか1匹迄)共益費3000円UP+敷金1ヵ月上乗せ・早期解約違約金有(1年未満):共込賃料1ヶ月※大手法人で早期解約違約設定不可の場合、礼金1ヵ月分要・大手法人で賃貸保証加入不可の場合、敷金として賃料1ヶ月分要・駐輪場:550円(税込)・カラーパターン 9階:ブラウン基調 ■エアコン:A~Dタイプ:2基 E・Fタイプ:1基
合計2万円(内訳:リロレント24安心サービス 20000円)
二人入居可/ペット相談
普通借家 2年
保証会社利用必 エポスカード, ■個人初回:総賃料の20% 更新料:1%/月 ■法人初回:総賃料の50% 更新料:1万円/年(更新料:14,000円/年※総賃料15万円以上の場合)
/ 駐車場 : 無
★2025年11月築の新築物件★ペット相談可★宅配BOX★
安心のオートロック・防犯カメラ付★インターネット無料★エレベーター★2口ガスコンロ付システムキッチン★追焚・浴室乾燥機付バス★エアコン・照明★ |
||
| 所属団体 |
(公社)東京都宅地建物取引業協会会員 (公社)首都圏不動産公正取引協議会加盟 |
||
| 取扱会社(6) | いい部屋ネット大東建託リーシング(株)亀戸店 (情報提供媒体:SUUMO) | ||
|---|---|---|---|
| 住所 | 東京都江東区亀戸6-57-7 亀戸北斗スターマンション1階 | ||
| 電話番号 | 03-3682-0701 | 免許番号 | 国土交通大臣(2)第9120号 |
| 取引態様 | 仲介 | 物件管理番号 |
100442943191 ※お問い合わせの際には、担当者へ物件管理番号をお伝えください。 |
| 物件に関する情報 |
物件の所在地 : 東京都足立区西新井7 /
交通の利便 : 日暮里・舎人ライナー/西新井大師西駅 歩3分、日暮里・舎人ライナー/谷在家駅 歩10分、日暮里・舎人ライナー/江北駅 歩13分 /
面積 : 35.4m² /
築年月 : 新築(2025年11月) /
賃料 : 13.7万円 /
管理費又は共益費等 : 1.5万円 /
礼金等 : 無料 /
敷金 : 無料、保証金等 : -、 償却、敷引 : - /
住宅総合保険等の損害保険料 : 1.8万円2年 /
その他 : 1年未満の解約で総賃料1か月分の違約金
更新料 新賃料1.00ヶ月分
ペット相談
保証会社利用必 初回保証料:総賃料の20%~
/ 駐車場 : 有(敷地内)
敷地内18700円
お部屋さがしはいい部屋ネットの大東建託で!
共用部には宅配ボックス・ゴミ出し24時間OKなどが揃っております。訪問者をカメラで確認できるTVインターホン設置済み。室内設備は浴室乾燥機・洗面所独立など大変充実しております。 |
||
| 所属団体 |
(公財)日本賃貸住宅管理協会会員 (公社)首都圏不動産公正取引協議会加盟 |
||

