東京都目黒区下目黒1の賃貸マンション
情報公開日:2026/01/01(残り15日)
次回更新日は2026/02/02
物件画像
画像提供元:(株)エスピーホームズ
この物件のタグ
東京都目黒区下目黒1の賃貸マンションの物件情報
| 賃料/管理費等 |
12.5万円(管理費等 1.5万円)
|
||
|---|---|---|---|
| 敷金 | 無料 | 礼金 | 12.5万円 |
| 種別/構造 | マンション/SRC | 築年月 | 2000年01月 |
| 敷金積み増し | ペット飼育の場合敷金1ヶ月(総額) | ||
| 所在地 |
東京都目黒区下目黒1
|
||
| 主要交通機関 |
JR山手線/目黒駅 歩3分 東急目黒線/不動前駅 歩15分 東京メトロ南北線/白金台駅 歩16分 |
||
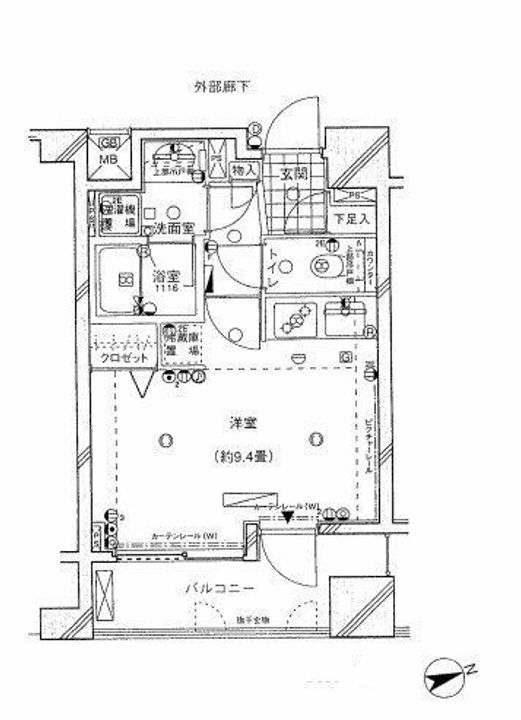
| 間取り | 1R | 面積 | 26.95m² |
| 間取り詳細 | 洋9.4 | 方位 | 東 |
| 階数/部屋番号 | 7階/地上11階建 | 駐車場 | 無 |
| 特徴 |
|
||
| 設備/条件 | バストイレ別、バルコニー、エアコン、ガスコンロ対応、クロゼット、フローリング、TVインターホン、浴室乾燥機、オートロック、室内洗濯置、陽当り良好、シューズボックス、システムキッチン、追焚機能浴室、角住戸、温水洗浄便座、脱衣所、エレベーター、洗面所独立、洗面化粧台、2口コンロ、駐輪場、宅配ボックス、CATV、光ファイバー、即入居可、BS・CS、敷金不要、防犯カメラ、ペット相談、照明付、分譲賃貸、グリル付、二人入居相談、全居室フローリング、2沿線利用可、ディンプルキー、ルームシェア相談、耐震構造、2駅利用可、3駅以上利用可、3沿線以上利用可、駅徒歩5分以内、駅徒歩10分以内、24時間ゴミ出し可、敷地内ごみ置き場、都市ガス、天井高シューズクロゼット、LAN、保証会社利用可、IT重説 対応物件 | ||
| 備考 |
巡回管理/セキュリティ面は、オートロック・TVインターホンなどを設置しているので安全面でも優れております。ぜひご覧いただきたい賃貸物件です。 合計4.95万円(内訳:室内抗菌代1.65万円 鍵交換代3.3万円) 更新料 新賃料1.50ヶ月分 火災保険+24時間駆け付けサポート 月額2200円 二人入居可/ペット相談/ルームシェア相談 普通借家 2年 保証会社利用必 初回保証料50% |
||
| 契約期間 | お問い合わせください。 | ||
|---|---|---|---|
| 入居可能時期 |
即入居可
|
||
| 初期費用 |
お問い合わせください。
|
||
| 住宅保険 | - | 現状空室状況 | お問い合わせください。 |
情報提供元:(株)エスピーホームズ
画像提供元:(株)エスピーホームズ
※各種情報と現状に差異がある場合は、現状優先となります。取り扱い不動産会社が複数ある場合は、住宅保険等、一部条件が異なる場合もございますので、取扱店舗までご確認下さいませ。
この物件にお問い合わせ
周辺施設
| コンビニ |
セブン‐イレブン 目黒行人坂店 ファミリーマート 目黒アルコタワー店 |
|||
|---|---|---|---|---|
| スーパー |
まいばすけっと 下目黒2丁 目店 成城石井 アトレ目黒店 |
|||
| ドラッグストア |
アルプス薬局 目黒店 アルコ薬局 |
|||
| 保育園 |
まなびの森保育園・目黒 |
|||
|---|---|---|---|---|
| 幼稚園 |
日出幼稚園 |
|||
| 小学校 |
目黒区立 下目黒小学校 |
|||
| 中学校 |
日出中学校 |
|||
※周辺情報は不動産会社から提供された情報ではなく、弊サービスで独自に収集した情報です。
担当者のオススメポイント!
お部屋の動画ございます♪内見可能です!
共用部には宅配ボックス・ゴミ出し24時間OKなどが揃っております。
東京都目黒区下目黒1の賃貸マンションの取扱会社情報 1件
| 取扱会社(1) | (株)エスピーホームズ (情報提供媒体:SUUMO) | ||
|---|---|---|---|
| 住所 | 東京都千代田区神田松永町 7 ヤマリビル602 | ||
| 電話番号 | 03-5577-5855 | 免許番号 | 東京都知事(1)第108197号 |
| 取引態様 | 仲介 | 物件管理番号 |
100478291660 ※お問い合わせの際には、担当者へ物件管理番号をお伝えください。 |
| 物件に関する情報 |
物件の所在地 : 東京都目黒区下目黒1 /
交通の利便 : JR山手線/目黒駅 歩3分、東急目黒線/不動前駅 歩15分、東京メトロ南北線/白金台駅 歩16分 /
面積 : 26.95m² /
築年月 : 2000年01月 /
賃料 : 12.5万円 /
管理費又は共益費等 : 1.5万円 /
礼金等 : 1ヶ月 /
敷金 : 無料、保証金等 : -、 償却、敷引 : - /
住宅総合保険等の損害保険料 : - /
その他 : 巡回管理/セキュリティ面は、オートロック・TVインターホンなどを設置しているので安全面でも優れております。ぜひご覧いただきたい賃貸物件です。
合計4.95万円(内訳:室内抗菌代1.65万円 鍵交換代3.3万円)
更新料 新賃料1.50ヶ月分 火災保険+24時間駆け付けサポート 月額2200円
二人入居可/ペット相談/ルームシェア相談
普通借家 2年
保証会社利用必 初回保証料50%
/ 駐車場 : 無
お部屋の動画ございます♪内見可能です!
共用部には宅配ボックス・ゴミ出し24時間OKなどが揃っております。 |
||
| 所属団体 |
(公社)全日本不動産協会東京都本部会員 (公社)首都圏不動産公正取引協議会加盟 |
||

