東京都目黒区緑が丘1の賃貸マンション
情報公開日:2025/10/31(残り15日)
次回更新日は2025/11/07
物件画像
画像提供元:(株)nui design本店
この物件のタグ
この物件にお問い合わせ
東京都目黒区緑が丘1の賃貸マンションの物件情報
| 賃料/管理費等 | 
            28.0万円(管理費等 2.0万円)
           | ||
|---|---|---|---|
| 敷金 | 28.0万円 | 礼金 | 28.0万円 | 
| 種別/構造 | マンション/RC | 築年月 | 新築(2025年07月) | 
| 所在地 | 
          東京都目黒区緑が丘1
         | ||
| 主要交通機関 | 東急大井町線/緑が丘駅 歩1分 東急大井町線/大岡山駅 歩10分 東急東横線/自由が丘駅 歩13分 | ||
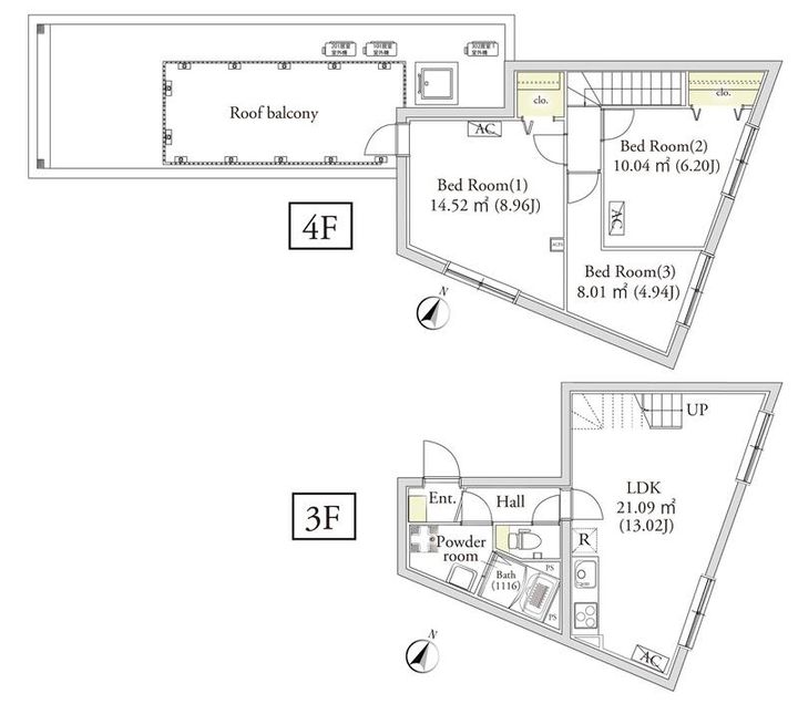
| 間取り | 3LDK | 面積 | 75.66m² | 
| 間取り詳細 | 洋8.9 洋6.2 洋4.9 LDK13.0 | 方位 | 北東 | 
| 階数/部屋番号 | 3-4階/地下1地上4階建 | 駐車場 | 近隣駐車場 近隣200m44000円 | 
| 特徴 |  | ||
| 設備/条件 | バストイレ別、バルコニー、エアコン、クロゼット、フローリング、シャワー付洗面台、TVインターホン、浴室乾燥機、オートロック、室内洗濯置、シューズボックス、システムキッチン、角住戸、温水洗浄便座、脱衣所、洗面所独立、宅配ボックス、即入居可、最上階、BS・CS、3口以上コンロ、防犯カメラ、IHクッキングヒーター、照明付、グリル付、全居室洋室、保証人不要、敷金1ヶ月、二人入居相談、全居室フローリング、玄関ホール、2沿線利用可、ディンプルキー、CS、メゾネット、ネット専用回線、駅まで平坦、ネット使用料不要、ルーフバルコニー、24時間換気システム、内階段、クロゼット2ヶ所、2駅利用可、3駅以上利用可、バス2路線、駅前、駅徒歩5分以内、駅徒歩10分以内、上階無し、敷地内ごみ置き場、LDK12畳以上、玄関手すり、都市ガス、洗面所にドア、リビング階段、玄関収納、ダウンライト、BS、礼金1ヶ月、初期費用カード決済可 | ||
| 備考 | 巡回管理 更新料 新賃料1.00ヶ月分 室内清掃費用 141484円 口座振替事務手数料 月額110円 二人入居可/子供可 普通借家 2年 保証会社利用必 初回保証料賃料総額50%、2年目以降9 600円/年 | ||
| 契約期間 | お問い合わせください。 | ||
|---|---|---|---|
| 入居可能時期 | 
            即入居可
           | ||
| 初期費用 | 
            お問い合わせください。
           | ||
| 住宅保険 | 2万円2年 | 現状空室状況 | お問い合わせください。 | 
  情報提供元:(株)nui design本店
  画像提供元:(株)nui design本店
  ※各種情報と現状に差異がある場合は、現状優先となります。取り扱い不動産会社が複数ある場合は、住宅保険等、一部条件が異なる場合もございますので、取扱店舗までご確認下さいませ。
この物件にお問い合わせ
周辺施設
| コンビニ | ファミリーマート緑が丘一丁目店 ファミリーマート 緑が丘駅前店 | |||
|---|---|---|---|---|
| スーパー | まいばすけっと 緑ヶ丘駅北 株式会社文化堂 緑ケ丘店 | |||
| ドラッグストア | ルナ自由が丘薬局 田辺薬局奥沢東口店 | |||
| 保育園 | 目黒区立 大岡山保育園 | |||
|---|---|---|---|---|
| 幼稚園 | 目黒区立 みどりがおかこども園 | |||
| 小学校 | 目黒区立中根小学校 | |||
| 中学校 | 目黒区立第十一中学校 | |||
※周辺情報は不動産会社から提供された情報ではなく、弊サービスで独自に収集した情報です。
担当者のオススメポイント!
【仲介手数料無料】■メゾネット物件■即日ご案内可能です■
◇初期費用クレジット決済可能◇未掲載物件多数でネット上の物件は一括でご紹介可能◇審査・交渉に強い◇キャリア10年以上のスタッフがご対応させて頂きますのでお任せくださいませ
東京都目黒区緑が丘1の賃貸マンションの取扱会社情報 1件
| 取扱会社(1) | (株)nui design本店 (情報提供媒体:SUUMO) | ||
|---|---|---|---|
| 住所 | 東京都港区南青山2-2-8 DFビル5階 | ||
| 電話番号 | 03-6823-8826 | 免許番号 | 東京都知事(1)第108479号 | 
| 取引態様 | 仲介 | 物件管理番号 | 100467829113 ※お問い合わせの際には、担当者へ物件管理番号をお伝えください。 | 
| 物件に関する情報 | 
                  物件の所在地 : 東京都目黒区緑が丘1 /
                  交通の利便 : 東急大井町線/緑が丘駅 歩1分、東急大井町線/大岡山駅 歩10分、東急東横線/自由が丘駅 歩13分 /
                  面積 : 75.66m² /
                  築年月 : 新築(2025年07月) /
                  賃料 : 28.0万円 /
                  管理費又は共益費等 : 2.0万円 /
                  礼金等 : 1ヶ月 /
                  敷金 : 1ヶ月、保証金等 : -、 償却、敷引 : - /
                  住宅総合保険等の損害保険料 : 2万円2年 /
                  その他 : 巡回管理
更新料 新賃料1.00ヶ月分 室内清掃費用 141484円 口座振替事務手数料 月額110円
二人入居可/子供可
普通借家 2年
保証会社利用必 初回保証料賃料総額50%、2年目以降9 600円/年
                    / 駐車場 : 近隣駐車場
近隣200m44000円
                 
                  【仲介手数料無料】■メゾネット物件■即日ご案内可能です■ ◇初期費用クレジット決済可能◇未掲載物件多数でネット上の物件は一括でご紹介可能◇審査・交渉に強い◇キャリア10年以上のスタッフがご対応させて頂きますのでお任せくださいませ | ||


 
                 
                 
                 
                   
                   
                   
                   
                   
                   
                   
                   
                   
                   
                   
                   
                   
                   
                   
                  